EasyManua.ls Logo

Panasonic DMR-EZ47VP

Panasonic DMR-EZ47VP
122 pages
To Next Page IconTo Next Page
To Next Page IconTo Next Page
To Previous Page IconTo Previous Page
To Previous Page IconTo Previous Page
Loading...
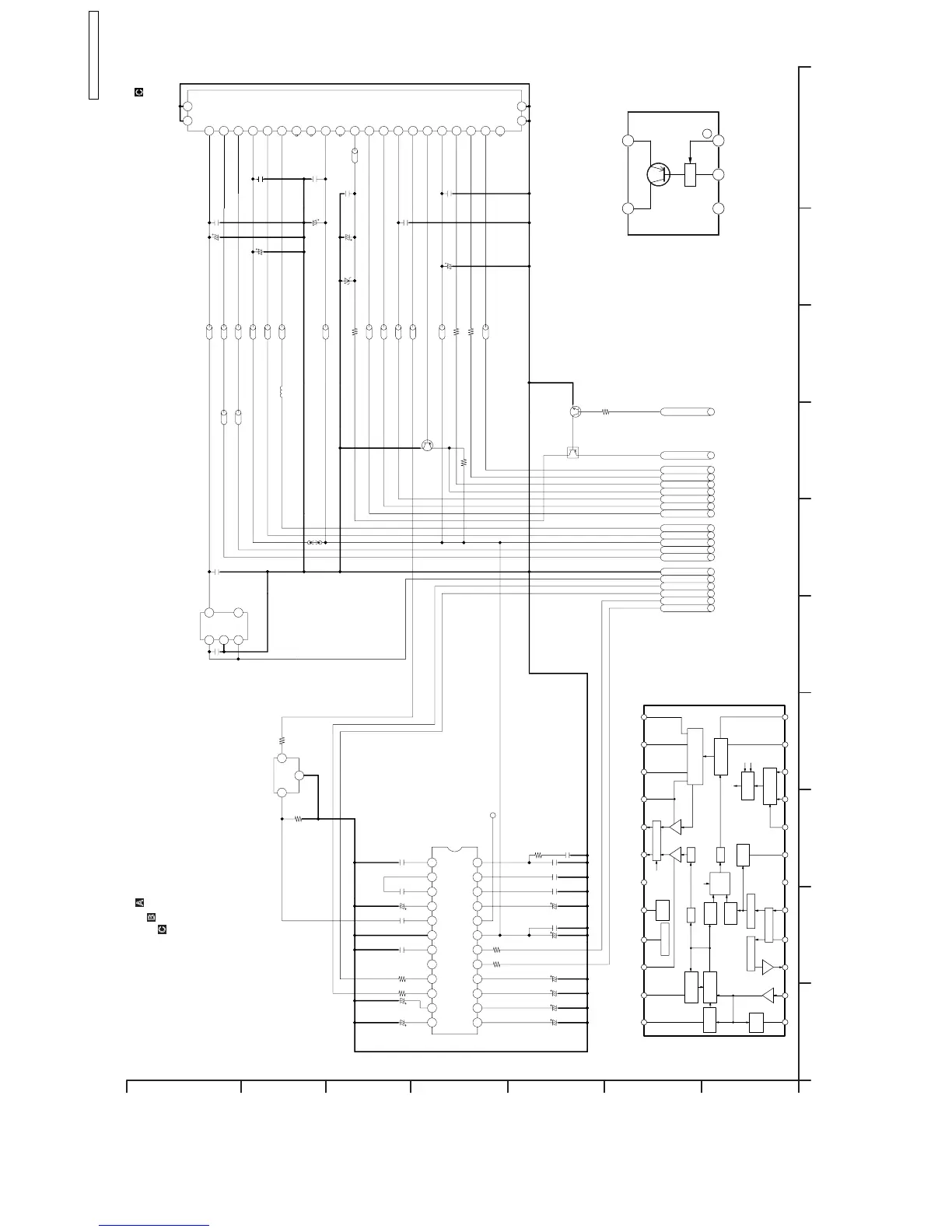
12.7. Tuner Section (Power & Digital I/F P.C.B.(3/3)) Schematic Diagram (IF)
PILOT
DET
STEREO
PLL
PILOT
LEVEL DET
-6dB
MUTE
REGULATOR
LPF
LPF
MUTE
L+R
L-R/SAP
dbx PROCESSOR
OFFSET
CANCEL
SPECTRAL IN
SPECTRAL
DET
WIDE RMS DET
PILOT
CANCELLER
1 2 3 4 5 6 7 8 9 10 11 12
131415161718192021222324
L-R
DEMOD
ST/SAP
SW
MODE
OUT
SAP
DEMOD
SAP
DET
OFFSET
CANCELL
MATRIX
LPF
SIF DEMOD
SAP BPF
SPECTRAL RMS DET
ILL
DECODE
SYSTEM
CONTROL
ADDRESS
CONTROL
ST
SAP
H
VINVOUT
NR GND
:ON
4 2 3
15
IC
CH_SW
TV_VCR
G_TU_SCL_A
AFC
G_TU_SDA_A
G_TUIFOUT1_A
UNREG38V
G_TU_IFAGC_A
JC_P_ON_H
G_TUIFOUT2_A
G_TU_V_OUT_A
R7802
100K
QR7801
UNR511200L
Q7802
2SD1819A0L
G_RFC_V_IN_A
C7829
0.01
C7838
0.01
C7836
0.01
G_SIF_A
ERJ3GEY0R00V
LB7816
C7835
0.01
C7839
0.01
RET4
RET3
RET1
RET2
G3
G4
19 171821 20
G1
G2
16 4 3 27121415 13 9 811 10 6 5
1
ENG56E01G1F
TU7801
C7831
0.1
50V 1
C7827
C7830
6.3V 47P
LB7808 ERJ3GEY0R00V
LB7805 J0JCC0000103LB7802 J0JCC0000103
LB7804 J0JCC0000103 6.3V 47P
C7826
J0JHC0000032LB7803
LB7801 J0JCC0000103
LB7806 J0JHC0000032
LB7807 J0JCC0000103
6.3V 47P
C7824
R7801 680
2SB1218A0L
Q7801
B1ADCF000154
VWJ0795=5
L7801
D7801
B0BA03000015
J0JHC0000032LB7809
LB7810 J0JCC0000103
LB7811 J0JCC0000103
1KR7803
R7804 0
R7805 0
LB7815 ERJ3GEY0R00V
LB7813 ERJ3GEY0R00V
LB7812 ERJ3GEY0R00V
LB7814 J0JHC0000032
6.3V 47P
C7823
G_SIF_B
JC_REG5V
0.047
C7308
C7322 50V 2.2
100R7301
R7302
100
C7301 6.3V 22P
ERJ3GEY0R00V
K7801
1K
R7307
C7807
1u
3
1
2
4
5
C0CBCDC00052
IC7801
10V 1
C7802
G_SIF_C
3 1
2
EFCT4R5MS5W
J0B4504AA026
FL7301
R7308
0
C7319 1u
G_SIF_E
C7316 1u
C7313 16V 10P
0.1
C7312
GND
C7306 50V 4.7
C7302 50V 4.7
C7305 50V 4.7
C7304 6.3V 22P
C7314 50V 2.2
1uC7317
C7310 6.3V 47P
0.01C7311
R7306
4700
C7321
1u
1uC7318
0.1C7320
G_TU_L_A
G_TU_R_A
X_SW_5R8V
G_I2C5DT_A
G_I2C5CK_A
R7304 0
TL7301
R7305 0
1011 9 78 3 2 16 45
14 16 18 20 2322 2421191715
12
13
IC7301
C1AB00002666
G_RFC_A_IN_A
RFC_SW
RFC_5V
AUDIO_IN
BOOSTER_5V
TU_MONITOR
NC
SIF_OUT
VIF_5V
VIDEO_OUT
AFT
30V
TUNER_5V
IFD_OUT2
IFD_OUT1
IF OUT
IF_AGC
IIC_CLK
IIC_SDA
VIDEO_IN
AGC
RFC_ON/OFF
VCC
LOUT
PCREG
PCSPE
PCTIM
ROUT
PCKE6B SDA
ADDSET
SCL
ST_SAP
GND
PCFIL
POSIF
SAPDET
PCDET
DBXINPCTNWID
PCDCIN
or
SANYO
STPDET
VO
GNDCONT VIN
CN
or
PCPLC
STPLL
PCDCOUT
P
IF
IF
IF
IF
IF
IF
IF
P
P
IF
IF
IF
IF
IF
IF
IF
IF
IF
IF
8 9 1076
E
F
G
D
C
54321
B
A
DMR-EZ47VP/EZ475VP
Tuner Section
(Power & Digital I/F P.C.B.(3/3))
Schematic Diagram(TU)
NOTE:DO NOT USE THE PART NUMBER SHOWN ON THIS DRAWING FOR ORDERRING.
THE CORRECT PART NUMBER IS SHOWN IN THE PARTS LIST,AND MAY BE
SLIGHTLYDIFFERNT OR AMENDED SINCE THIS DRAWING WAS PREPARED.
C
IC7301
AUDIO MULTIPLEX DECODER
IC-DETAIL BLOCK DIAGRAM
IC7801
BOOSTER +5V SWITCHING REG.
IC-DETAIL BLOCK DIAGRAM
P:Power Supply Section:(Page: )
A
IF:Digital I/F Section:(Page: )
B
TU:Tuner Section:(Page: )
C
DMR-EZ47VP / DMR-EZ475VP
69

Table of Contents

Related product manuals