EasyManua.ls Logo

Panasonic DMR-EZ47VP

Panasonic DMR-EZ47VP
122 pages
To Next Page IconTo Next Page
To Next Page IconTo Next Page
To Previous Page IconTo Previous Page
To Previous Page IconTo Previous Page
Loading...
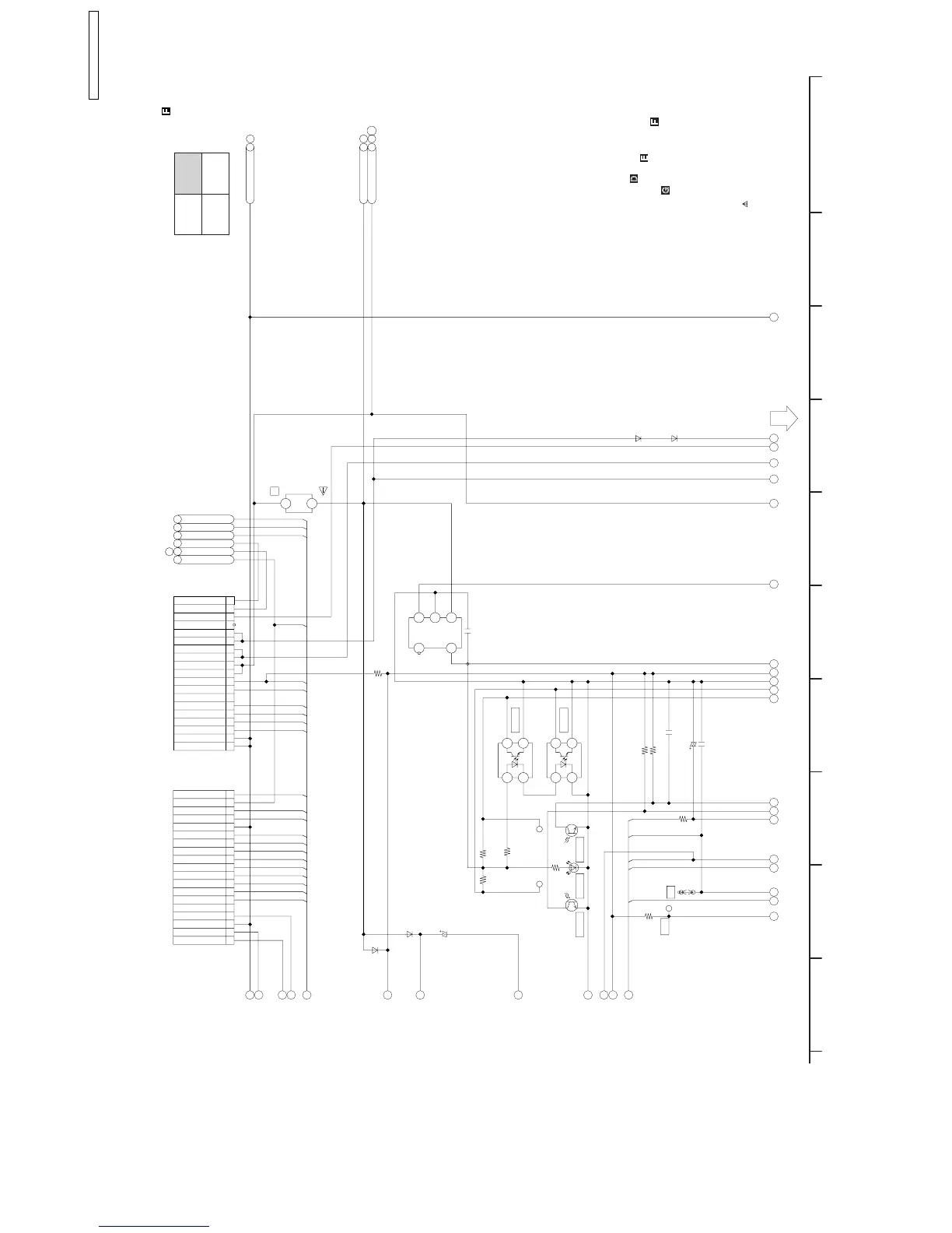
12.11. Syscon/Servo/Timer (2/4) Section (Main P.C.B.(3/4)) Schematic Diagram (S)
K L M N O P Q R S T U V W X Y Z a b c d
1
2
3
4
5
6
7
8
9
10
11
12
VWJ0795=5
D2503
C6020
1000P[KB]
X_SW_5R8V_IP
X_SW_5R8V
B0EAKL000062
D2501
REF_GND
XTMUTE
JC_REG5V
X_SW12R3V
3
1
2
4
5
C0CBCDC00052
IC2001
1u[KB]
C2002
SYNC_DET
1
2
K5H1022A0011
IP6101
L12_SWIDE_A
R1502 27K
DI_PON_H
R1501 27K
2 3
1 4
IC1511
B3NAA0000117
B3NAA0000118
2 3
1 4
IC1512
B3NAA0000117
B3NAA0000118
C6005 50V 3.3
C6012 0.1
XINTM
SBPTM
UARTP2M
SBMTP
SCLK
HDMI_CONT
UARTM2P
TV_VCR
XMPREQ
XINTP
FAN_LOCK1
FANPWM1
R37017
22K
TRK_ENV
R1511
27K
1
TL24
TW2001
VWJ0795=5
R6004
10K
Q1501
PNB2303M01VT
TL6010
F2A0J471A832
C7505
F2A0J471A183
F2A0J471A016
HDMI_P5_ON_H
HDMI_MONI
18
16
14
8
9
11
12
10
2
3
1
5
7
6
4
13
15
17
19
K1KB19AA0032
P6002
D7502
D7506
CH_SW
DR_PON
JC_PON
AFC
TL23
Q1502
PNB2303M01VT
R6006
18K
H_SW
R1503
150[D]
120[22]
R1513
R1512
27K
18
16
14
8
9
11
12
10
2
3
1
5
7
6
4
13
15
17
19
K1KB19AA0032
P6003
2
D1501
B3EA00000072
VHS_CS
IR
A_H_SW
GND
SENSOR
HSW
JC_PON
AFC
GND
S PHOTO
or
or
UARTM2P
UARTP2M
SCLK
HDMI_MONI
DI_PON_H
HDMI_P5_ON_H
GND
TV_VCR
TEST2
HDMI_CONT
T PHOTO
D3R3V
DR_PON_H
S REEL
X_SW12R3V
JC_REG5V
T REEL
UNREG_38V
MECHA_12R3V
MECHA_12R3V
VOUT
VSS
VIN
V
H
NC
ON
I
I
I
I A
V
X_SW6V
X_SW6V
FANLOCK1
MGND
MGND
V A
V
I
I
V
A
FANPWM1
(TO DVD I/F)
CH_SW
F+
F-
-VPP
XFWE
XINTM
XINTP
XMPREQ
GND
SBPTM
SBMTP
(TO DVD I/F)
18 19 2017161514131211
TO
SYSCON/SERVO/TIMER
SECTION
(4/4)
LOCATION MAP
1/4 2/4
3/4 4/4
POWER & DIGITAL I/F SECTION
(DIGITAL I/F SECTION)
TO P31904
POWER & DIGITAL I/F P.C.B.
(DIGITAL I/F SECTION)
TO P31903
NOTE:DO NOT USE THE PART NUMBER SHOWN ON THIS DRAWING FOR ORDERRING.
THE CORRECT PART NUMBER IS SHOWN IN THE PARTS LIST,AND MAY BE
SLIGHTLYDIFFERNT OR AMENDED SINCE THIS DRAWING WAS PREPARED.
V:Video Section:(Page: )
D
A:VHS Audio Section:(Page: )
E
S:Syscon/Servo/Timer Section:(Page: )
I:I/O Section:(Page: )
F
G
WHEN REPLACING ANY OF THESE COMPONENTS.ONLY THE SAME TYPE.
COMPONENTS IDENTIFIED WITH THE MARK HAVE THE SPECIAL CHARACTERISTICS FOR SAFETY.
IMPORTANT SAFETY NOTICE:
DMR-EZ47VP/EZ475VP
Syscon/Servo/Timer(2/4) Section
(Main P.C.B.(3/4))
Schematic Diagram(S)
F
DMR-EZ47VP / DMR-EZ475VP
73

Table of Contents

Related product manuals