EasyManua.ls Logo

Panasonic E3 - Page 147

Panasonic E3
329 pages
Print Icon
To Next Page IconTo Next Page
To Next Page IconTo Next Page
To Previous Page IconTo Previous Page
To Previous Page IconTo Previous Page
Loading...
1-12-2-1-19
1
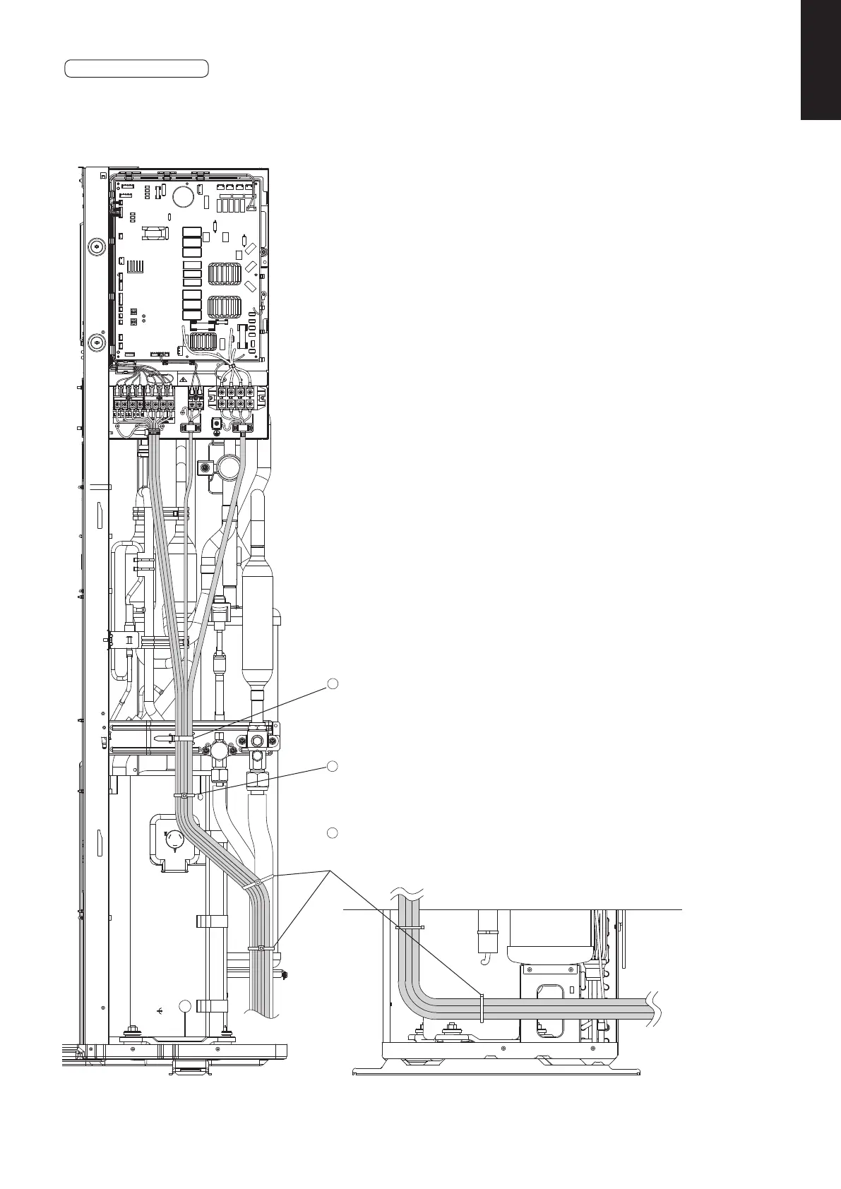
2. WIRING PROCEDURE
Follow the wiring procedure below for terminal connection.
(1) Secure and clamp the power and signal lines with the tie, set up close to the valve.
(2) Set the wiring and cables for the power and signal lines to the outdoor unit together, and secure each wire and cable with the tie.
(3) Set up the wiring and cable for the outdoor unit tubing and secure with a tie.
1
Secure and clamp the wiring and cable together with power and signal lines using the tie set up close
to the valve.
2
Secure and clamp the wiring and cable with the tie (supplied) for the power and signal lines to the
outdoor unit.
3
Secure and clamp all wiring and cable together with the indoor/outdoor tubing using the tie
(supplied).
SM830281-00_欧州向け R32シングル TD&SM.indb 19 20/01/09 15:00:31

Table of Contents

Related product manuals