EasyManua.ls Logo

Panasonic E3 - Page 159

Panasonic E3
329 pages
Print Icon
To Next Page IconTo Next Page
To Next Page IconTo Next Page
To Previous Page IconTo Previous Page
To Previous Page IconTo Previous Page
Loading...
1-12-2-2-12
1
Design of Mini VRF SYSTEM
Unit: mm
Unit: mm
2-R3
5
5
(98)
100
(2)
4-R2.5
8-R3
16
60.6588
16.2
(98)
12
18
M4 FUNNEL
EXTRUDED HOLE
(THIS SURFACE )
(555.5)
300
100
200
755.5
18
12
282.8
2-R3
(2)
22
2-R3
2-R3
1247.5
(2)
(282.8)
86502
(2)
(531.1)
3-M4 FUNNEL
EXTRUDED HOLE
(THIS SURFACE )
13.5
552.5
261 261
145
21.3
18
12
10
15
115
2-M4 FUNNEL
EXTRUDED HOLE
(THIS SURFACE )
4-R3
2-R2
(ACTUAL SIZE)
2-R2
DTL M4 FUNNEL EXTRUDED HOLE(S=1:1)
(5 POSITION)
ø3.3±0.05
ø6.5
2.7
1.5
90°
100
(2)
(2)
(282.8)
(2)
(531.2)
100
(2)
(2)
(98)
5
16
23
2-R3
588 10.9
18
12
M4 FUNNEL
EXTRUDED HOLE
(THIS SURFACE )
2-R3
(98)
16.2
(282.8)
21.3
2-R3
18
12
3-M4 FUNNEL EXTRUDED HOLE
(THIS SURFACE )
5
13.5
552.5
261 261
2-R3
2-R2
(ACTUAL SIZE)
2-R2
145
15
115
18
12
10
2-M4 FUNNEL
EXTRUDED HOLE
(THIS SURFACE )
4-R3
1047.5
(555.5)
1247.5
300
(2)
86 502
R2.5
2-R3
5
R2.5
2-R3
5
2-R3
R2.5
5
2-R3
R2.5
5
DTL FUNNEL
EXTRUDED HOLE(S=1:1)
(5 POSITION)
ø3.3±0.05
ø6.5
2.7
1.5
90°
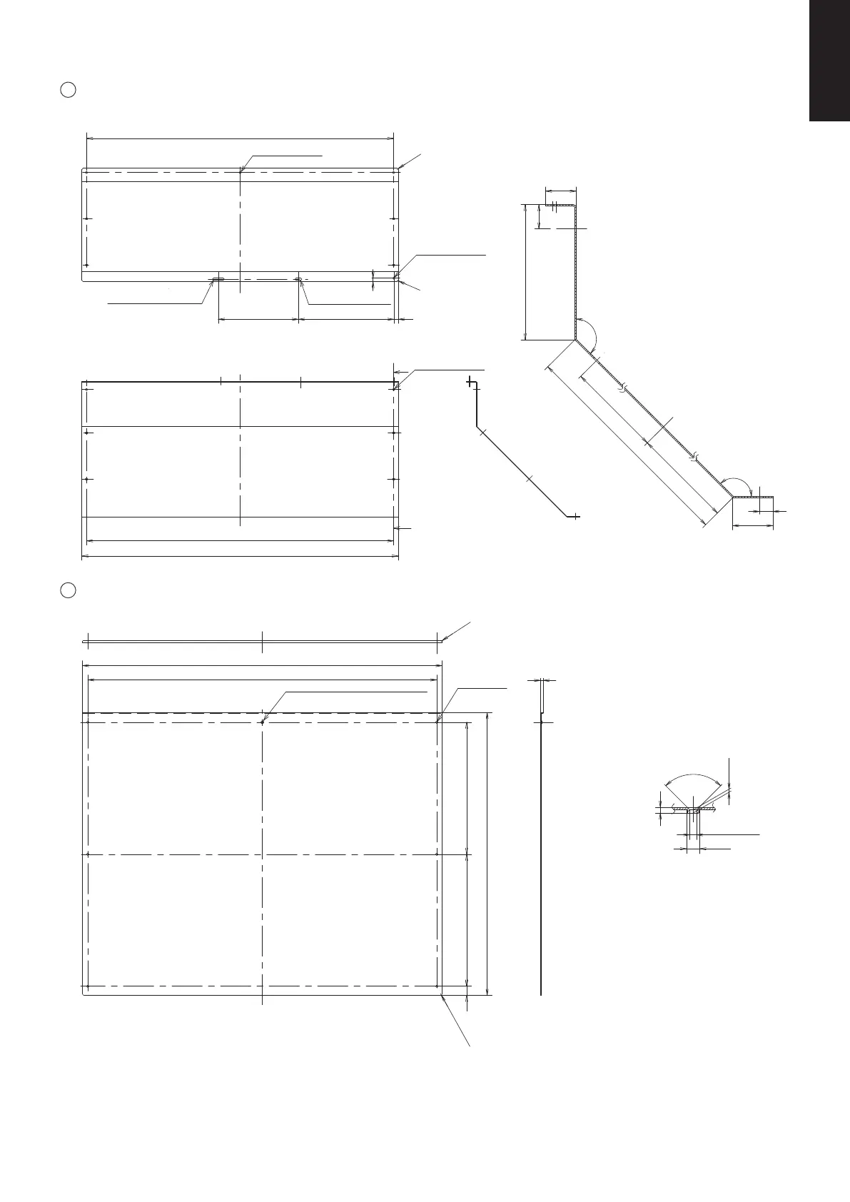
6 Reference diagram for Snow-proof Right side 1 (field supply)
7 Reference diagram for Snow-proof Left side 1 (field supply)
8. Supplement
Design of Mini VRF SYSTEM
Unit: mm
Unit: mm
(690)
2-R3
3-ø5.5 HOLE
2-R3
10
8
2-ø5.5 HOLE
5×15.6 OVAL HOLE
214.5180
5×27 OVAL HOLE
A
A
6-ø5.5 HOLE
690
711
SEC A-A(S=1:1)
18.2
101.2
23
135°
287.2
10
30
135°
119.7
145
690
711
M4 FUNNEL EXTRUDED HOLE
(THIS SURFACE )
2-R3
5
26126118
559
2-R2
6-ø5 HOLE
DLT FUNNEL EXTRUDED HOLE(S=1:1)
(1 POSITION)
ø3.3±0.05
ø6.5
2.7
1.5
90°
8 Reference diagram for Snow-proof Top side 2 (field supply)
9 Reference diagram for Snow-proof Rear side 2 (field supply)
8. Supplement
SM830281-00_欧州向け R32シングル TD&SM.indb 12 20/01/09 15:00:37

Table of Contents

Related product manuals