EasyManua.ls Logo

Panasonic E3 - Page 72

Panasonic E3
329 pages
Print Icon
To Next Page IconTo Next Page
To Next Page IconTo Next Page
To Previous Page IconTo Previous Page
To Previous Page IconTo Previous Page
Loading...
1-12-1-1-3
1
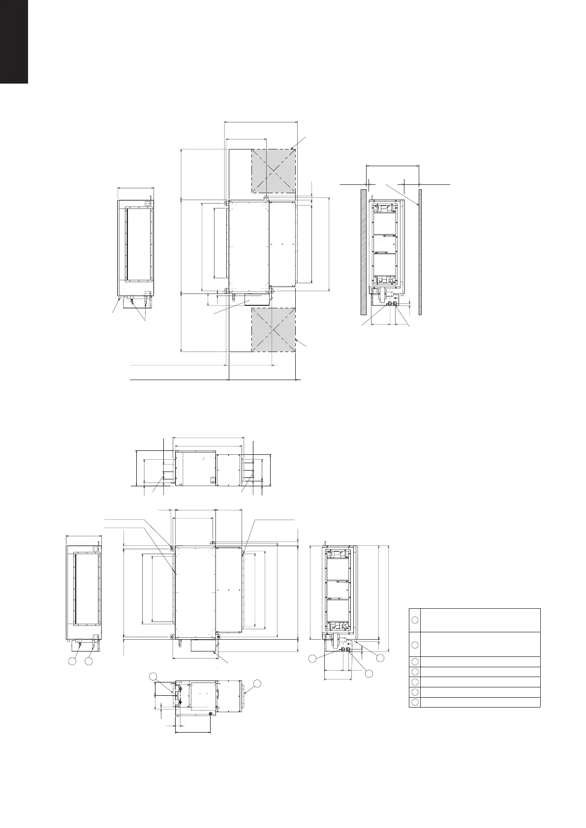
HOW TO INSTALL THE INDOOR UNIT
High Static Pressure Ducted Type
S-200PE3E5B / S-250PE3E5B
(1) Dimensions of suspension bolt pitch and unit
Unit: mm
486
964
1,070
1,291
1,006
166
29
(60)
32
260 70
Min.700
(Space for service)
Electrical
component
box
Min. 800
(Space for service)
Refrigerant
tubing joint
Drain port
1,210 (Suspension bolt pitch)
1,289 (Suspension bolt pitch)
627 (Suspension bolt pitch)
Inspection access (600×600) (Field supply)
Inspection access (600×600) (Field supply)
554 (Suspension
bolt pitch)
Min. 20 Min. 150
Ceiling
face
Min. 690
(Space for service)
For communication
wiring port
For power supply
wiring port
Min. 916 (Space for service)
(2) Dimensions of indoor unit
Unit: mm
1,210
1,288.5
964
1,287
1,070
35.5
168
627
554
554 360
486
1 2
1,287
1,291
1,456
29
70260
381
32
4
3
5
486
434
916
977
42
320
60
67
300
50
100
100
100
29
190 185
484
68
7
6
(60)
(63)
100
45.5
1
Refrigerant liquid tubing (Flare)
ø12.7 (Type 200 : Connection
Tubing ø12.7 → ø9.52)
2
Refrigerant gas tubing (Brazing)
ø19.05 (Connection Tubing
ø19.05 → ø25.4)
3
Power supply port
4
Communication port
5
Drain port VP25
6
Air intake duct connecting side flange
7
Air discharge duct connecting side flange
(Suspension bolt pitch)
(Suspension bolt pitch)
9×100 pitch = 900
10×100 pitch = 1,000
26-ø3.2 hole
(Suspension
bolt pitch)
(Suspension
bolt pitch)
4-37×12 hole 28-ø3.2 hole
Electrical component box
Required Minimum Space for Installation and Service
SM830281-00_欧州向け R32シングル TD&SM.indb 3 20/01/09 14:59:38

Table of Contents

Related product manuals