EasyManua.ls Logo

Panasonic FPS Series

Panasonic FPS Series
332 pages
To Next Page IconTo Next Page
To Next Page IconTo Next Page
To Previous Page IconTo Previous Page
To Previous Page IconTo Previous Page
Loading...
High-Speed Counter and Pulse Output
FPΣ User's Manual
138
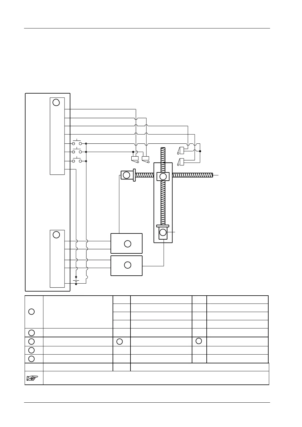
Wiring diagram for examples 4, 6, 7
The wiring diagram below applies to the following examples:
Example 4: home return in a backward direction (-) with 2 axes (see page
145)
Example 6: linear and circular interpolation control (see page
148)
Example 7: circular interpolation, continue mode (see page
149)
X2
X5
X3
XA
X0
XB
XC
CO M
Y0
Y3
+
Y1
Y4
-
D
CH0
CH2
B
C
24V DC
A
E
C
D
(+)
(-) (+)
(-)
X2
Home sensor
XA
Home return start
X0
Near home sensor
XB
Positioning start
X5
Home sensor
XC
Emergency stop
A
PLC: Input terminal
X3
Near home sensor
B
PLC: Output terminal Y0 CW pulse output
Y1
CCW pulse output
C
Motor driver
1
CW input
2
CCW input
D
Stepping motor
F
Moving table (+) + side
(-)
- side
CH0
Channel 0
CH2
Channel 2
If necessary, connect a resistor between PLC outputs and motor driver inputs. Please refer to the
manufacturer's documentation for correct wiring of the motor driver.

Table of Contents

Related product manuals