EasyManua.ls Logo

Panasonic FPS Series

Panasonic FPS Series
332 pages
To Next Page IconTo Next Page
To Next Page IconTo Next Page
To Previous Page IconTo Previous Page
To Previous Page IconTo Previous Page
Loading...
FPΣ User's Manual
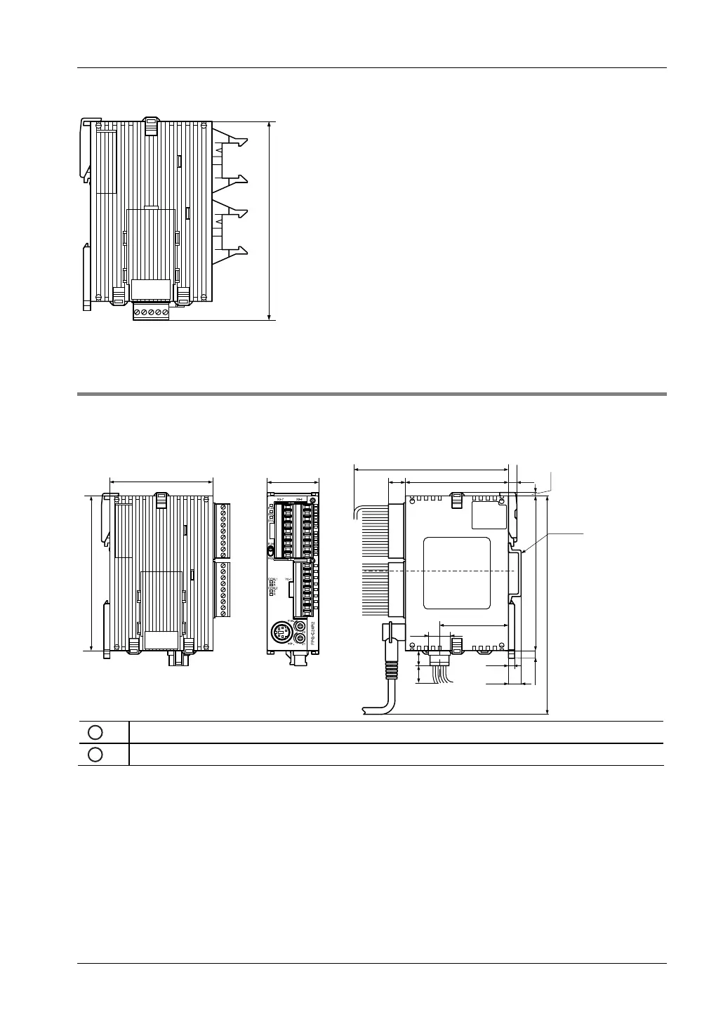
12.4 Dimensions
287
CPU with communication cassette
(100)
* With FPG-COM4: 105mm
12.4.2 Relay Output Type CPU
FPG-C24R2(H)
(10)
40
(13)
(9)(10)
FPΣ
30.0
90.0
60.0
(3.5)
60.0
90.0
Approx. 130.0
(7.5)
(5.0)
(4.5)
(2.0)
90
1
2
1
Maximum installation dimension
2
DIN rail (DIN EN50022 35mm)

Table of Contents

Related product manuals