EasyManua.ls Logo

Panasonic FPS Series - Using Optional Mounting Plates; Slim Type and FPΣ Mounting Plates

Panasonic FPS Series
332 pages
Print Icon
To Next Page IconTo Next Page
To Next Page IconTo Next Page
To Previous Page IconTo Previous Page
To Previous Page IconTo Previous Page
Loading...
FPΣ User's Manual
6.1 Installation
69
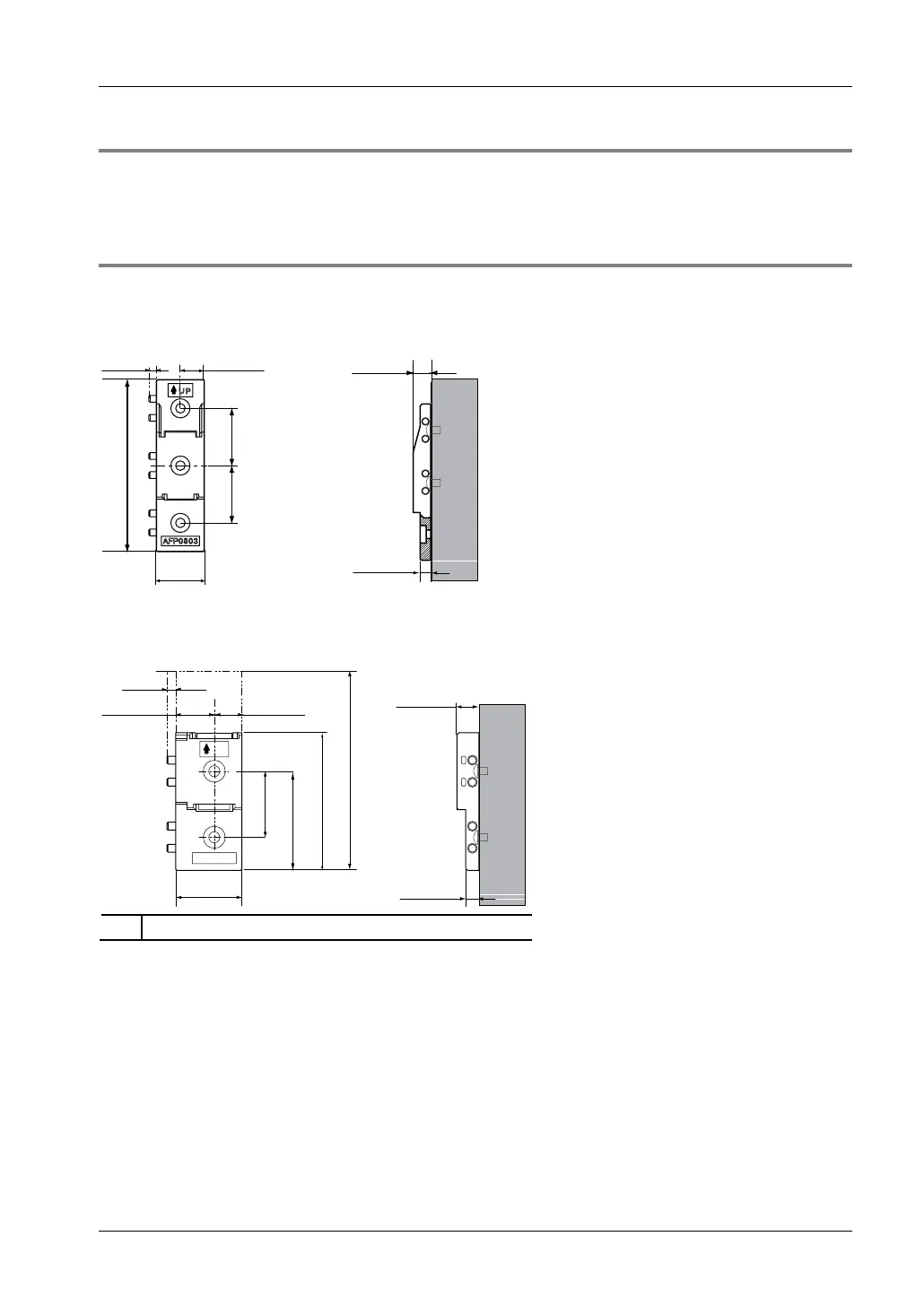
6.1.3 Using Optional Mounting Plates
Use M4 size pan-head screws for attaching the mounting plate to the mounting panel. The
diagrams below show the dimensions of the mounting plates.
6.1.3.1 Slim Type and FPΣ Mounting Plates
Slim type mounting plate
Use the slim type mounting plate (AFP0803) for mounting 25mm type FP0 units:
6mm
10mm
25mm
30mm
30mm
90mm
4mm 12.5mm
FPΣ mounting plate
Use the FPΣ mounting plate (AFP0811) for mounting FPΣ units and 30mm type FP0 units:
AFP0811
UP
6mm
10mm
45mm
30mm
30mm
4mm
62.5mm
17.5mm
12.5mm
d=90mm
d
Total unit length

Table of Contents

Related product manuals