EasyManua.ls Logo

Panasonic FPS Series

Panasonic FPS Series
332 pages
To Next Page IconTo Next Page
To Next Page IconTo Next Page
To Previous Page IconTo Previous Page
To Previous Page IconTo Previous Page
Loading...
High-Speed Counter and Pulse Output
FPΣ User's Manual
140
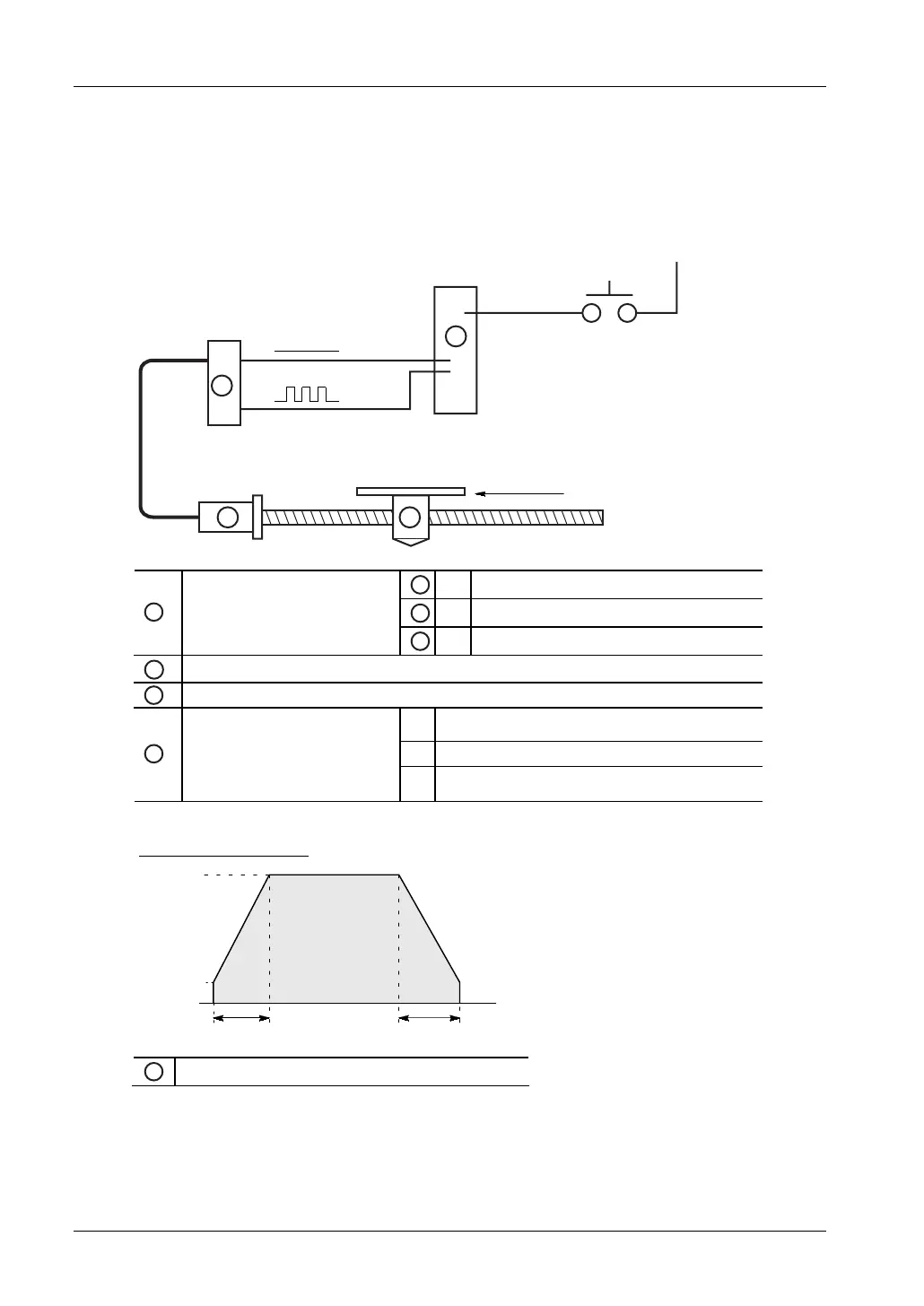
b. Incremental counting, backward direction (-)
When X9 (X9_bPositioningStartMinus) turns to TRUE, the pulse is output from the
CCW pulse output of the specified channel 0. (The output is used implicitly by
F171_PulseOutput_Trapezoidal.)
( - ) ( + )
A
x
C
B
D
0V (24V DC)
1
X9 Positioning start (+)
2
Y0 CW pulse output
A
PLC
3
Y1 CCW pulse output
B
Motor driver
C
Stepping motor
(+) + side
(-) - side
D
Moving table
X 8000 pulses
Pulse output diagram
300ms 300ms
6000Hz
1000Hz
0Hz
1
Total movement amount: 8000 pulses
c. Absolute value control
When X8 (X8_bPositioningStartPlus) turns to TRUE, pulses are output from the CW
pulse output or CCW pulse output of the specified channel 0. If the current value at
that point is larger than 22000, the pulses are output from the CCW pulse output, and

Table of Contents

Related product manuals