EasyManua.ls Logo

Panasonic TX-PR42C10 - 3 Service Navigation; Service Hint

Panasonic TX-PR42C10
123 pages
Print Icon
To Next Page IconTo Next Page
To Next Page IconTo Next Page
To Previous Page IconTo Previous Page
To Previous Page IconTo Previous Page
Loading...
6
3 Service Navigation
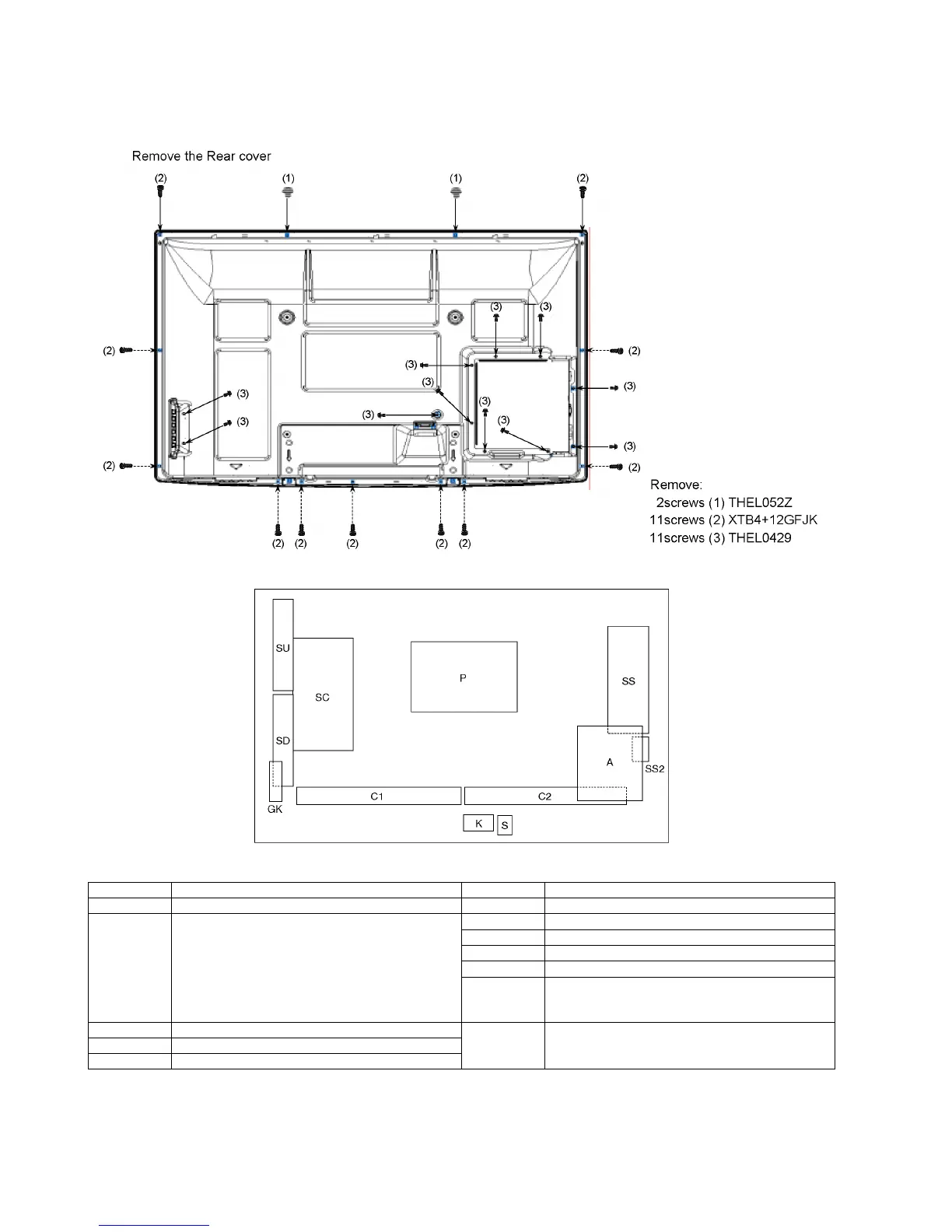
3.1. Service Hint
Board Name Function Board Name Function
P Power Supply C1 Data Driver (Lower Right)
A DC-DC Converter, Tuner
Speaker out, AV Terminal, AV Switch
Digital Signal Processor, SYSTEM MPU, HDMI Switch
Peaks lite 2p
Format Converter, Plasma AI, Sub-Field Processor
C2 Data Driver (Lower Left)
SC Scan Drive
SS Sustain Drive
SS2 Sustain out (Lower)
SU Scan out (Upper)
Non-serviceable.
SU-Board should be exchanged for service.
K Remote receiver, Power LED SD Scan out (Lower)
Non-serviceable.
SD-Board should be exchanged for service.
S Power Switch
GK Key Switch

Table of Contents

Related product manuals