EasyManua.ls Logo

Peak 210C - Install Electrical System; Single Phase Motor

Peak 210C
36 pages
Print Icon
To Next Page IconTo Next Page
To Next Page IconTo Next Page
To Previous Page IconTo Previous Page
To Previous Page IconTo Previous Page
Loading...
19
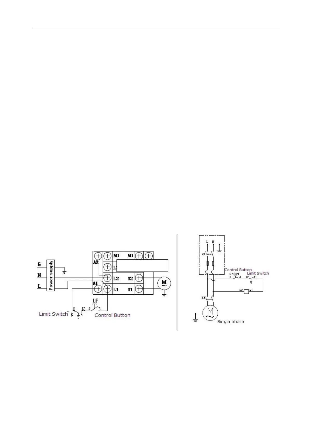
Q. Install electrical system
Connect the power source on the data plate of power unit.
Note: 1. For safety of operators, the power wiring must contact the floor well.
2. Pay attention to the direction of rotations when using three phase
motors.
Single phase motor (See Fig. 32).
1. Connecting the two power supply lines (Active L and Neutral wire N) to terminals of AC
contactor marked L1, L2 respectively.
2. Connecting the two motor wires to terminals of AC contactor marked T1, T2.
3. Connecting A2 to L2 of AC contactor.
4. Connecting the Limit Switch: Removing the wire of connecting terminal 4# on
control button and terminal A1 on AC contactor firstly (See Fig. 33), then connecting
wire 12# (brown color) of the limit switch with terminal 4# of the control button
and connecting wire 11# (blue color) with terminal A1 on AC contactor respectively.
Connecting the earth wire (green and yellow color) of the limit switch with earth wire
terminal on power unit. (See Fig. 34).
5. Connecting terminal 3# on control button with terminal L1 of AC contactor.
AC contactor