EasyManua.ls Logo

Peri MULTIFLEX - A7 Application Example; Edge Table Overview; Starting Field Overview

Default Icon
68 pages
Print Icon
To Next Page IconTo Next Page
To Next Page IconTo Next Page
To Previous Page IconTo Previous Page
To Previous Page IconTo Previous Page
Loading...
22
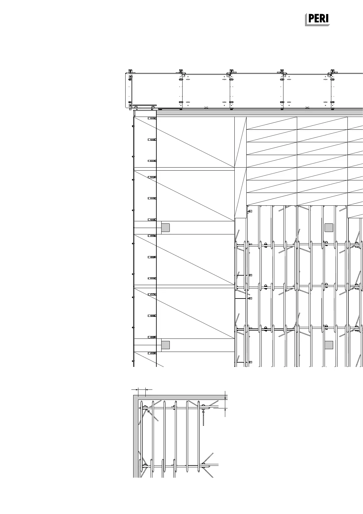
Overview of edge table
(Fig. A7.01)
The basis of the MULTIFLEX is an all-
side horizontal, non-displaceable and
supported slab formwork!
This is given for circumferential walls
and pre-concreted beams. Otherwise,
the transfer of horizontal loads must be
guaranteed in according at currently
vallid standards through other measures
provided on site, e.g. bracing!
VT 20: min. 15 cm, max. 50 cm
GT 24: min. 16 cm, max. 45 cm
Fig. A7.02
Overview of starting field
(Fig. A7.02)
max. 30
A7 Application Example
MULTIFLEX Girder Slab Formwork
Assembly Instructions for Standard Configuration