EasyManua.ls Logo

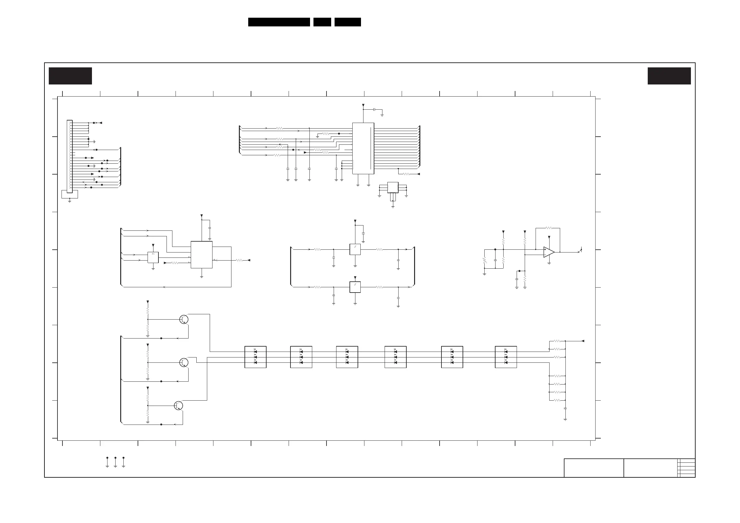
Philips 32PFL5605D/78 - Circuit Diagrams and PWB Layouts; Ambilight: Everlight LED Common 1; Al1 A

Philips 32PFL5605D/78
85 pages
Print Icon
To Next Page IconTo Next Page
To Next Page IconTo Next Page
To Previous Page IconTo Previous Page
To Previous Page IconTo Previous Page
Loading...
Circuit Diagrams and PWB Layouts
EN 47LC9.3L LA 10.
2010-Mar-26
10. Circuit Diagrams and PWB Layouts
Ambilight: Everlight LED Common 1
18770_670_100212.eps
100219
Everlight 15 LED Common
AL1A AL1A
8204 000 9059
AL 2K10 Everlight
15 LED Common
2009-11-27
2
2009-11-03
1
BLUE
GREEN
RED
BLUE
GREEN
RED
OUT
12
11
GSCLK
IREF
MODE
SCLK
SIN
SOUT
XERR
XHALF
XLAT 10
NC
9
8
VCC
0
1
2
3
4
5
6
7
BLANK
13
14
15
GND GND_HS
BLUE
GREEN
RED
BLUE
GREEN
RED
S
GND
Q
HOLD
W
VCC
C
D
VIA
VIA
VIA
VIA
BLUE
GREEN
RED
BLUE
GREEN
RED
-T
FB07 B1
FB08 B1
FB15 C1
3B37 G14
3B39-1 E13
3B34 D13
3B36 G14
7003 G10
7004 G11
7B30 D13
FB01 A1
3B02-2 E5
3B03-1 H14
3B03-4 H14
3B07-1 F3
FB41 E13
FB03 B1
FB04 B1
FB05 B1
3B03-3 H14
7005 G13
7B06 D3
FB12 B2
FB13 C1
7B20-1 D8
7B20-2 E8
7B07 D4
3B30-1 D9
3B30-4 E9
2B04-4 B7
2B08 E12
3B35 G14
2B10 F9
2B11 A9
2B17 D8
3B39-2 D12
3B39-3 D1
3
7000 G5
7001 G7
FB20 B7
FB30 G3
3B31 B10
FB35 A8
FB40 D12
7B23-1 F4
7B25 H3
7B26-1 A8
7B26-2 C9
3B01-2 D7
3B02-1 E3
D
E
3B03-2 H14
G
H
I
3B07-2 G3
3B07-3 H3
3B07-4 G3
3B11 E12
FB06 B2
FB10 B2
FB11 B1
3B18 A8
3B21 B7
3B22 B8
56
2B09 E12
8 910
2B20 D4
3004 E12
3B00-1 A6
3B00-2 B6
7002 G8
FB16 C1
FB31 H3
FB32 I3
7B23-2 G4
3B00-4 B6
3B01-1 E7
B
C
F
8 910
A
B
C
D
3B13-3 H3
3B13-4 I3
3 4
7111213 14
3B00-3 B6
H
I
1M83 C1
2B02 E9
2B00 E8
11 12 13 14
E
4567
3
1
12
F
A
2
G
2B01 F8
2B03 I14
2B04-1 B7
2B04-2 B6
2B04-3 B8
FB32
65
2
1
4
3
+3V3
99-235/RSBB7C-A24/2D
7005
+3V3
10n
2B09
2K0
3B31
4
+3V3
1
2
3 5
7B06
74LVC1G32GW
FB40
18
2B20
100n
10K
3B07-1
FB20
FB30
8
3B21
150R
3B30-1
220R
1
B002
+3V3
FB08
3B07-3
10K
3 645
+3V3
FB31
10K
3B13-4
1
43
+3V3
7002
99-235/RSBB7C-A24/2D
65
2
25
32
FB35
9
10
11
14
15
1
2
23
27
22
5
16
17
18
19
20
21
6
7
8
31
30
33
24
26
3
12
13
28
29
4
TLC5946RHB
7B26-1
FB10
FB11
6
5
2
1
4
3
6
7004
99-235/RSBB7C-A24/2D
3B03-3
1K5
3
FB01
27
45
3B07-2
10K
+24V
220R
3B30-4
100n
2B03
100n
2B11
3B01-1
100R
1 8
2B08
10n
27
1K5
3B03-2
3B36
270R
1K5 1%
3 6
3B39-2
27
3B39-3
5
6
+24V
1%1K5
7B20-1
74LVC2G17
1
2
2
6
1
1
3
4
52
BC847BS(COL)
7B23-1
LMV331IDCK
7B30
3B35
270R
3B37
68R
5
3
4
B001
3 6
BC847BS(COL)
7B23-2
150R
3B00-3
2B17
100n
2B04-4
100p
45
36
37
38
39
40
41
42
7B26-2
TLC5946RHB
34
35
4
7
2
1
8
3
+3V3
M95010-WDW6
7B07
(64K)
Φ
6
5
7B25
BC847BW
1
3
2
3 6
3B18
1K8
+3V3
3B13-3
10K
33p
2B01
100R
3B01-2
27
+24V
100p
2B02
65
21
43
+3V3
+3V3
7001
99-235/RSBB7C-A24/2D
45
FB16
1K5
3B03-4
FB05
FB07
FB04
45
10K
3B07-4
7003
6
5
21
43
99-235/RSBB7C-A24/2D
3
25
4
+3V3
1 8
74LVC2G17
7B20-2
150R
3B00-1
33p
2B00
1 8
+3V3
1 8
3B03-1
1K5
2B04-1
100p
10K
3B02-2
27
1K5 1%
8 1
1 8
3B39-1
FB03
3B02-1
10K
FB13
2B10
100p
3B34
RES
100K
150R
3B00-4
45
5
6
7
8
9
2627
18
19
2
20
21
22
23
24
25
3
4
1M83
FH12-25S-0.5SH(55)
1
10
11
12
13
14
15
16
17
FB12
B007
FB15
10K
3004
RES
FB06
+3V3
3B11
10K
150R
3B00-2
27
+24V
2B04-2
100p
27
3 6
43
+3V3
2B04-3
100p
99-235/RSBB7C-A24/2D
7000
65
21
+24V
10K
3B22
FB41
TEMP-SENSOR
BLANK
PROG
SPI-CS
PWM-CLOCK
SPI-DATA-RETURN
SPI-DATA-IN
SPI-CLOCK
LATCH
PWM-CLOCK
BLANK
SPI-DATA-IN-BUF
PWM-R1
PWM-G1
PWM-R1
PWM-G3
PWM-R3
PWM-R2
PWM-B2
PWM-G2
DATA-SWITCH
TEMP-SENSOR
PWM-G4
PWM-R4
PWM-B4
PWM-R5
PWM-G5
PWM-B5
SPI-CLOCK-BUF
SPI-DATA-IN-BUF
SPI-DATA-RETURN
SPI-CS
DATA-SWITCH
LATCH
SPI-DATA-IN
SPI-DATA-OUT
PWM-CLOCK-BUF
SPI-CLOCK-BUF
PROG
SPI-CLOCK-BUF
PWM-CLOCK-BUF
SPI-CLOCK
PWM-G1
PWM-B1
PWM-B1
PWM-B3

Related product manuals