EasyManua.ls Logo

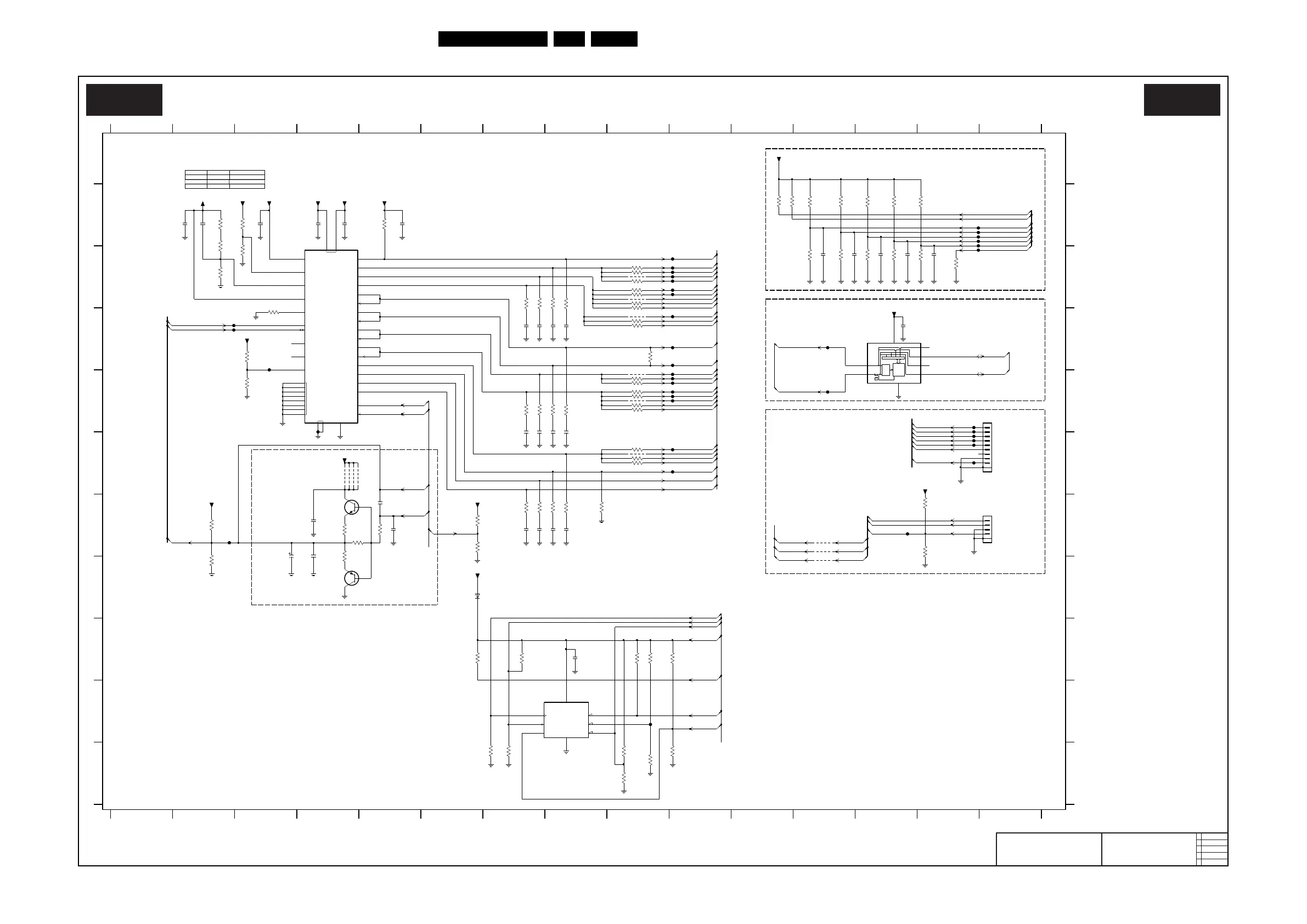
Philips 32PFL5605D/78 - SSB: P Gamma & VCOM & Flash

Philips 32PFL5605D/78
85 pages
Print Icon
To Next Page IconTo Next Page
To Next Page IconTo Next Page
To Previous Page IconTo Previous Page
To Previous Page IconTo Previous Page
Loading...
Circuit Diagrams and PWB Layouts
EN 71LC9.3L LA 10.
2010-Mar-26
SSB: P Gamma & VCOM & Flash
18970_516_100322.eps
100322
P Gamma & Vcom & Flash
B14C B14C
2009-11-16
1
3139 123 6481
LC10 PCB SB SSB DIGITAL
SI
SO
CS
HOLD
WP
SCK
INPCOM|DVR_OUT
REFIN_INN
REFIN
SET
SCL
SDA
SET_COMP
V_THERM
BANKSEL
GND_HS
VIA
GND
OUT10
OUT11
OUT12
OUTCOM
INNCOM
AVDD
OUT1
OUT2
OUT3
OUT4
OUT5
INN5
OUT6
INN6
OUT7
INN7
OUT8
INN8
OUT9
VSD
-BUS
CTRL
FIL
I
2
C
INP
FKYE F10
FKYF F10
FKYG E12
FKYH D12
cKQB F5
NC
DEBUG ONLY
*
*
*
*
32 INCH
FKQP J9
FKQQ F4
FKQR D3
FKQT D3
FKQU F14
40/46/52 INCH
3KQA
3KQC
3KQE 3K9
FKMF C10
FKMG D10
100K
6K2
10K
39K
2K7
FKQB E14
FKQC F14
FKQD F14
FKQE F14
FKQF G13
NC
VCOM BUFFER
I2C SWITCH (VGA VCOM)
ASIC OPTIONS
FKQM C15
9KQH G12
9KQJ G12
9KQK H12
FKLY G2
FKLZ C10
FKQW D3
FKYA E10
FKYB E10
FKYC E10
FKYD E10
3KYJ G14
3KYK C13
FKMH D10
FKMJ D10
FKMK E10
FKML E10
FKQA E14
7KQA B4
7KQB J8
7KQC H4
7KQD G4
7KQH D13
FKQG B15
FKQH B15
FKQJ B15
FKQK B15
FKQL B15
3KTN K9
3KTP D3
3KTQ E3
9KQF F9
9KQG-1 F4
9KQG-2 F4
9KQG-3 F4
9KQG-4 F4
3KTY C12
3KTZ C12
3KYA B12
3KYB B13
3KYC B13
FKMA C10
FKMB C10
FKMC C10
FKMD C10
FKME C10
3KRH G5
3KRJ G4
3KRK G4
3KRL-1 E8
3KRL-2 E8
3KYM G2
3KYN H2
3KYP G6
3KYQ G6
6KQA H6
3KRM-4 G7
3KTD I6
3KTE I7
3KTF I9
3KTG K9
9KQA C9
9KQB C9
9KQC D9
9KQD E9
9KQE E9
NC
3KQG B5
3KQH-1 C8
3KQH-2 C8
3KTR G8
3KTT K10
3KTU B11
3KTV B11
3KTW B12
3KQM C9
3KQN C9
3KQP C9
3KQQ C9
3KQR D9
3KYD B14
3KYE C13
3KYF C14
3KYG C14
3KYH G14
3KRA E9
3KRB E9
3KRC E9
3KRD F9
3KRE F9
3KRF F9
3KRG G4
2KQT G7
2KQU G8
2KQW G8
2KQY G4
2KQZ G3
3KRL-3 E7
3KRL-4 E7
3KRM-1 G8
3KRM-2 G8
3KRM-3 G7
2KRM C13
2KRN C14
2KRQ D13
2KRT G5
3KQA B2
3KTH K7
3KTJ K7
3KTK I9
3KTL I10
3KTM K9
11 12 13 14 15
3KQH-3 C7
3KQH-4 C7
3KQJ C9
3KQK C9
3KQL C9
D
E
F
G
H
3KQT D9
3KQU D9
3KQW E9
3KQY E9
3KQZ E9
2KQJ D8
2KQK D8
2KQM E7
2KQN E7
2KQP E8
2KQQ E8
2KQR G7
2 3 456
2KRA G4
2KRB G5
2KRH I8
2KRJ C12
2KRL C13
12 13 14 15
3KQB B3
3KQC B2
3KQD C3
3KQE C2
3KQF D3
NC
5678 910
B
C
D
E
A
B
C
K
1KQA E15
1KQB G15
2HRK C12
I
J
K
A
2KQF B5
2KQG D7
2KQH D7
1 7 8 91011
NC
F
123 4
3KQH-1
10R
1 8
G
H
I
J
2KQA B2
2KQB B2
2KQC B3
2KQD B4
2KQE B4
2KQK
100n
1u0
FKQE
2KQA
3KTD
2K2
2K2
3KQU
RES
2KQB
1u0
FKQG
FKQM
FKQH
2K2
3KTU
VCC_3V3
2K0
3KYG
100n
2KQG
2KQH
100n
100R3KQZRES
RES 100R3KQY
100R
2HRK
RES3KQT
FKQK
RES
1n0
3KYF
2K2
FKQJ
2K0
3KYD
RES
RES
2K2
C
YK3E
YK3
2K0
VREF_15V2
RES
3KYQ
10K 10K
3KYP
RES
RES 2KRT
100n
100R3KQKRES
RES3KQL 100R
100R3KQJRES
100n
2KQM
0.5%3K3
3KQF
VLS_15V6
10K
3KYN
RES
VREF_15V2
RES
3KYM
10K
4u7
2KRH
3KTY
2K2
RES3KQW 100R
9KQD
3KTV
2K2
16V
2KQZ
22u
0.5%10K
3KQE
0.5%2K2
3KQG
9KQG-2
27
MSS1P4
6KQA
2K2
3KTK
RES
100R3KRFRES
45
100n
2KQJ
3 6
10R
3KQH-4
27
3KQH-3
10R
10R
3KQH-2
5
3KYA
2K2
3KRM-4
10R
4
100n
2KQW
9KQE
3KRC 100R
3KRBRES
RES
100R
2KQY
10u
68p
VCC_3V3
2KRB
2KQC
100n
3KQA
0.5%100K
VLS_15V6VLS_15V6
9KQC
100R3KQRRES
0.5%22K
3KQB
0.5%6K2
3KQC
10R
3KRM-1
1 8
RES 100R3KQN
RES3KQM 100R
9KQA
7KQC
PBSS5330X
PBSS4540X
7KQD
3KTW
RES
2K0
0R51
3KRG
0.5%750R
3KRJ
0.5%1K0
3KRH
FKQU
2KQF
10u
3KYK
2K2
3KRE 100RRES
2K2
3KTR
VCC_3V3
3KTQ
10K 10K
3KTP
RES
100n
2KQE
VLS_15V6
2KQD
100n
3KRA 100R
100n
RES
3KRL-1
10R
1 8
RES 2KRA
27
10R
3 6
10R
3KRL-2
45
3KRL-3
10R
3KRL-4
41
29
31
2KQQ
100n
13
12
28
30
34
35
36
37
38
39
40
7
8
10
16
18
19
25
32
1
15
17
26
27
2
22
23
24
3
4
5
21
14
6
20
33
9
11
7KQA
ISL24837IRZ-T13
4
7
6
5
2
8
3
FKQP
(32K)
Φ
FLASH
7KQB
AT25DF321-SU
1
100n
2KQT
0.5%18K
3KQD
3KRD 100R
2KQR
100n
RES
RES 2KRJ
1n0
9KQG-33 6
100R3KQQRES
3KQP 100R
9KQKRES
RES
RES
VCC_3V3
3KYH
10K10K
3KYJ
RES
1 8
VCC_3V3
0R51
9KQG-1
3KRK
FKLZ
FKMB
FKQF
FKMH
1KQB
RES
1
2
3
4
56
502382-0470
FKQT
2K2
3KTN
RES
9KQF
+VDISP
2K2
3KTE
RES
VCC_3V3
RES
3KTL
2K2
2K2
3KTH
RES
2KQN
100n
100n
2KQP
3KTF
4K7
VREF_15V2
RES
3KTG
2K2
2K0
3KYB
27
RES
3KRM-2
10R
RES
45
2KRN
1n0
3 6
9KQG-4
RES
10R
3KRM-3
9KQH
FKQD
FKQC
11
FKQA
FKQB 2
3
4
5
6
7
8
9
10
502382-0970
1KQA
RES
1
SDA2
VDD
3
VSS
6
FKMA
RES
SC0 5
SC1 8
SCL 40DS1
SD1 7
RES
PCA9540B
7KQH
9KQJ
FKMF
FKMG
FKMD
FKME
FKQR
cKQB
RES
3KTJ
2K2
1n0
2KRM
RES
RES
2KRL
1n0
FKQL
FKYH
FKQW
FKYG
FKQQ
FKYF
2KQU
100n
2K2
3KTM
FKYA
FKML
FKMJ
FKMK
RES
FKMC
2KRQ
100n
RES
2K0
3KTZ
2K2
3KTT
RES
FKLY
9KQB
FKYE
FKYC
FKYD
VCC
EN
OUTCOM
OUTCOM
FKYB
SDA-TCON
EN
BYPASS_MODE
SCK
SDO
SCS
SDI
WP
VCC
SCL-TCON
SDA-TCON
CTRL-DISP
SDA-DISP
SCL-DISP
VGA-SDA-EDID-TCON
SDA-TCON
SCL-TCON
VGA-SCL-EDID-TCON
SCL-TCON
BYPASS_MODE
SDO
VL255
SCS
VCOM
SDI
SCK
SELLVDS
R_L
WP
MODE2
SCL-TCON
SDA-TCON
100HZ_120HZ
OS_ON-OFF
U_D
INNCOM
VL31
VL159
VL63
VL95
VL0
VH0
VL247
VL191
VL159
VL127
VH247
VH159
VH191
VH95
VH159
VH127
VH191
VH95
VH63
VL95
VL127
VH127
VH255
CS_L
CS_H
INNCOM
OUTCOM
SCL-TCON
SDA-TCON
VH63
VH31
VL63
VL191

Related product manuals