EasyManua.ls Logo

Philips LC8.1E - SSB: YPBPR & SVHS

Philips LC8.1E
71 pages
Print Icon
To Next Page IconTo Next Page
To Next Page IconTo Next Page
To Previous Page IconTo Previous Page
To Previous Page IconTo Previous Page
Loading...
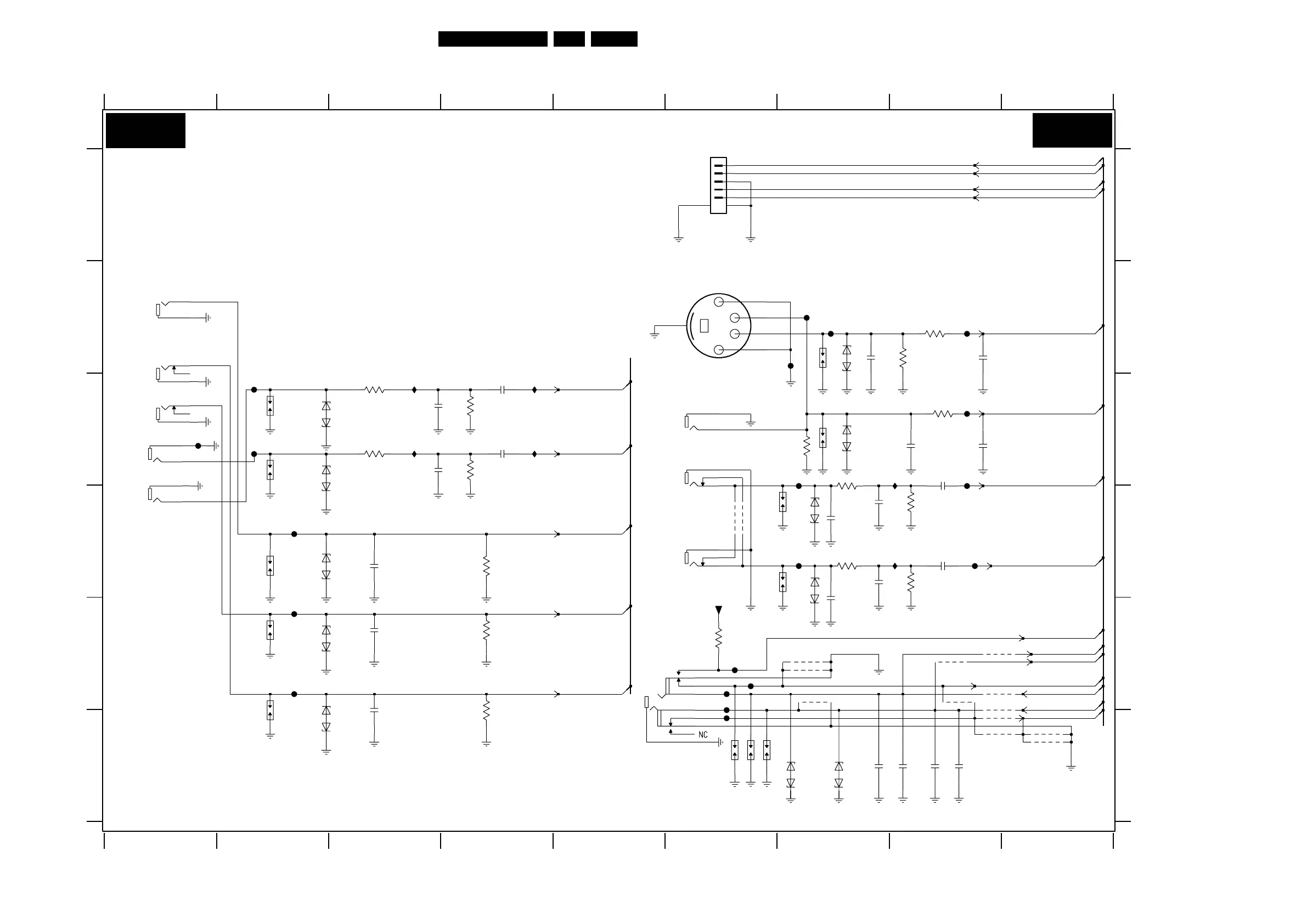
Circuit Diagrams and PWB Layouts
41LC8.1E LB 7.
SSB: YPBPR & SVHS
WHITE
RED
RES
6789
A
B
C
D
E
F
A
B
C
D
E
F
1601 B6
1602-1 C6
1602-2 D6
123456789
123 5
RES
RES
RES
1602-3 C6
1603 F5
1605 A6
1606 E2
1607 D2
1608 C7
1609 B7
1610 F2
1611 C2
1613 C2
1614-1 B1
1614-2 C1
RES
1615-1 C1
RES
RES
GREEN
RES
1615-2 C1
1616 D7
1617 D7
1618 F6
1619 F6
1620 F6
2600 B7
2602 E3
2603 D3
2606 E3
2607 C4
2608 C3
2609 C8
2610 C4
2612 C3
2613 F8
2614 F8
2615 F8
4
2621 C8
RES
RES
RES
RES
RES
RES
RED
2622 D8
2623 D8
2624 D8
2625 B8
2626 C8
2627 D7
2628 E7
3600 B8
3601 E4
1614-3 C1
3603 D4
RES
HEADPHONE
RES
YPBPR & SVHS
RES
SVHS
RES
3604 B8
3605 E4
3606 E6
3607 C3
3608 C4
3609 C7
3611 C3
3612 C4
2616 F8
3622 D8
RES
RES
BLUE
RES
3623 D7
3624 D8
4601 D6
4602 D6
4603 E7
4604 E7
4605 F9
4606 F9
4607 E8
4608 E8
3602 C8
4610 E8
RES
RES
RES
4611 E7
4612 E8
4613 F8
4614 F8
6604 B7
6606 C7
6610 E2
6611 D2
6612 F2
6613 C2
6614 C2
6615 F7
6616 F7
6621 D7
6622 D7
F601 B7
3621 C7
F603 B8
RESRES
CVBS
RES
RES
F604 D2
F605 E2
F606 C8
F607 E2
F608 C2
F609 C2
F610 C7
F611 D7
F612 C8
F613 D8
F614 C1
F615 B7
F616 E6
F617 E6
F618 E6
F619 E6
F620 F6
I610 C4
I611 C4
I621 C8
4609 E8
I623 C3
I624 D8
I627 C3
RES
F602 B7
4613
46124611
I611
1608
F606
22n
2613
4614
2627
33p
F611
3624
15K
6614
PESD5V0S1BA
1
2
3
4
5
67
BM05B-SRSS-TBT
1605
F605
6606
PESD5V0S1BA
7
8
9
1
1603
6
5
4
2
3
4601
MSJ-035-10B B AG PPO
GNDSND
4604
2623
2u2
12
MTJ-032-37BAA-432 NI
1
2
PESD5V0S1BA
6615
YELLOW
1614-1
PESD5V0S1BA
6604
I627
2612
180p
GNDSND
PESD5V0S1BA
6612
PESD5V0S1BA
6613
1618
10K
3623
26093609
75R
1610
1619
I610
2u2
2610
I623
2616
1609
4609
10n
3605
75R
6610
PESD5V0S1BA
10K
3606
F607
2606
3612
15K
1601
5
1
3
4
2
F604
MDC-013V1-B
F603
1606
2602
I621
F601
33p
2626
75R
3603
F613
MTJ-032-37BAA-432 NI
RED
1614-3
9
7
8
180p
2608
F608
F610
4602
33p2628
PESD5V0S1BA
6611
+3V3_SW
6622
PESD5V0S1BA
180p
3607
10K
2622
4610
3621
10K
2603
F602
F620
10n
2615
3622
15K
4
3
F614
MTJ-032-29BB-32
RED
1615-2
PESD5V0S1BA
6621
WHITE
1602-2
6
4
5
22n
2614
9
7
8
MTJ-032-37BAA-432 NI
1
2
MTJ-032-37BAA-432 NI
RED
1602-3
MTJ-032-37BAA-432 NI
YELLOW
1602-1
4606
1616
F615
3601
75R
5
2621
2u2
1614-2
WHITE
MTJ-032-37BAA-432 NI
6
4
3602
100R
F609
2
PESD5V0S1BA
6616
1
1607
4608
4607
F619
1613
4603
I624
4605
3608
15K
33p
2625
F612
1611
10K
3611
3604
75R
2
1
F616
2607
2u2
MTJ-032-29BB-32
WHITE
1615-1
F618
1620
3600
100R
2624
180p
F617
1617
LOUT_SP_GROUND
ROUT_SP_GROUND
2600
HD_Y_IN
HP_DETECT
SVHS_Y_CVBS_IN
HD_PR_IN
HD_PB_IN
COMP_AUDIO_IN_L
SIDE_AUDIO_IN_R
SIDE_AUDIO_IN_L
SVHS_C_IN
SVHS_Y_CVBS_IN
SVHS_C_IN
RC_1
RC_2
SIDE_AUDIO_IN_L
SIDE_AUDIO_IN_R
LOUT_HP
ROUT_HP
COMP_AUDIO_IN_R
B06A
B06A
I_18170_009.eps
170708
3139 123 6425.1

Related product manuals