EasyManua.ls Logo

Philips LC8.1E - SSB: HDMI

Philips LC8.1E
71 pages
Print Icon
To Next Page IconTo Next Page
To Next Page IconTo Next Page
To Previous Page IconTo Previous Page
To Previous Page IconTo Previous Page
Loading...
44LC8.1E LB 7.
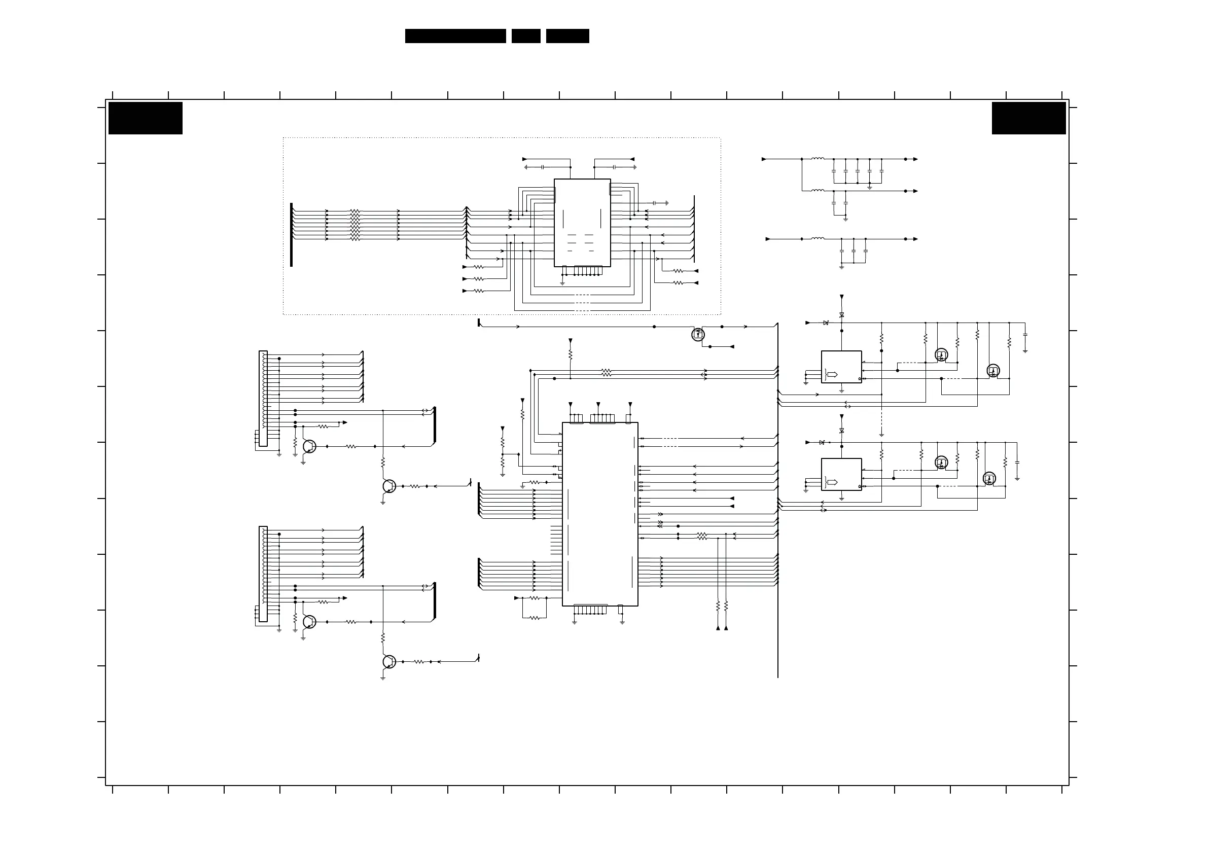
Circuit Diagrams and PWB Layouts
SSB: HDMI
DAT_IN
D2+
NC
CLK_IN
5V
+1D-1D
D0+
SUPPLY
CLK+
NC
DAT_OUT
DET_IN
DET_OUT
HOTPLUG
DDC
DDC
TMDS TMDS
CEC_OUT
CEC_IN
TMDS_VDD
3V3
CLK_OUT
CLK-
D2-
D0-
GND TMDS_GND
SCL
ADR
0
1
2SDA
WC
0-
A
1+
LSCL
D
2+
2-
R0X
0+
DSCL
RESET
C-
0
2-
2+
1-
C+
C+
C-
2-
DGND
AVC C33
2+
1-
0+
DVC C18
AGND
R1X
1
C+
C-
0+
0-
1+
1-
2+
2-
R2X
TX
EPSEL1
LSDA
EPSEL0
CEC
TPWR
I2CSEL
INT
RSVDL
2
0
1
2
DSDA
0
RPWR
2
1
0
HPD
2
1
TSDA
EXT_SWING
AVCC18
HPDIN
1+
0-
0+
C-
C+
TSCL
I2CADDR
0-
1+
1-
SCL
ADR
0
1
2SDA
WC
FN17 E11
FN18 E8
FN19 E14
FN20 G14
FN21 E14
FN22 E15
FN23 G14
4N15 E15
4N16 E16
4N17 G15
IN19 J6
IN20 J6
RES
0R
RES
RES
7N11 F16
7N12 G15
7N13 G16
3N34 G6
3N35 J6
3N36 J6
RES
SINGLE 12NC: 3139 123 64251
FN01 E14
FN02 B15
FN03 A15
FN04 H11
FN05 F4
FN06 F4
FN07 E4
FN08 F4
FN09 F4
FN10 H4
FN11 I4
FN12 I4
FN13 I4
FN14 I4
FN15 D10
FN16 D12
RES
RES
RES
4N14 D9
HDMI
4N18 G15
5N01 C13
5N02 B13
5N03 A13
6N07 F14
6N08 F13
6N09 D14
6N10 D13
7N01 E13
7N02 G14
7N03 D11
7N04 F9
7N05 J4
7N06 G4
7N07 B8
7N08 G5
7N09 J5
0R
0R
RES
7N10 E15
0R
3N37 E16
3N38 E17
3N39 G16
3N40 G16
3N41-1 C5
3N41-2 C5
3N41-3 C5
3N41-4 C5
3N42-1 B5
3N42-2 B5
3N42-3 C5
3N42-4 B5
4N03 F10
4N04 G10
4N11 F14
4N12 D9
4N13 D9
RES
"N00-N99"
HDMI A
RES
MULTI 12NC: 3139 123 64241
3N15 G16
3N16 J11
3N17 J11
3N18 H11
3N19 H11
3N20 E9
3N21 E9
3N22 E9
3N25 F8
3N26 F7
3N27 G8
3N28 I8
3N29 J8
3N30 C7
3N31 C11
3N32 D11
3N33 G6
RES
2N33 B14
2N39 B14
3N01 F4
3N02 G5
3N03 G4
3N04 I4
3N05 D7
3N06 D7
3N07 J5
3N08 J4
3N09 E16
3N10 E15
3N11 G8
3N12 E14
3N13 G14
3N14 G15
RES
RES
0R
16 17
RES FOR SINGLE HDMI
J
K
L
A
B
C
D
E
F
G
H
I
HDMI B
RES
SWITCH 1
RES
A
B
C
D
E
F
G
H
I
0R
0R
RES
J
1 2 3 4 5 6 7 8 9 1011121314151617
123456789101112131415
IN18 G6
RES
K
L
1N01 E3
1N02 H3
2N01 B13
2N02 B8
2N03 B13
2N04 E17
2N05 C14
2N06 B9
2N07 B10
2N10 G17
2N17 B14
2N18 B14
2N19 B14
2N29 C14
2N30 C14
RES
0R
FN24 G15
FN74 C15
IN01 G5
IN02 G4
IN03 J5
IN04 J4
IN06 I8
IN07 G8
IN10 H11
IN11 H11
IN12 G8
IN13 E8
IN14 E8
IN15 A13
IN16 C13
IN17 G6
7N09
BC847BW
100R
3N33
+5VHDMI_B
3N34
2K2
8K2
3N09
IN01
FN04
IN07
14
25
28
31
34
37
24
1027
730
433
5
8
11
20
6
9
12
15
26
29
32
35
38
13
1
16 23
17 22
18 21
3
36
19
7N07
IP4776CZ38
INTERFACE
HDMI
Φ
2
3N22
4K7
FN74
IN13
IN14
IN10
3N41-3
10u2N03
BAT54 COL
6N07
+5V_SW
4K7
3N27
+3V3_STBY
27K
3N31
3N06
47K
3N41-4
3N41-1
3
1
2
4N18
3
1
2
7N13
BSH111
BSH111
7N12
8K2
3N14
FN20
100n
2N04
FN16
FN18
FN15
+3V3_STBY
100R3N20
+5VHDMI_A
100R3N21
26
6
7
8
9
2021
2223
2425
13
14
15
16
17
18
19
2
3
4
5
DC1R019WBER220
1
10
11
12
+1V8_ANA-MUX
1N02
100n
4N03
2N10
FN19
+3V3_ANA-MUX
+3V3_STBY
5
84
7
100K
3N30
M24C02-WMN6
1
2
3
6
+5V_SW
7N02
(256x8)
Φ
EEPROM
10u
2N05
IN12
IN11
100K
3N08
IN16
47K
3N05
3N41-2
1
2
7N10
BSH111
3
100n
2N06
4N11
3N28
470R
3N02
2K2
2N30
100n
100n
+5V_SW
+5VHDMI_B
2N39
BAT54 COL
6N08
+3V3_SW
6
7
8
9
2021
2223
2425
26
14
15
16
17
18
19
2
3
4
5
DC1R019WBER220
1
10
11
12
13
FN14
1N01
84
7
FN17
EEPROM
Φ
(256x8)
7N01
1
2
3
6
5
100R3N18
M24C02-WMN6
2
10
11
52
72
75
78
77
7
8
4
5
1
62
61
65
64
68
67
59
58
13
32
27
19
18
42
41
45
44
48
47
39
38
76
79
35
15
14
22
21
25
24
28
71
30
50
70
33
73
12
16
36
56
69
23
43
55
63
54
53
34
74
31
51
46
60
66
80
6
17
29
37
49
57
Φ
HDMI
SWITCH
SII9185ACTU
7N04
3
9
20
26
40
6N10
BAT54 COL
+3V3_ANA-MUX
6N09
BAT54 COL
3N42-3
3N42-4
3N42-1
3N42-2
5N03
220R
2N17
100n
3N07
2K2
100n
+5V_SW
2N18
1K0
3N32
4N04
+3V3_SW
IN06
7N03
BSH111
4N14
100n
4K7
3N11
2N19
2N07
100n
3N03
100K
+5VHDMI_A
FN02
+3V3_ANA-MUX
FN03
FN09
+3V3_ANA-MUX
5N02
220R
5N01
220R
IN03
IN04
3N37
8K2
3N40
8K2
+5V_SW
IN02
4K7
3N26
+5VHDMI_B
FN13
FN12
FN22
FN24
FN21
FN23
10K
3N13
FN10
+5VHDMI_A
100n
2N33
1K0
3N01
FN11
FN05
3N29
1K0
3N17
47K
47K
3N16
8K2
3N10
8K2
3N38
FN08
8K2
3N39
+1V8_ANA-MUX
+3V3_SW
7N06
BC847BW
100R
3N35
2K2
3N36
7N05
BC847BW
+3V3_SW
2N02
100n
FN01
10K
3N12
3N04
1K0
4N13
4N12
+1V8_DIG-MUX
3N19
100R
10u2N01
+1V8_DIG-MUX+1V8_ANA-MUX
+1V8_SW
FN07
FN06
IN20IN19
IN17 IN18
8K2
3N15
4N16
+5V_SW
4N17
4N15
+5V_SW
IN15
2N29
100n
BSH111
7N11
3
1
2
4K7
3N25
BC847BW
7N08
HDMI_MUX_TXC+
HDMI_MUX_TXC-
HDMI_MUX_TX0+
HDMI_MUX_TX0-
DDC_SCLB
DDC_SDAB
EDID_WC
HDMI_MUX_TX1+
HDMI_MUX_TX1-
HDMI_MUX_TX2+
HDMI_MUX_TX2-
HDMI_CEC
HPD_RST_A
HDMI_MUX_TSDA DDC_SDAA
DDC_SCLA
DDC_SDAA
DDC_SCLA
DDC_RST_A
DDC_RST_B
DDC_SCLB
RX0_A-
RX1_A+
RX1_A-
RX2_A+
RX2_A-
HDMI_CEC
HDMI_CEC
HDMI_MUX_TSCL DDC_SCLA
HPD_RST_MUX
HDMI_MUX_TXC+HDMI_MUX_TXC-
HDMI_MUX_TX0+HDMI_MUX_TX0-
HDMI_MUX_TX1+HDMI_MUX_TX1-
HDMI_MUX_TX2+HDMI_MUX_TX2-
RXC_A+
RXC_A-
RX0_A+
RX1_B-
RX2_B+
RX2_B-
DDC_SCLB
HPD_RST_B
DDC_SDAB
RXC_B+
RXC_B-
RX0_B+
RX0_B-
RX1_B+
EDID_WC
HDMI_CEC
RX1_A+
RX1_A-
RX2_A+
RX2_A-
HDMI_CEC_A
RXC_A+
RXC_A-
RX0_A+
RX0_A-
HDMI_MUX_TX0-
HDMI_MUX_TX1+
HDMI_MUX_TX1-
HDMI_MUX_TX2+
HDMI_MUX_TX2-
HPD_RST_A
HPD_RST_MUX
HDMI_MUX_TXC+
HDMI_MUX_TXC-
HDMI_MUX_TX0+
DDC_SCLA
DDC_SDAA
IIC_SCL
IIC_SDA
HDMI_CEC_A
HDMI_MUX_TSCL
HDMI_MUX_TSDA
HDMI_MUX_RST
DDC_SDAB
HDMI_CEC_A
RXC_B+
RXC_B-
RX1_B+
RX1_B-
RX2_B+
RX2_B-
DDC_SDAA
HDMI_CEC_A
HPD_RST_B
RX0_B+
RX0_B-
RX1_A-
RX2_A+
RX2_A-
RXC_A+
RXC_A-
HPD_RST_A
RX0_A+
RX0_A-
RX1_A+
I_18170_012.eps
170708
3139 123 6425.1
B06D
B06D

Related product manuals