EasyManua.ls Logo

Polyaire airtouch - Page 59

Polyaire airtouch
68 pages
Print Icon
To Next Page IconTo Next Page
To Next Page IconTo Next Page
To Previous Page IconTo Previous Page
To Previous Page IconTo Previous Page
Loading...
59
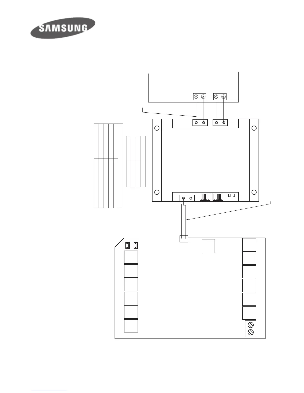
NOTE: If Samsung wall
controller is used with the
gateway, the Samsung wall
controller has to be set to
Master and the gateway has
to be set to Slave by switching
position 4 of S2 to 0 (O).
In this situation AirTouch 4
sensors cannot be used for
AC Temperature Control.
R
S
4
8
5
A
+
B
-
H
o
m
e
K
it
S/A2
E/M T Z1 Z2 Z3 Z4
Z8 Z7 Z6 Z5 B2 B1
L N
RS485
A+ B-
S1
S2
S/A1-2: Supply Air Sensors
E/M: Extension Module
T: Touchscreen
Z1...Z8: Zone Dampers
L and N: 24V AC Power Supply
B1 and B2: Bypass Dampers
HomeKit: HomeKit Module
RS485: AC Gateway
AC Gateway
F3 F4
F3 F4
AirTouch 4
S/A1
V1 V2
V1 V2
657211 (RS485 Cable) from Polyaire
(Provided with the gateway)
Master/Slave Setting
S2
Gateway As
0000
Slave
0001
Master
Four stripped wires
(field prepared)
AC Indoor PCB
Gateway Address Setting
S1
Gateway Address
1000 1
0100
2
1100 3
0010 4
657217
Note:
1. 0-Off, 1-On, x-On
2. This applies to gateways made in China
No-NASA (
657217
)
Wiring Diagram - New Version
Wiring Diagrams contd.

Related product manuals