EasyManua.ls Logo

Praxair PHOENIX 401 BASIC PULS forceArc - PHOENIX BASIC DRIVE 4;4 L Schematics

Praxair PHOENIX 401 BASIC PULS forceArc
60 pages
Print Icon
To Previous Page IconTo Previous Page
To Previous Page IconTo Previous Page
Loading...
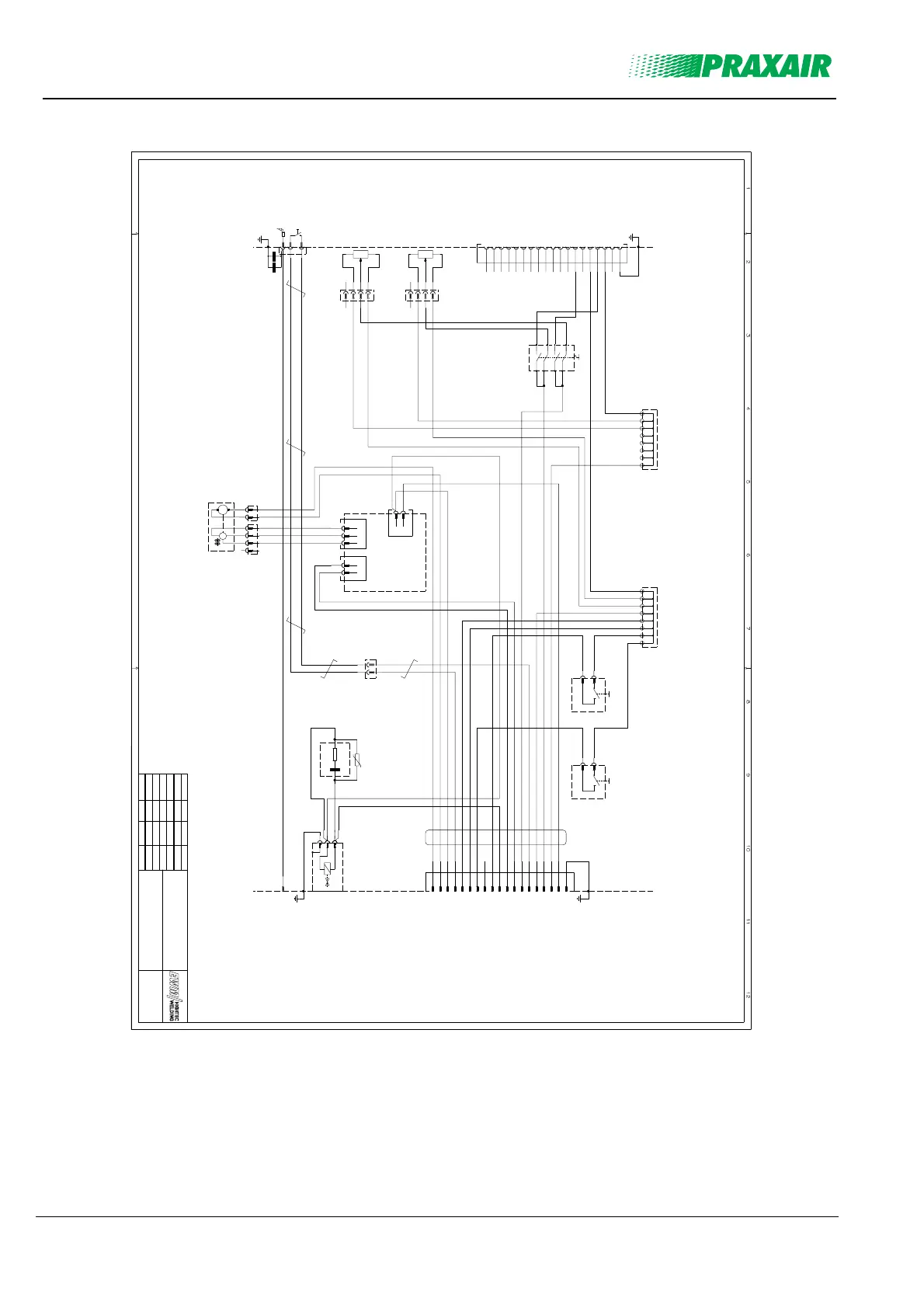
Circuit diagrams
PHOENIX BASIC DRIVE 4 / 4L
60 Item No.: 099-004838-PRA01
10.2 PHOENIX BASIC DRIVE 4 / 4L
2x2n2F
BT
XZ-
Zentralanschluß
1
2
PE_Dyn.
1
PE2-
PE_Dyn.
T?
A
B
42VAC
C
+10V
D
DV
E
0V
F
BRT
G
US
H
Tacho GND
J
Tacho Signal
K
Gasventil
L
Einfädeln
M
NC
N
Gastest
P
Code1
R
Code2
S
BRT
T
0VAC
U
Motor-
V
Motor+
X2-
S2-
?T
4
3
S3-
?T
4
3
X6-
1 2
?T
?T
?T
?T
+
Y1-
Gas
1
2
PE
1 2
X4-
?T
?T
1 2 3 4
X5-
?T
?T
?T
?T
X3/1
X3/2
X3
X1/1
X1/2
X1/3
X1
X2/1
X2/2
X2
I G - 2
A1
1
Tacho +5V
2
Tacho Signal
3
Tacho GND
1
Tacho Signal
2
Tacho GND
1
42VAC
1
PE3-
PE_Dyn.
Gastest
1
?T
47R
S14K60
RC-1
0u1F
2
?T
2
0VAC
X8-
1
2
3
4
0V0V
SS
+10V+10V
?T?T
R2-
10k
A
S
E
X7-
1
2
3
4
0V0V
SS
+10V+10V
?T?T
Ringkern
RC1-A
X10-
1 2 3 4 5 6 7 8
X9-
1 2 3 4 5 6 7 8
1
2
3
4
1
2
3
4
S1-
US
DV
Einfädeln
M
T
br bl swrt sw
Drahtvorschub
M1-
A
B
C
D
E
F
G
H
J
K
L
M
N
P
R
S
T
U
V
T?
NC
+10V
DV
0V
NC
US
NC
NC
NC
NC
NC
NC
NC
NC
NC
NC
NC
NC
X1-
S1-1
S1-2
S1-3
S1-4
UKorr.
DV
1
PE_Dyn.
Frontseite
Rückseite
10V 0V
R1-
10k
E
S
A
Datum: Name:
gezeichnet:
geprüft:
Freigabe:
06.02.2006 NIEDENTHAL
Blatt: /
1
This drawing is protected by copyright.
It may not be reproduced or utilised in any way
or communicated or forwarded to third parties
without our express permission!
1
PHOENIX BASIC DRIVE 4L
3929-00
Zeichnungsnummer:
MIG-DV GERAET
Änderung-
Änderung-
Änderung-
Änderung-
Figure 10-3

Table of Contents

Related product manuals