EasyManua.ls Logo

Promac COMPACT PU - Page 133

Promac COMPACT PU
Print Icon
To Next Page IconTo Next Page
To Next Page IconTo Next Page
To Previous Page IconTo Previous Page
To Previous Page IconTo Previous Page
Loading...
Data:
Disegnatore:
PROGETTO:
DENOMINAZIONE:
CODICE: Controllato:
U. T.
U. T.
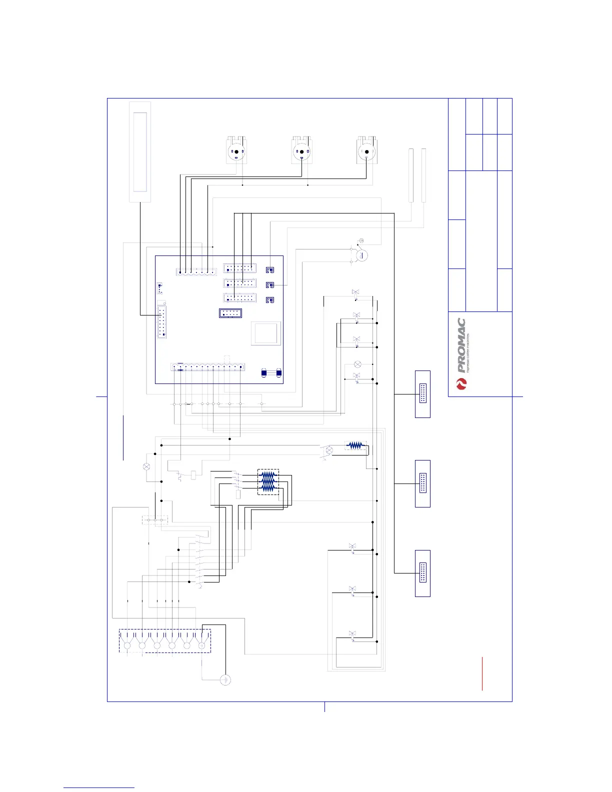
SCHEMA
ELETTRICO
PROMAC09
01/09/09
GREEN PLUS 2 - 3 gruppi.
Se_1342
Disegno eseguito con CAD. Non sono ammesse modifiche o variazioni manuali.
IDENTIFICATIVO:
Diffusione e riproduzione vietata a termini di legge senza nostra autorizzazione.
MP
CV1
CV2
CV3
+
+
OUT2
OUT1
OUT3
+
CN10
CN4CN5CN6
TRA
S
F
O
RMATOR
E
F1
CN9
CN11
CN12
GR1
GR2
GR3
EF
EC
LC
TG3
TG2
TG1
RS
IS
R
SR
LS
SL
CEM
L1
N
L2
L3
M
MT
IG
EG1 EG2 EG3
*
DISPLAY LCD
1
2
3
GV
GV
GV
B
B
B
R M
VI
V
R
M
VI
V
GV
GV
BI
BI
9 N
10 B
B
7 AR
1 VI
2 R
3 M
5 G
6
RO
11
GV
GV
AR B
GV
G
B B
RO
N B
1
2
4
5
NB
M N R
M N R
B3
B1
B2
R
N
M
R
N
M
GV
N
B
B
B B B
VI R M
VI
R
M
L4 L1 L2 N2 N1 N4 L9 N9
U1 V1 W1 W2 U2 V2 P1 P2
CN7
CN3 CN2 CN1
EV
4
GR
MC
13
BiN
MC
ST
STS
BiN
BiN
B
B
GR
GR
B
*
OPTIONAL
*
Promac Italia s.r.l.
Via Cremona, 1 20025 Legnano (MI)
Tel +39 0331 455102
Fax +39 0331 484218
www.promacitalia.com
EH
B
RO
COLLEGAMENTO
INTERNO
133

Table of Contents

Related product manuals