EasyManua.ls Logo

Promac COMPACT PU - Page 136

Promac COMPACT PU
Print Icon
To Next Page IconTo Next Page
To Next Page IconTo Next Page
To Previous Page IconTo Previous Page
To Previous Page IconTo Previous Page
Loading...
Data:
Disegnatore:
PROGETTO:
DENOMINAZIONE:
CODICE: Controllato:
U. T.
U. T.
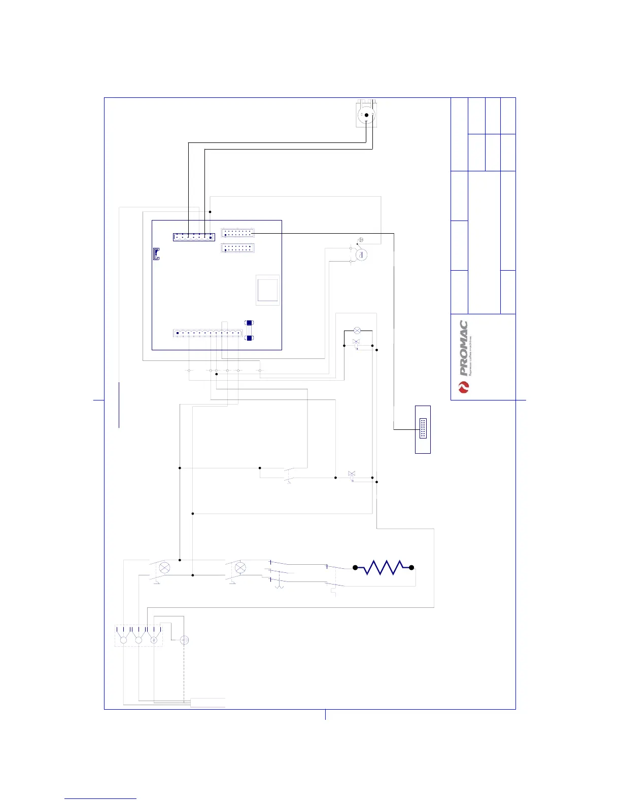
SCHEMA
ELETTRICO
PROMAC09
01/09/09
CLUB ME 1 gruppo.
Se_1345
Disegno eseguito con CAD. Non sono ammesse modifiche o variazioni manuali.
IDENTIFICATIVO:
Diffusione e riproduzione vietata a termini di legge senza nostra autorizzazione.
Promac Italia s.r.l.
Via Cremona, 1 20025 Legnano (MI)
Tel +39 0331 455102
Fax +39 0331 484218
www.promacitalia.com
MP
CV1
OUT1
+
CN5
CN1CN2
TRASFORMATORE
F1
CN4
CN6
GR1
EC
LC
TG1
SL
CEM
IG1
EG1
R M
R
M
GV
GV
RO
RO
9 N
10 B
B
7 AR
1 VI
5 G
11
GV
GV
AR B
GV
G
B
N
N
AR
B
VI
VI
1
2
3
M
MT
L
N
N
B
GV
GV
B N
N
B
1 4
2 5
IG
GV
*
IR
P
TS
1 4
2 5
B M
B M
11 21
2212
MB
RC
G
5
1 4
2
136

Table of Contents

Related product manuals