EasyManua.ls Logo

Regency P33-LP4 - Wiring Diagrams

Regency P33-LP4
64 pages
Print Icon
To Next Page IconTo Next Page
To Next Page IconTo Next Page
To Previous Page IconTo Previous Page
To Previous Page IconTo Previous Page
Loading...
48
Regency
®
P33-4 Zero Clearance Direct Vent Gas Fireplace
INSTALLATION
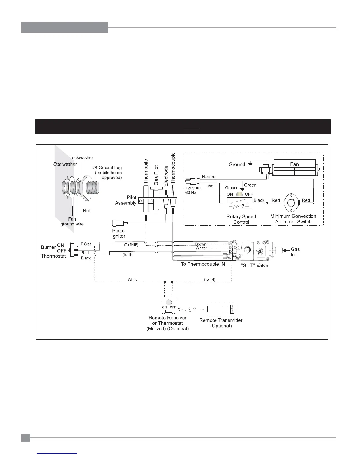
WIRING DIAGRAMS
This heater does not require a 120V A.C. supply for operation. In case of a power failure, the burner switch and the optional remote control/thermostat will
continue to operate. However, a 120V A.C. power supply is needed for the fan/blower operation.
(Do not cut the ground terminal off under any circumstances.)
NOTE: Even if the fan is not purchased with the unit, it is still a good idea to bring power to the receptacle box (provided with the unit) in case the
fan is installed at a later date.
For NATURAL GAS Units and Units NOT Equipped with DC Spark Boxes

Table of Contents

Related product manuals