EasyManua.ls Logo

Reliance electric PSC PC-2 - Appendix F Outline Dimensions

Default Icon
38 pages
Print Icon
To Next Page IconTo Next Page
To Next Page IconTo Next Page
To Previous Page IconTo Previous Page
To Previous Page IconTo Previous Page
Loading...
F-1
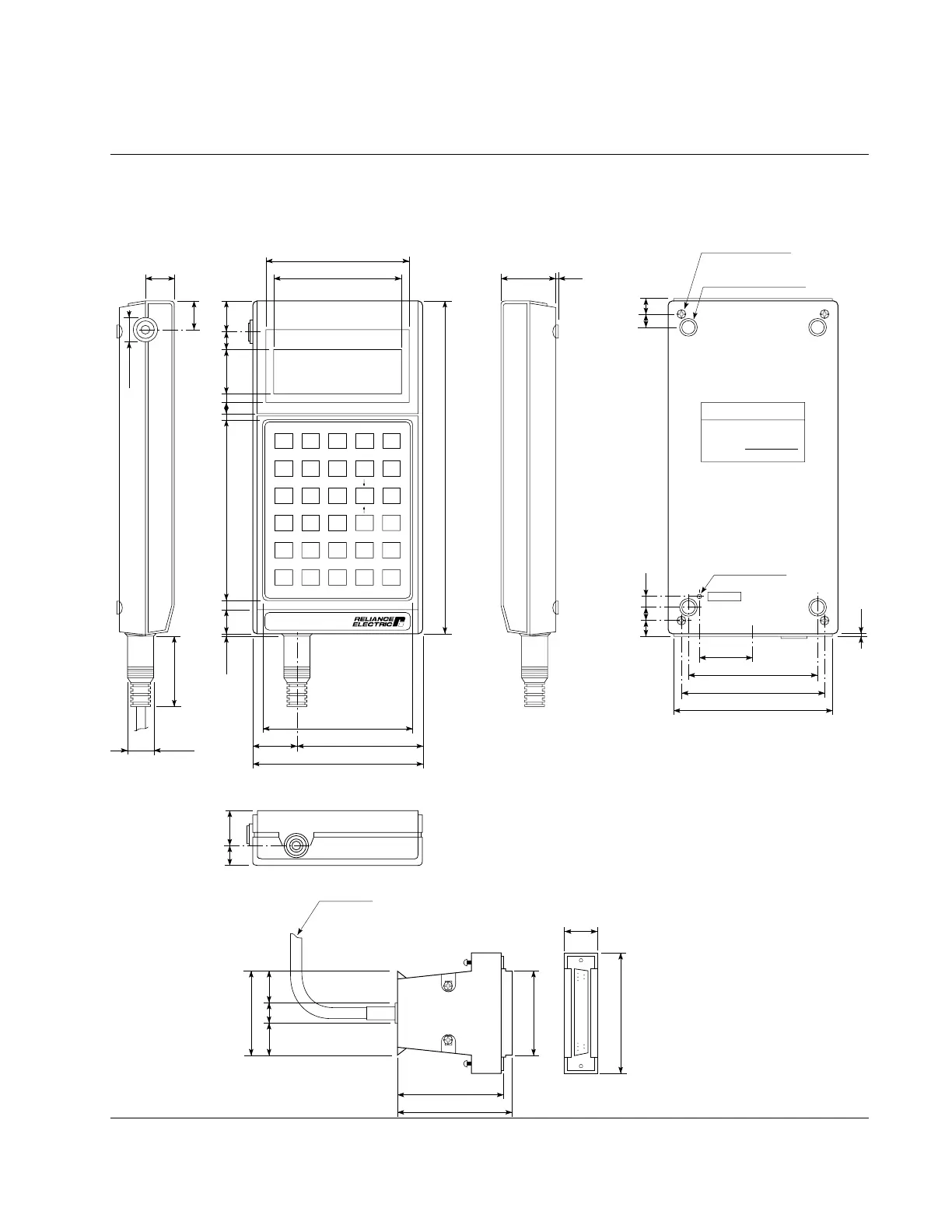
Outline Dimensions
APPENDIX F
Outline Dimensions
RESET
PC-2
Power Supply +5 VDC
Interface Type RS232C
Serial No.
INTERNIX
RUN
MONI
TOR
PROG
RAM
P-ROM
SHIFT
ALLCLR
VRFY MON
DATA
NO
1
2
3
4
5
6
789
+/-
0
.
CLR
ENTER
C
E
PLAY
RCD
DEL
TEST
A
B
C
DE
F
PON
POFF
68.5
61
158
1124 86
2.5
5.5
421
9.5 13.5
71.5
6021
81
13
11 dia.
14
13 dia.
36.5
26 1
7
7
7.6 dis., 4 pos.
6 dia., 4 pos.
M2.6, 4 pos.
7
7
3.5
1
26
62
67
76.8
3 dia. hole
10
16
50.1
55.1
15
10
15
40
41
57.6
16
5.8 dia.
Unit: mm

Table of Contents