EasyManua.ls Logo

Renesas RH850/U2A 144pin

Renesas RH850/U2A 144pin
56 pages
To Next Page IconTo Next Page
To Next Page IconTo Next Page
To Previous Page IconTo Previous Page
To Previous Page IconTo Previous Page
Loading...
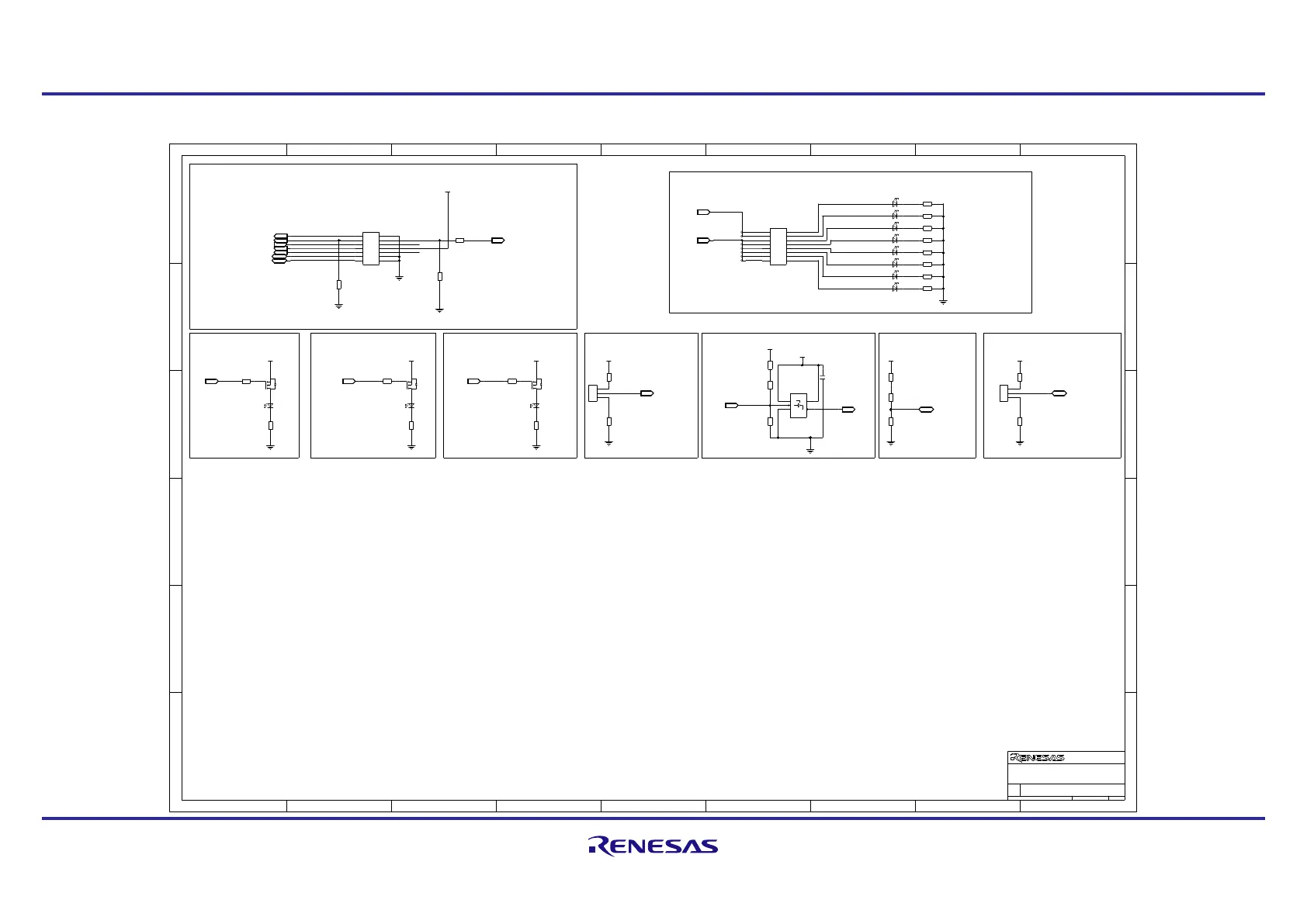
RH850/U2A 144pin 11. Schematics
R20UT5089ED0101 Rev.1.01 Page 4 of 56
July 08, 2022
11.4 Page 4
Signalling LEDs
FLMD1 Jumper
place Silkscreen:
FLMD2 Jumper
place Silkscreen:
place Silkscreen:
MODE0 Jumper
FLMD2FLMD1
FLMD1
MODE0
TMS
FLMD0
place Silkscreen:
Signalling for ERROROUT Signalling for VMONOUT
MODE0
Signalling for PWRCTL
RDY/LPDCLKOUT
TDI/LPDIO/FPDR
TDO/LPDO/FPDT
TDCK/LPDCLK/ FPCK
DEBUG AND PROGRAMMING INTERFACE
FLMD0 Circuit
FLMD2
Thu Jan 6 11:17:25 2022 PAGE 4 OF 5 1. 00
D018888_04
rh850_u2a_144pin_pb_t1_v1
Electronics Europe GmbH
BSS84BSS84BSS84
P3V3P3V3
10K
10K
10K
10K 10K10K
10K
HEADER 14WAY SHROUDED
10K
0
750
1K0
1K0
750
1K0
1K0
750
10K
1k82
1k82
1k82
1k82
1k82
1k82
1k82
yellow
yellow
yellow
yellow
yellow
red
3.3V
red red
SN74LV1T126DCKR
3.3V
yellow
yellow
100n
3.3V
3.3V or 5V
E0VCC
3.3V or 5V
E0VCC
E0VCC
SYSVCC
3.3V or 5V
3.3V or 5V
E0VCC
3.3V or 5V
E0VCC
3.3V or 5V
1k82
P3V3
8
6
7
8
9
10
header 16way
yellow
9
5
R48
LED15
R47
TR11
R19
C83
IC17
R5
R130
JP41
R122
R12
R119
LED14
TR10
TR3
R121 R124
JP38
R120
JP40
R123
JP39
LED9
R33
LED8
R32
LED7
R31
LED6
R30
LED5
R29
LED4
R28
LED3
R27
LED2
R26
CN7
R11
R14
CN4
R8
LED1
R13
R9
2D2 1C72B2
2B35A3
5A45B1
5B35B6
1C7 2D2 5B1 5B7
1C32D3
1C3
2D8
1C3
2D2
1C7 2D3 5B1 5B7
2D2
1C32D3
1C3
1C32D2
1C32D2
1C32D3
1C32D33E55A1
4C6
1C7 2C6 5B6 5B9
4A4
2D3
5B75B9
5C15C3
5C75C9
P4<10..5>
P6<14>
JP0<0>
ERROROUTZ
FLMD0 P6<13>
VMONOUT Z
JP0<2>
TRSTZ
JP0<1>
JP0<3>
JP0<5>
RESETZ
NC
NC
FLMD0_TOOLFLMD0_TOOL_c
LED6
LED7
LED9
LED2
LED4
P5<3>
FLMD0_TOOL
LED8
LED5
PWRCTL
LED3
AP2<15..0>
2
1
3
1
4
5
3
2
21
2
1
3
2
1
3
3
2
1
3
2
1
21
1615
1413
1211
109
87
65
43
21
1413
1211
109
87
65
43
21
IN
IN
BI
IN
D
S
G
OE
VCC
YGND
A
2
1
IN
OUT
OUT
IN
D
S
G
D
S
G
3
2
1
3
2
1
2
1
31 41
11 21
9 01
8 7
6 5
4 3
2 1
IN
BI
OUT
OUT
OUT
OUT
IN
OUT
BI
BI
51 61
31 41
11 21
9 01
8 7
6 5
4 3
2 1
Size Document Number
A2
Title
Date:
987654321
987654321
A
B
C
D
E
F
A
B
C
D
E
F

Table of Contents