EasyManua.ls Logo

RHOSS H50246 - Collegamenti Elettrici; Unità Esterna

RHOSS H50246
20 pages
Print Icon
To Next Page IconTo Next Page
To Next Page IconTo Next Page
To Previous Page IconTo Previous Page
To Previous Page IconTo Previous Page
Loading...
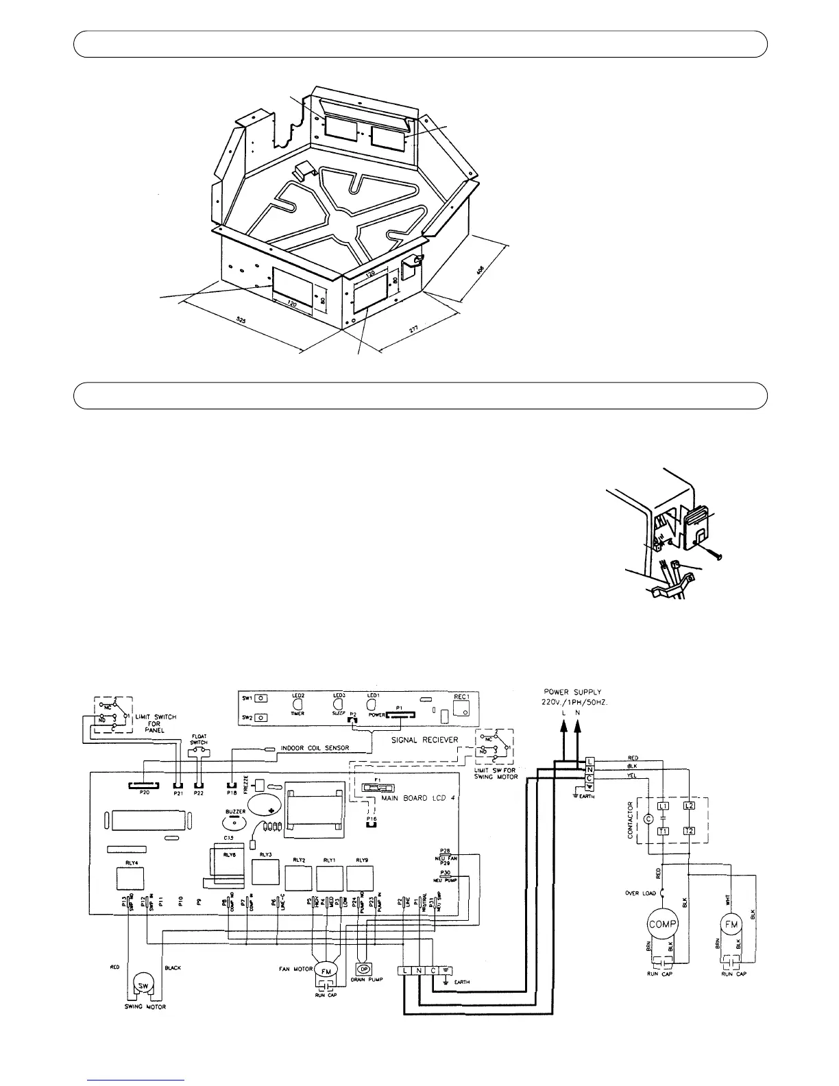
COLLEGAMENTI ELETTRICI
7
UTILIZZO CANALIZZATO
6
1. Togliere il coperchio della morsettiera.
2. Collegare il connettore del cavo dei segnali (presente solo nelle versioni pompa di calore)
3. Collegare i fili del cavo di potenza alla morsettiera utilizzando la stessa numerazione usata
all’unità interna.
4. Fissare i cavi con il ferma-cavi.
5. Rimettere il coperchio.
cavo di potenza
ferma-cavo
coperchio
cavo sonda
unità esterna
SMONTAGGIO UNITÀ ESTERNA
SCHEMA ELETTRICO
18000 - 24000 BTU/h VERSIONE SOLO FREDDO
L’unità interna del modello a cassetta per-
mette, grazie alle apposite aperture mostrate
in figura, l’utilizzo della macchina come un
modello canalizzato.
Questa modalità di installazione può essere
molto utile nel caso si volessero climatizzare
più ambienti con un’unica unità.
ripresa aria esterna
mandata aria da canalizzare
mandata aria da canalizzare
mandata aria
da canalizzare
UNITÀ INTERNA
UNITÀ ESTERNA

Related product manuals