EasyManua.ls Logo

RHOSS H50246 - Fasi Conclusive; Unita Interna; Unita Esterna

RHOSS H50246
20 pages
Print Icon
To Next Page IconTo Next Page
To Next Page IconTo Next Page
To Previous Page IconTo Previous Page
To Previous Page IconTo Previous Page
Loading...
1. Avvolgere un po’ di isolante termico attorno alle giun
zioni dell’unità interna e fissarlo con del nastro isolante.
2. Fissare la parte eccedente del cavo dei segnali alle
tubazioni o all’unità esterna.
3. Fissare le tubazioni alla parete (dopo averle rivestite con
nastro isolante) usando delle fascette oppure inserirle in
canaline di plastica.
4. Sigillare il foro nel muro attraverso il quale passano le
tubazioni in modo che non possano filtrare acqua o aria.
COLLAUDO
Controllare i seguenti punti:
1. UNITA’ INTERNA
1. I tasti ON/OFF e FAN funzionano regolarmente?
2. Il tasto MODE funziona regolarmente?
3. I tasti per l’impostazione del SET POINT e del TIMER funzionano
correttamente?
4. Si accendono tutte le spie?
5. Le alette per l’orientamento dell’aria emessa sono efficienti?
6. La condensa viene scaricata regolarmente?
NOTA:
Il controllo elettronico dà il consenso per l’avviamento del compressore solo tre minuti dopo che è stata data tensione.
isolante termico
nastro isolante
tubazioni
guarnizione
(esterno)
(interno)
manicotto
muro
fascette
tubazioni
8
FASI CONCLUSIVE
2. UNITA’ ESTERNA
1. Vi sono rumori o vibrazioni durante il funzionamento?
2. Il rumore, il flusso dell’aria o lo scarico della condensa
possono recare disturbo ai vicini?
3. Vi sono perdite di refrigerante?
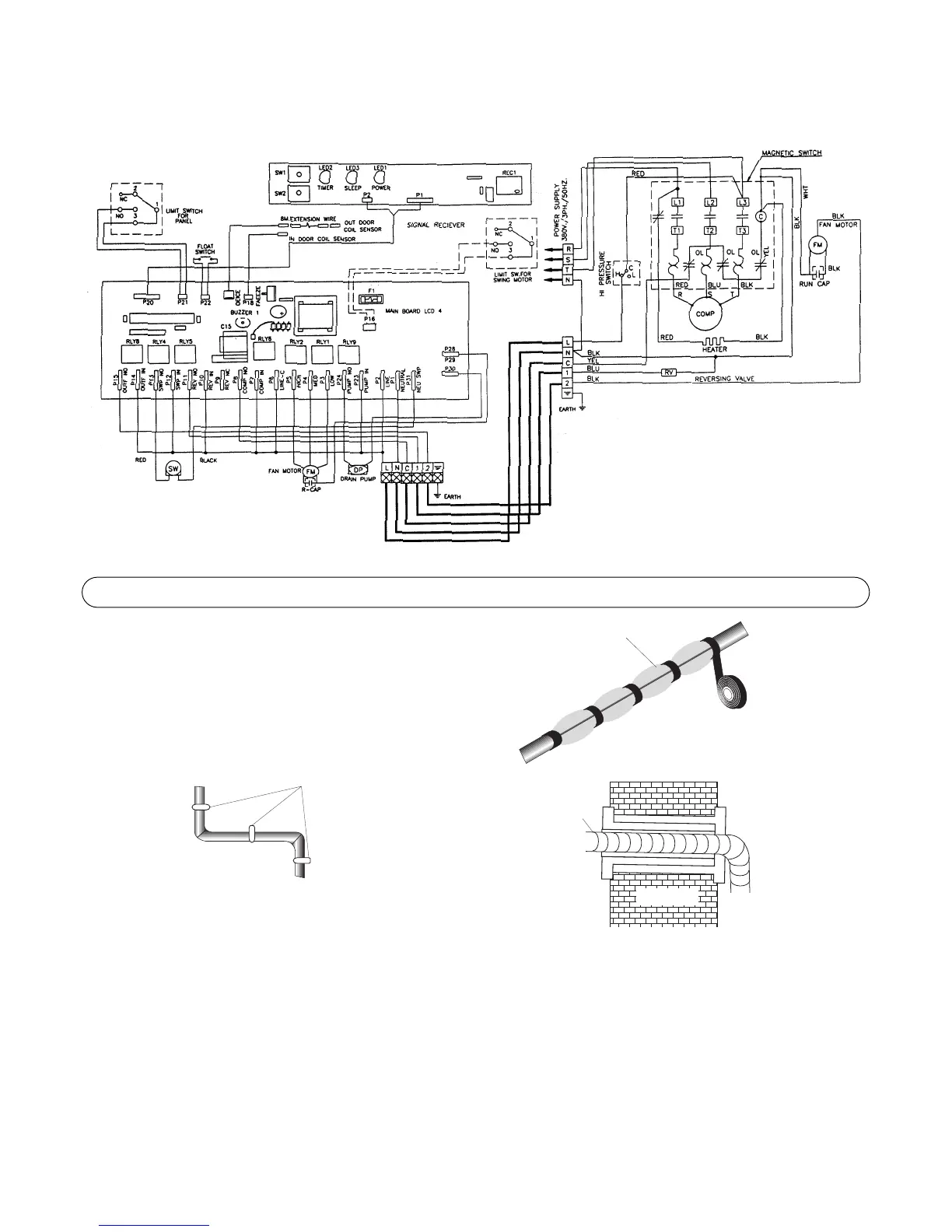
SCHEMA ELETTRICO
36000 - 48000 BTU/h VERSIONE POMPA DI CALORE
UNITÀ INTERNA
UNITÀ ESTERNA

Related product manuals