EasyManua.ls Logo

RHOSS H50246 - Wiring Diagrams; Indoor Unit Wiring (36000-48000 BTU;h Cool Only); Outdoor Unit Wiring (36000-48000 BTU;h Cool Only); Indoor Unit Wiring (Heat Pump Version)

RHOSS H50246
20 pages
Print Icon
To Next Page IconTo Next Page
To Next Page IconTo Next Page
To Previous Page IconTo Previous Page
To Previous Page IconTo Previous Page
Loading...
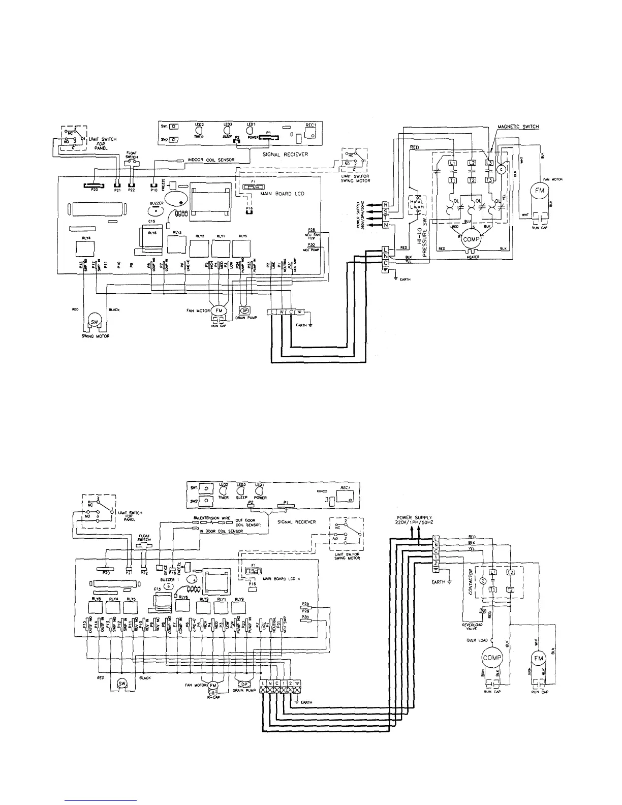
WIRING DIAGRAM :
36000 - 48000 BTU/h COOL ONLY VERSION
WIRING DIAGRAM :
18000 - 24000 BTU/h HEAT PUMP VERSION
INDOOR UNIT
OUTDOOR UNIT
INDOOR UNIT
OUTDOOR UNIT

Related product manuals