EasyManua.ls Logo

Riello 663 M - Burner Description

Riello 663 M
56 pages
Print Icon
To Next Page IconTo Next Page
To Next Page IconTo Next Page
To Previous Page IconTo Previous Page
To Previous Page IconTo Previous Page
Loading...
11
20167399
GB
Technical description of the burner
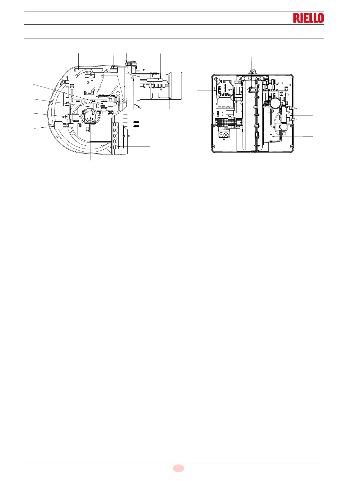
4.10 Burner description
1 Ignition electrodes
2 Combustion head
3 Screw for combustion head adjustment
4Fan motor
5 Screw for fixing fan to flange
6 Servomotor, controls the fuel flow rate variator and the air
damper. When the burner is not operating the air damper is
fully closed in order to reduce heat dispersion from the
boiler due to the flue draught, which draws air from the fan
suction inlet
7 Slide bars for opening the burner and inspecting the
combustion head
8 Valve in delivery pump (safety)
9 Valve in delivery pump
10 Valve in nozzle return line
11 Oil pressure switch
12 Pump
13 Plate prearranged for making 4 holes for the passage of
hoses and electrical cables.
14 Additional air damper
15 Nozzle holder
16 Fan pressure test point
17 Boiler fixing flange
18 Flame stability disc
19 Flame inspection window
20 Electrical control box with lockout pilot light and reset button
21 Air damper
22 Pump pressure adjustment
23 Nozzle return pressure gauge
24 Nozzle return pressure variator
Two types of burner lockout may occur:
Control box lockout:
if the control box 20) push-button lights up, it indicates that the
burner is in lockout. Press the push-button to reset.
Motor lockout (RL 38 - 50/M):
release by pressing the button on thermal relay.
12
11
10
8
7
5
3
2
1
18
15
17
16
6
9
13
14
20169199
Fig. 5
22
23
24
19
20
4
21
20171021

Table of Contents

Related product manuals