EasyManua.ls Logo

Riello RL 28 - Descripción del Quemador; Dimensiones; Embalaje - Peso; Forma de Suministro

Riello RL 28
52 pages
Print Icon
To Next Page IconTo Next Page
To Next Page IconTo Next Page
To Previous Page IconTo Previous Page
To Previous Page IconTo Previous Page
Loading...
3
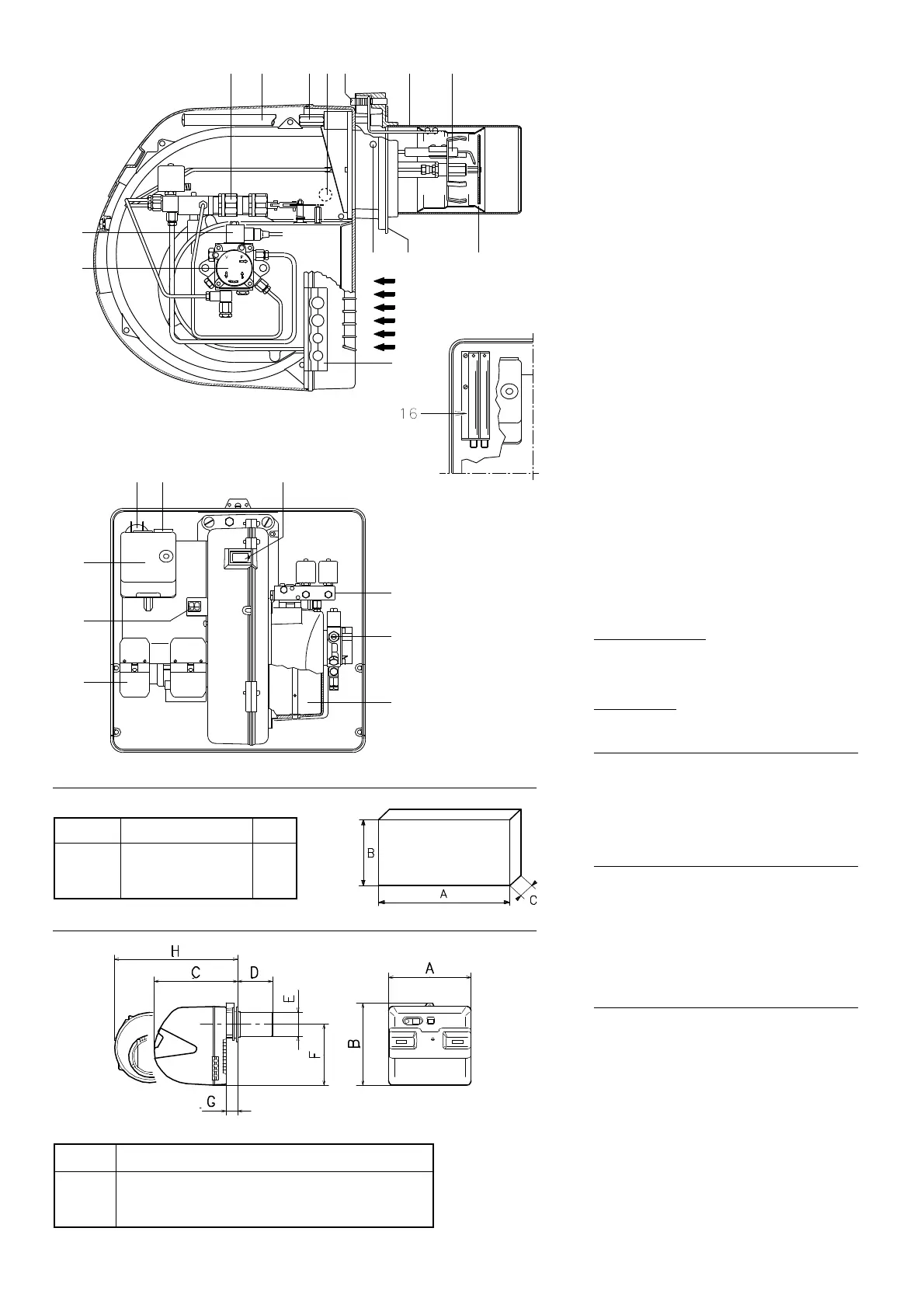
DESCRIPCIÓN DEL QUEMADOR (A)
1 Electrodos de encendido
2 Cabezal de combustión
3 Tornillo regulación cabezal de combustión
4 Seguridad contra fallo de llama mediante
fotorresistencia
5 Tornillo fijación del ventilador a la brida
6 Guías para abertura del quemador e inspec-
ción del cabezal de combustión
7 Cilindro hidráulico para regular el registro de
aire en la posición de 1ª y 2ª llama.
Cuando el quemador está parado, el registro
del aire está completamente cerrado para
reducir al mínimo la dispersión térmica de la
caldera debido al tiro que toma aire de la
boca de aspiración del ventilador.
8 Electroválvula de seguridad (RL 38 - RL 50)
9 Bomba
10 Soporte con 4 orificios para el paso tubos
flexibles y eléctricos.
11 Entrada de aire en el ventilador
12 Toma de presión ventilador
13 Brida para la fijación a la caldera
14 Disco estabilizador de llama
15 Visor llama
16 Prolongadores guías 6)
17 Contactor motor y relé térmico con pulsador
de desbloqueo (RL 38 trifásico - RL 50)
18 Condensador motor
(RL 28 - RL 38 monofásico)
19 Caja de control con piloto luminoso de blo-
queo y pulsador de desbloqueo
20 Dos interruptores eléctricos:
- uno de “marcha-paro” quemador
- uno para “1ª llama - 2ª llama
21 Conectores para la conexión eléctrica
22 Registro de aire
23 Regulación pressión bomba
24 Grupo válvulas 1
a
y 2
a
llama
Hay dos posibilidades de bloqueo del quema-
dor:
Bloqueo caja control: la iluminación del pulsador
(led rojo) de la caja 19)(A) indica que el quema-
dor está bloqueado.
Para desbloquear, oprimir el pulsador durante
un tiempo comprendido entre 1 y 3 segundos).
Bloqueo motor (RL 38 trifásico - RL 50): Para
desbloquear, oprimir el pulsador del relé térmico
17)(A).
EMBALAJE - PESO (B) - Medidas aproxima-
das
Los quemadores se expiden en embalaje de
cartón, cuyas dimensiones se especifican en la
tabla (B).
El peso del quemador completo con emba-
laje se indica en la tabla (B).
DIMENSIONES XIMAS (C) - Medidas apro-
ximadas
Las dimensiones máximas del quemador se
indican en (C).
Tener en cuenta que para inspeccionar el cabe-
zal de combustión, el quemador debe abrirse
desplazando la parte posterior por las guías.
La longitud xima del quemador abierto, sin
envolvente, está indicada por la cota H.
FORMA DE SUMINISTRO
2 - Tubos flexibles
2 - Juntas para tubos flexibles
2 - Rácores para tubos flexibles
1 - Junta aislante
2 - Prolongadores 25)(A) para guías 6)(A)
(solo en modelos con cabezal de 351 mm)
4 - Tornillos M8 x 25 fijación del quemador a la
caldera
3 - Pasacables conexionado eléctrico
(RL 28 y 38 monofásico)
4 - Pasacables conexionado eléctrico
(RL 38 trifásico y RL 50)
1 - Instrucciones
1 - Lista de recambios
(A)
(B)
(C)
18 17 15
24
23
22
19
20
21
1234567
141312
11
10
9
8
mm A B C kg
RL 28 1010 620 495 36
RL 38 1010 620 495 38
RL 50 1010 620 495 39
(1) Tubo llama: Normal - Alargado
mm A B C
D
(1)
E F G
H
(1)
RL 28 476 474 468 216 - 351 140 352 52 672 - 807
RL 38 476 474 468 216 - 351 140 352 52 672 - 807
RL 50 476 474 468 216 - 351 152 352 52 672 - 807
D3260
D3275
D450
D88
D452

Table of Contents

Related product manuals