EasyManua.ls Logo

Riello RL 28 - Installation; Boiler Plate; Blast Tube Length; Securing the Burner to the Boiler

Riello RL 28
52 pages
Print Icon
To Next Page IconTo Next Page
To Next Page IconTo Next Page
To Previous Page IconTo Previous Page
To Previous Page IconTo Previous Page
Loading...
5
INSTALLATION
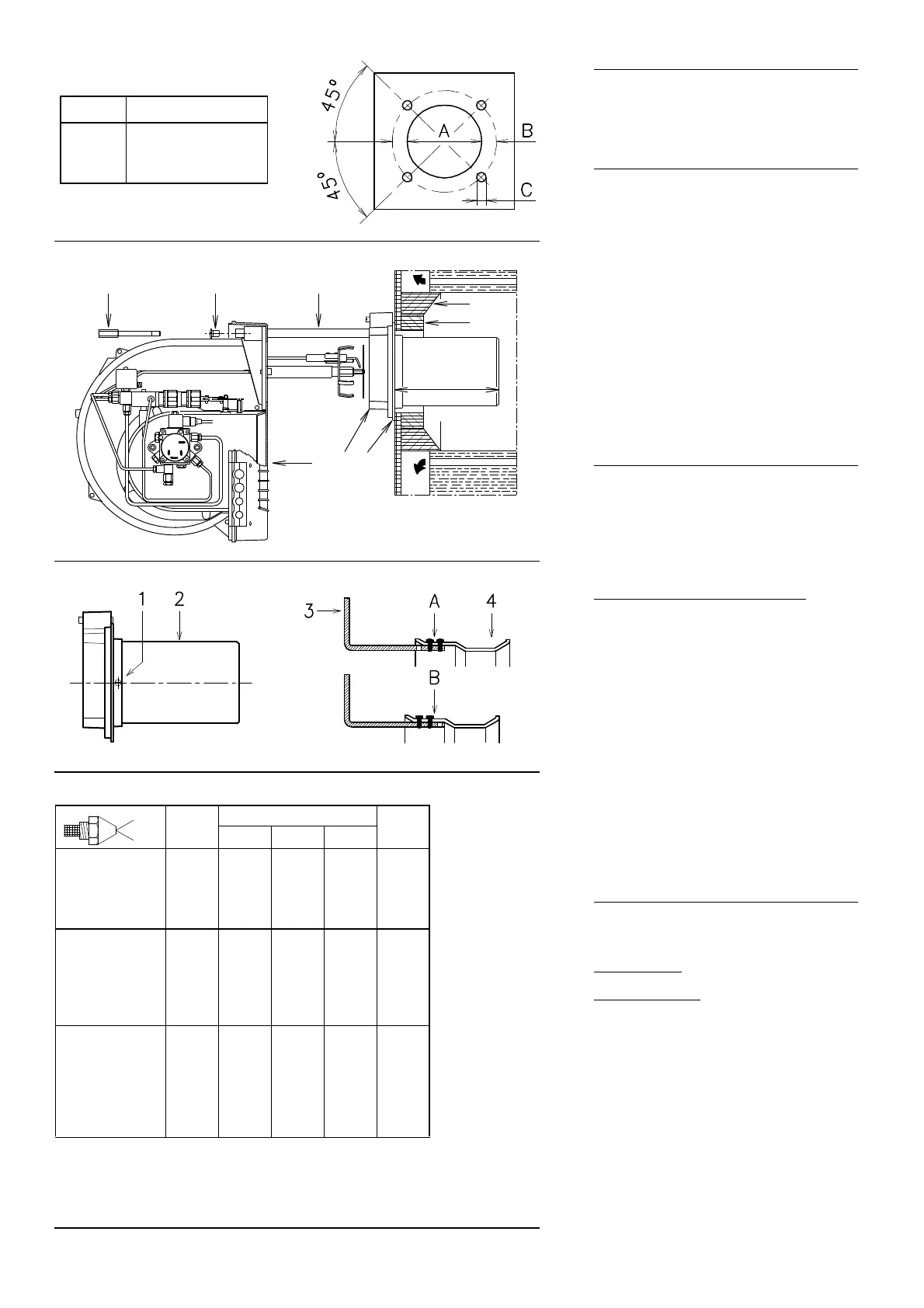
BOILER PLATE (A)
Drill the combustion chamber locking plate as
shown in (A).
The position of the threaded holes can be
marked using the thermal screen supplied with
the burner.
BLAST TUBE LENGTH (B)
The length of the blast tube must be selected ac-
cording to the indications provided by the manu-
facturer of the boiler, and in any case it must be
greater than the thickness of the boiler door com-
plete with its fettling. The range of lengths avail-
able, L, is as follows:
Blast tube 7): RL 28 RL 38 RL 50
• short 216 216 216
• long 351 351 351
For boilers with front flue passes 10) or flame in-
version chambers, protective fettling in refractory
material 8) must be inserted between the boiler's
fettling 9) and the blast tube 7).
This protective fettling must not compromise the
extraction of the blast tube.
For boilers having a water-cooled front the refrac-
tory fettling 8)-9)(B) is not required unless it is ex-
pressly requested by the boiler manufacturer.
SECURING THE BURNER TO THE BOILER (B)
Disassemble the blast tube 7) from the burner 4)
by proceeding as follows:
- Remove the screws 2) from the two slide bars 3).
- Remove the screw 1) fixing the burner 4) to
the flange 5).
- Withdraw the blast tube 7) complete with
flange 5) and slide bars 3).
COMBUSTION HEAD CALIBRATION
At this point check, for model RL 50, whether the
maximum delivery of the burner in 2nd stage op-
eration is contained in area B or in area C of the
firing rate. See page 4.
If it is in area B then no operation is required.
If, on the other hand, it is in area C:
- Unscrew the screws 1)(C) and disassemble
the blast tube 2).
- Move the fixing of the rod 3)(C) from position
A to position B, thereby causing the shutter 4)
to retract.
- Now refit the blast tube 2)(C) and the screws 1).
Once this operation has been carried out (if it
was required), secure flange 5)(B) to the boiler
plate interposing the supplied gasket 6). Use the
4 supplied screws provided after having pro-
tected the thread with antiscruffing products
(high-temperature grease, compounds, graph-
ite).
The burner-boiler seal must be airtight.
CHOICE OF NOZZLES FOR 1st AND 2nd
STAGE
Both nozzles must be chosen from among those
listed in Table (D).
The first nozzle determines the delivery of the
burner in the 1st stage.
The second nozzle works together with the 1st
nozzle to determine the delivery of the burner in
the 2nd stage.
The deliveries of the 1st and 2nd stages must be
contained within the value range indicated on
page 2. Use nozzles with a 60° spray angle at
the recommended pressure of 12 bar
The two nozzles usually have equal deliveries,
but the 1st stage nozzle may have the following
specifications if required:
a delivery less than 50% of the total delivery
whenever the back-pressure peak must be re-
duced at the moment of firing;
a delivery higher than 50% of the total delivery
whenever the combustion during the 1st stage
must be improved.
P
V
4 5 6
10
L
7
8
9
3
10
21
(A)
(B)
(C)
mm A B C
RL 28 160 224 M 8
RL 38 160 224 M 8
RL 50 160 224 M 8
(D)
(1) light oil: density 0,84 kg/dm
3
viscosity 4,2 cSt/20 °C
temperature 10 °C
GPH
kg/h
(1)
kW
12 bar
10 bar 12 bar 14 bar
RL 28 2,00
2,25
2,50
3,00
3,50
7,7
8,6
9,6
11,5
13,5
8,5
9,5
10,6
12,7
14,8
9,2
10,4
11,5
13,8
16,1
100,8
112,7
125,7
150,6
175,5
RL 38 2,50
3,00
3,50
4,00
4,50
5,00
9,6
11,5
13,5
15,4
17,3
19,2
10,6
12,7
14,8
17,0
19,1
21,2
11,5
13,8
16,1
18,4
20,7
23,0
125,7
150,6
175,5
201,6
226,5
251,4
RL 50 3,00
3,50
4,00
4,50
5,00
5,50
6,00
11,5
13,5
15,4
17,3
19,2
21,1
23,1
12,7
14,8
17,0
19,1
21,2
23,3
25,5
13,8
16,1
18,4
20,7
23,0
25,3
27,7
150,6
175,5
201,6
226,5
251,4
276,3
302,4
60
D455
D457
D456
(D)

Table of Contents

Related product manuals