EasyManua.ls Logo

Riello RL 28 - Instalação Hidráulica

Riello RL 28
52 pages
Print Icon
To Next Page IconTo Next Page
To Next Page IconTo Next Page
To Previous Page IconTo Previous Page
To Previous Page IconTo Previous Page
Loading...
7
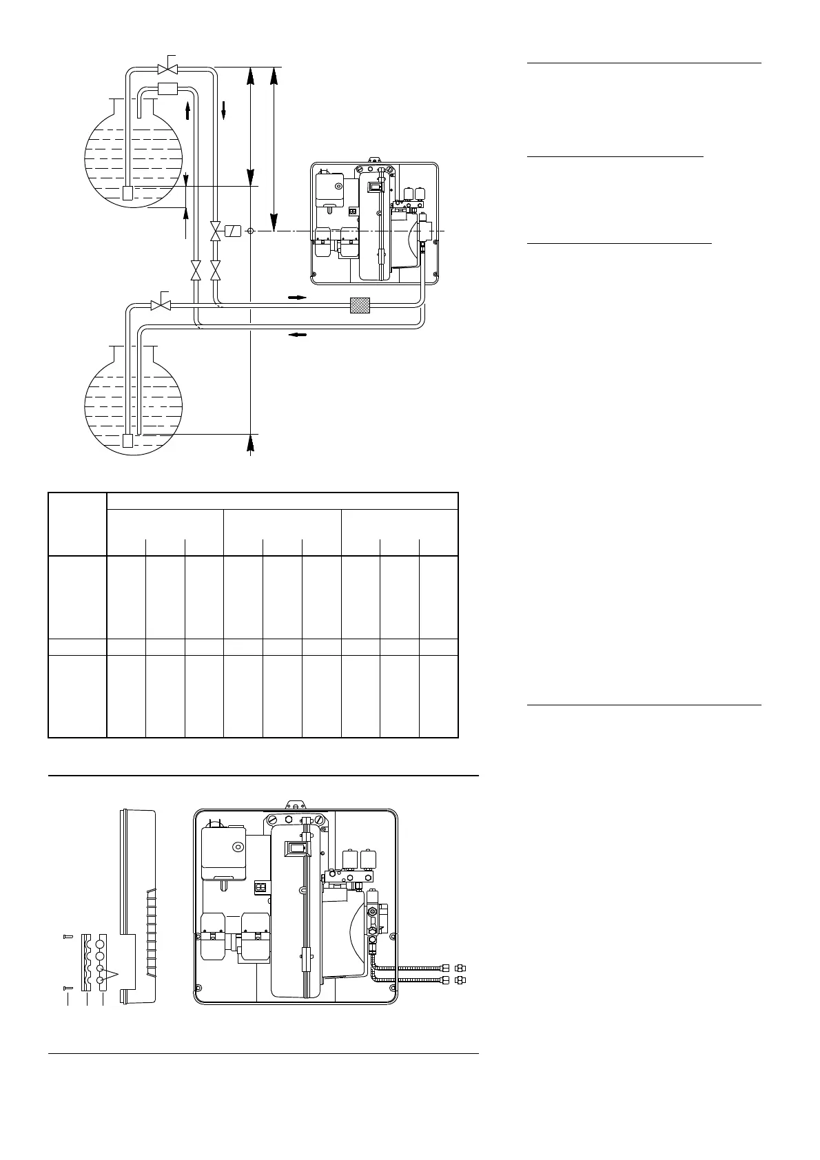
INSTALAÇÃO HIDRÁULICA
ALIMENTAÇÃO DE COMBUSTÍVEL
Alimentação com dois tubos (A)
O queimador esprovido de uma bomba auto-
ferrante que é capaz de se auto-alimentar, den-
tro dos limites que figuram na tabela que es
na margem.
Depósito mais alto que o queimador
A
A cota P não deve ser superior a 10 metros
para não submeter o retentor da bomba a uma
pressão excessiva; e a cota V não deve ser
superior a 4 metros para que a bomba se possa
auto-ferrar, inclusive com o depósito quase
vazio.
Depósito mais baixo que o queimador
B
Não se deve ultrapassar uma depressão na
bomba de 0,45 bar (35 cm Hg). Com uma
depressão superior parte do combustível gasei-
ficar-se-ia, a bomba faria ruído e encurtar-se-ia
a vida da mesma.
É aconselhável que o tubo de retorno e o de
aspiração entrem no queimador à mesma
altura; desta forma semais difícil que se pro-
duza o desferrar do tubo de aspiração.
Alimentação em ane
A alimentação em anel é formada por um tubo
que sai do depósito e retorna a este, com uma
bomba auxiliar que faz circular o combustível à
pressão. Uma derivação do anel alimenta o
queimador. Este sistema é útil quando a bomba
do queimador não é capaz de se auto-alimentar
porque a distância ou o desnível em relação ao
depósito são superiores aos valores indicados
na Tabela.
Legenda
H = Desnível bomba-válvula de fundo
L = Comprimento da tubagem
Ø = Diâmetro interior do tubo
1 = Queimador
2 = Bomba
3 = Filtro
4 = Válvula de corte
5 = Tubo de aspiração
6 = Válvula de pé
7 = Válvula manual de fecho rápido, com
comando à distância (somente em Itália)
8 = Electroválvula de fecho (somente em Itá-
lia)
9 = Tubo de retorno
10 = lvula de retenção (somente em Itália)
LIGAÇÕES HIDRÁULICAS (B)
As bombas têm um by-pass que comunica o
retorno com a aspiração. Estão instaladas no
queimador, com o by-pass fechado através do
parafuso 6)(B)p.12.
Assim, é necessário ligar os dois tubos à bomba.
Se a bomba funcionar com o retorno fechado e
o parafuso do by-pass colocado, avaria-se de
imediato.
Retirar os tampões das ligações de aspiração e
de retorno da bomba.
No seu lugar roscar os tubos flexíveis com as
juntas que são fornecidas.
Ao montar os tubos flexíveis, estes não devem
ser submetidos a torções nem a alongamentos.
Passar os tubos flexíveis pelos dois orifícios da
placa, de preferência pelo lado direito, fig. (B):
retirar os parafusos 1), abrir a placa em duas
partes 2) e 3) e recortar a membrana que cobre
os orifícios 4).
Colocar os tubos de forma a que não possam
ser pisados nem estejam em contacto com as
superfícies quentes da caldeira.
Por último, unir o outro extremo dos tubos flexí-
veis aos nipples, fornecidos de série, usando
duas chaves: uma no conector giratório do tubo
flexível, para roscar, e uma no nipples, para
sustentar o esforço de reacção.
(A)
(B)
1 2 3
4
+ H
- H
(m)
L (m)
RL 28
Ø (mm)
RL 38
Ø (mm)
RL 50
Ø (mm)
8 10 12 8 10 12 10 12 14
+ 4,0 52 134 160 35 90 152 63 144 150
+ 3,0 46 119 160 30 80 152 55 127 150
+ 2,0 39 104 160 26 69 152 48 111 150
+ 1,0 33 89 160 21 59 130 40 94 150
+ 0,5 30 80 160 19 53 119 37 86 150
0 27 73 160 17 48 108 33 78 150
- 0,5 24 66 144 15 43 97 29 70 133
- 1,0 21 58 128 13 37 86 25 62 118
- 2,0 15 43 96 9 27 64 17 45 88
- 3,0 8 28 65 4 16 42 10 29 58
- 4,0 - 12 33 - 6 20 - 12 28
D3279
D3278

Table of Contents

Related product manuals