EasyManua.ls Logo

Riello RL 28 - Instalación Hidráulica

Riello RL 28
52 pages
Print Icon
To Next Page IconTo Next Page
To Next Page IconTo Next Page
To Previous Page IconTo Previous Page
To Previous Page IconTo Previous Page
Loading...
7
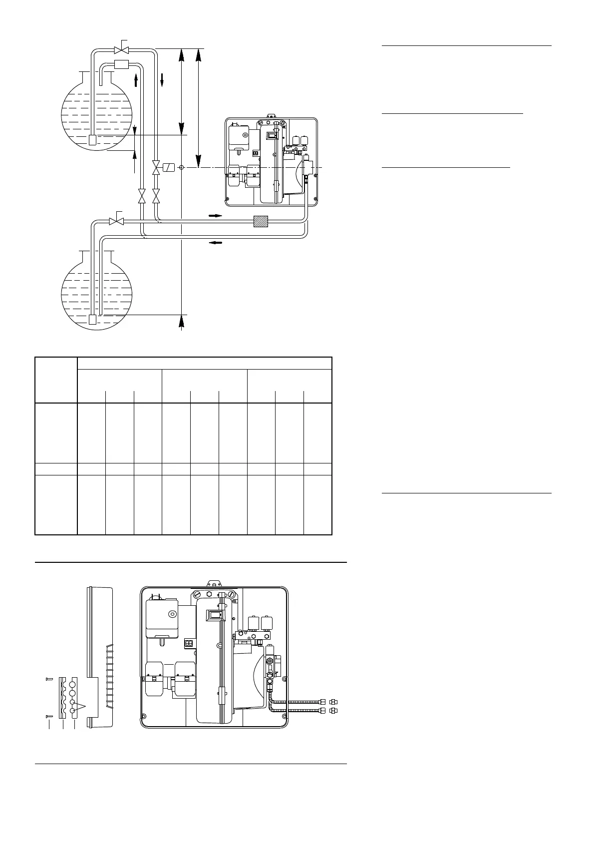
INSTALACIÓN HIDRÁULICA
ALIMENTACIÓN DE COMBUSTIBLE
Alimentación con dos tubos (A)
El quemador va provisto de una bomba autoce-
bable que es capaz de autoalimentarse, dentro
de los límites que figuran en la tabla que hay al
margen.
Depósito más elevado que el quemador A
La cota P no debe ser superior a 10 metros para
no someter al retén de la bomba a una presión
excesiva; y la cota V no debe ser superior a 4
metros para que la bomba pueda autocebarse,
incluso con el depósito casi vacío.
Depósito más bajo que el quemador B
No se debe superar una depresión en la bomba
de 0,45 bar (35 cm Hg). Con una depresión
superior se gasificaría parte del combustible, la
bomba haría ruido y se acortaría la vida de la
misma.
Es aconsejable que el tubo de retorno y el de
aspiración entren en el quemador a la misma
altura; de este modo es s difícil que se pro-
duzca un descebado del tubo de aspiración.
Alimentación en anillo
La alimentación en anillo está formada por un
tubo que sale del depósito y retorna a él, con
una bomba auxiliar que hace circular el com-
bustible a presión. Una derivación del anillo ali-
menta al quemador. Este sistema es útil cuando
la bomba del quemador no es capaz de autoali-
mentarse porque la distancia o el desnivel res-
pecto al depósito son superiores a los valores
indicados en la Tabla.
Leyenda
H = Desnivel bomba-válvula de fondo
L = Longitud tubería
Ø = Diámetro interior del tubo
1 = Quemador
2 = Bomba
3 = Filtro
4 = Llave de paso
5 = Conducto aspiración
6 = Válvula de pie
7 = Válvula manual de cierre rápido, con
mando a distancia (sólo en Italia)
8 = Electroválvula de cierre (sólo en Italia)
9 = Conducto de retorno
10 = Válvula de retención (sólo en Italia)
CONEXIONES HIDRÁULICAS (B)
Las bombas llevan un by-pass que comunica el
retorno con la aspiración. Van instaladas en el
quemador, con el by-pass cerrado por el tornillo
6)(B)p.12.
Así pues, es necesario conectar los dos con-
ductos a la bomba.
Si hacemos funcionar la bomba con el retorno
cerrado y el tornillo del by-pass colocado, se
avería inmediatamente.
Retirar los tapones de las conexiones de aspira-
ción y de retorno de la bomba.
En su lugar roscar los tubos flexibles con las jun-
tas que se suministran.
Al montar los tubos flexibles, éstos no deben so-
meterse a torsiones ni estiramientos.
Pasar los flexibles por los dos orificios de la pla-
queta preferiblemente por el lado derecho, fig.
(B): extraer los tornillos 1), abrir la plaqueta en
dos partes 2) y 3), recortar la membrana que
cubre los dos orificios 4).
Colocar los tubos de forma que no puedan ser
pisados ni estén en contacto con superficies ca-
lientes de la caldera.
Por último, conectar el otro extremo de los
tubos flexibles a las entrerroscas, entregadas,
usando dos llaves: una en el racor giratorio del
tubo flexible, para enroscar, y una sobre la
entrerrosca, para tenerlo firme.
(A)
(B)
1 2 3
4
+ H
- H
(m)
L (m)
RL 28
Ø (mm)
RL 38
Ø (mm)
RL 50
Ø (mm)
8 10 12 8 10 12 10 12 14
+ 4,0 52 134 160 35 90 152 63 144 150
+ 3,0 46 119 160 30 80 152 55 127 150
+ 2,0 39 104 160 26 69 152 48 111 150
+ 1,0 33 89 160 21 59 130 40 94 150
+ 0,5 30 80 160 19 53 119 37 86 150
0 27 73 160 17 48 108 33 78 150
- 0,5 24 66 144 15 43 97 29 70 133
- 1,0 21 58 128 13 37 86 25 62 118
- 2,0 15 43 96 9 27 64 17 45 88
- 3,0 8 28 65 4 16 42 10 29 58
- 4,0 - 12 33 - 6 20 - 12 28
D3279
D3278

Table of Contents

Related product manuals