EasyManua.ls Logo

RIKA Topo - Stove Dimensions

RIKA Topo
36 pages
Print Icon
To Next Page IconTo Next Page
To Next Page IconTo Next Page
To Previous Page IconTo Previous Page
To Previous Page IconTo Previous Page
Loading...
© EUROHEAT DISTRIBUTORS (H.B.S) LTD. June 2011
Instructions Part Number IN1227 Ed 1
31
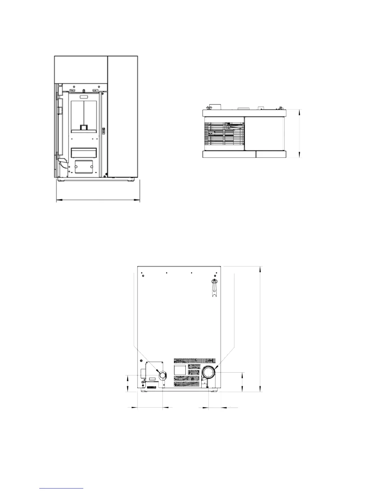
Dimensions
720
218
107
142
167
1082
Fresh air inlet
Flue outlet
417

Related product manuals