EasyManua.ls Logo

Rockwell Automation 2198-C1007-ERS

Rockwell Automation 2198-C1007-ERS
246 pages
To Next Page IconTo Next Page
To Next Page IconTo Next Page
To Previous Page IconTo Previous Page
To Previous Page IconTo Previous Page
Loading...
16 Rockwell Automation Publication 2198-UM005C-EN-P - February 2022
Chapter 1 Start
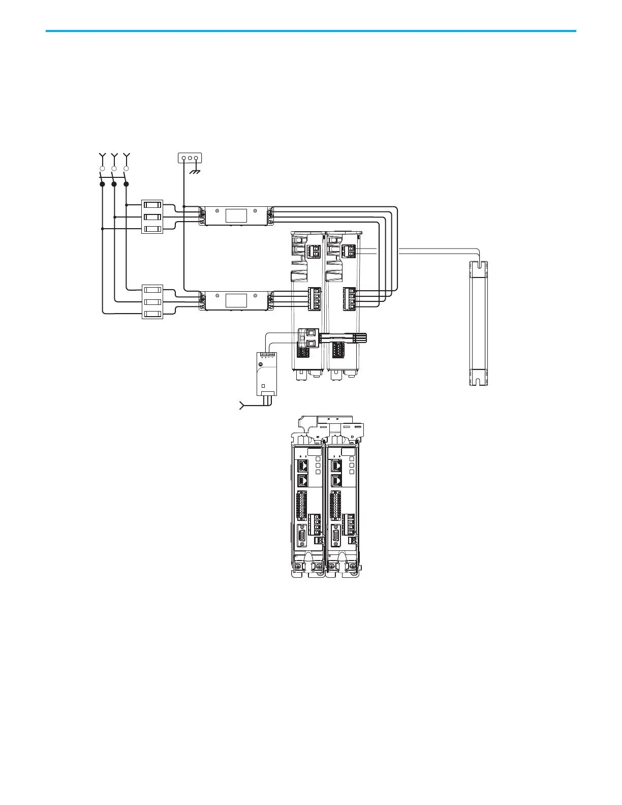
In this example, two drives are shown with input power to the standard input
connectors and control power input by using 24V shared-bus connectors.
With two or more drives in the drive configuration, each drive requires AC
input power and line filter.
Figure 2 - Typical Kinetix 5300 Installation with 24V Shared-bus Connectors
1606-XL
Power Supply
Input
Allen-Bradley
L3L2
L1
DC+ SH
SB+
SB-
S1
SC
S2
MBRK
W
V
U
1
10
1
2
MFB
L3L2
L1
DC+ SH
SB+
SB-
S1
SC
S2
MBRK
W
V
U
1
10
1
2
MFB
Single-phase or
Three-phase
Input Power
Line
Disconnect
Device
Circuit
Protection
2097-Rx or 2198-Rxxxx
Shunt Resistor
(optional component)
2198-Cxxxx-ERS Drives
(top view)
AC Input Power
Bonded Cabinet
Ground Bus
2198-DB08-F or
2198-DBRxx-F
AC Line Filter
(required for CE)
Shared 24V (control power input)
2198-H0x0-x-x shared-bus connection
system for 24V bus-sharing configurations.
AC Input Wiring
Connectors
1606-XLxxx
24V DC Control, Digital Inputs,
and Motor Brake Power
(customer-supplied)
2198-Cxxxx-ERS Drives
(front view)
2198-DB08-F or
2198-DBRxx-F
AC Line Filter
(required for CE)
Circuit
Protection

Table of Contents

Other manuals for Rockwell Automation 2198-C1007-ERS

Related product manuals