EasyManua.ls Logo

Rockwell Automation 2198-C1007-ERS

Rockwell Automation 2198-C1007-ERS
246 pages
To Next Page IconTo Next Page
To Next Page IconTo Next Page
To Previous Page IconTo Previous Page
To Previous Page IconTo Previous Page
Loading...
184 Rockwell Automation Publication 2198-UM005C-EN-P - February 2022
Appendix A Interconnect Diagrams
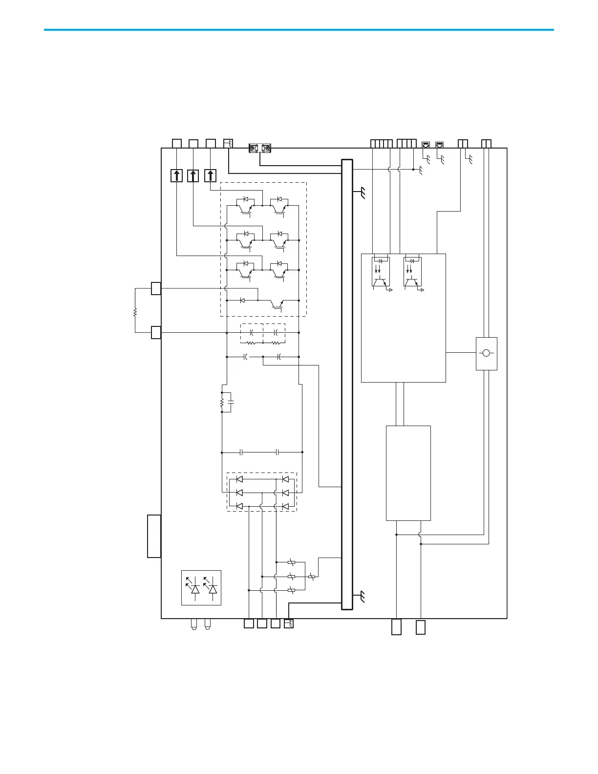
System Block Diagrams This section provides block diagrams of the Kinetix 5300 servo drives.
Figure 93 - Kinetix 5300 Drive Block Diagram
L1
L2
L3
DC+
SH
U
V
W
24V+
24V-
Three-phase Input
Power Connector
Internal or External
Shunt Resistor
Shunt
Connector
24V Control
Power Connector
Switched Mode Power Supply
Control Power
Encoder Power
Control Board
Chassis
Three-phase
Motor Power
Connector
Motor Cable
Clamp
Safe Torque Off
Connector
Digital Inputs/Aux
Feedback Connector
Ethernet PORT1
Ethernet PORT2
Motor Brake
Connector
Motor Feedback
15-pin Connector
Status Display
Module Status
Network Status
Status Indicators

Table of Contents

Other manuals for Rockwell Automation 2198-C1007-ERS

Related product manuals