EasyManua.ls Logo

Rockwell Automation Allen-Bradley 1502 - Installation; Mounting

Rockwell Automation Allen-Bradley 1502
58 pages
Print Icon
To Next Page IconTo Next Page
To Next Page IconTo Next Page
To Previous Page IconTo Previous Page
To Previous Page IconTo Previous Page
Loading...
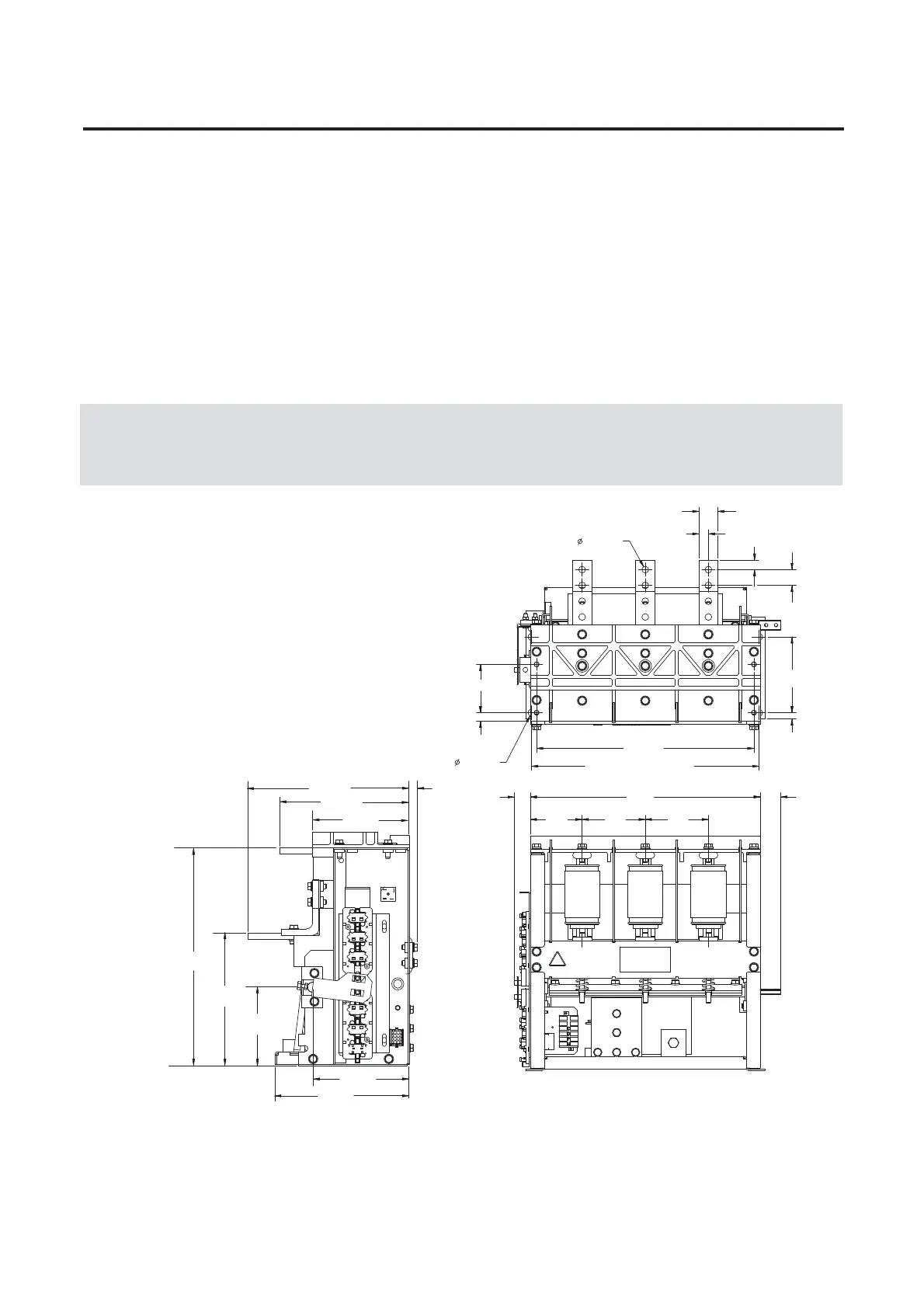
Installation
Mounting e Allen-Bradley vacuum contactor is normally xed mounted (bolted down) in
the enclosure of the controller. ere are four (4) mounting holes at the base of
the contactor (Figure 3.1) to secure it to the enclosure. For reversing, autotrans-
former and 2-speed controllers, one contactor may be mounted on top of the
other. ere are four (4) threaded mounting holes at the top of the contactor to
accommodate this conguration.
IMPORTANT: e contactor is a bolted assembly and is therefore subject to twisting if fastened to an uneven surface.
e contactor mounting plate has small stand-os that permit the contactor to be fastened without twisting the frame.
e contactor may not function correctly if it is forced onto an uneven mounting surface.
97,2 [3.83]
13,49 [0.531]
19,1 [0.75]
38,1 [1.50] (Typical Terminal Detail)
19,1 [0.75]
31,8 [1.25]
152,4 [6.00]
(Mounting Hole Centers)
12,7 [0.50]
41,3 [1.63]
127
[5.00]
462,5
[18.21]
437,1 [17.21]
457.2 [18.00] (Mounting Hole Centers)
127
[5.00]
104,2
[4.10]
32,4
[1.27]
14.27 [0.562]
(4) Mounting Holes
17,5 [0.69]
194,1 [7.64]
260,7 [10.27]
324,2 [12.77]
270 [10.63]
194,1 [7.64]
158,2
[6.23]
267,31
[10.52]
438,7
[17.27]
16,7
[0.66]
Dimensions = mm [inches]
Figure 3.1 – Contactor Mounting Details
Chapter 3
1502-UM051E-EN-P – June 2013

Related product manuals