EasyManua.ls Logo

Rockwell Automation Allen-Bradley 1502 - Page 20

Rockwell Automation Allen-Bradley 1502
58 pages
Print Icon
To Next Page IconTo Next Page
To Next Page IconTo Next Page
To Previous Page IconTo Previous Page
To Previous Page IconTo Previous Page
Loading...
Installation 3-3
1502-UM051E-EN-P – June 2013
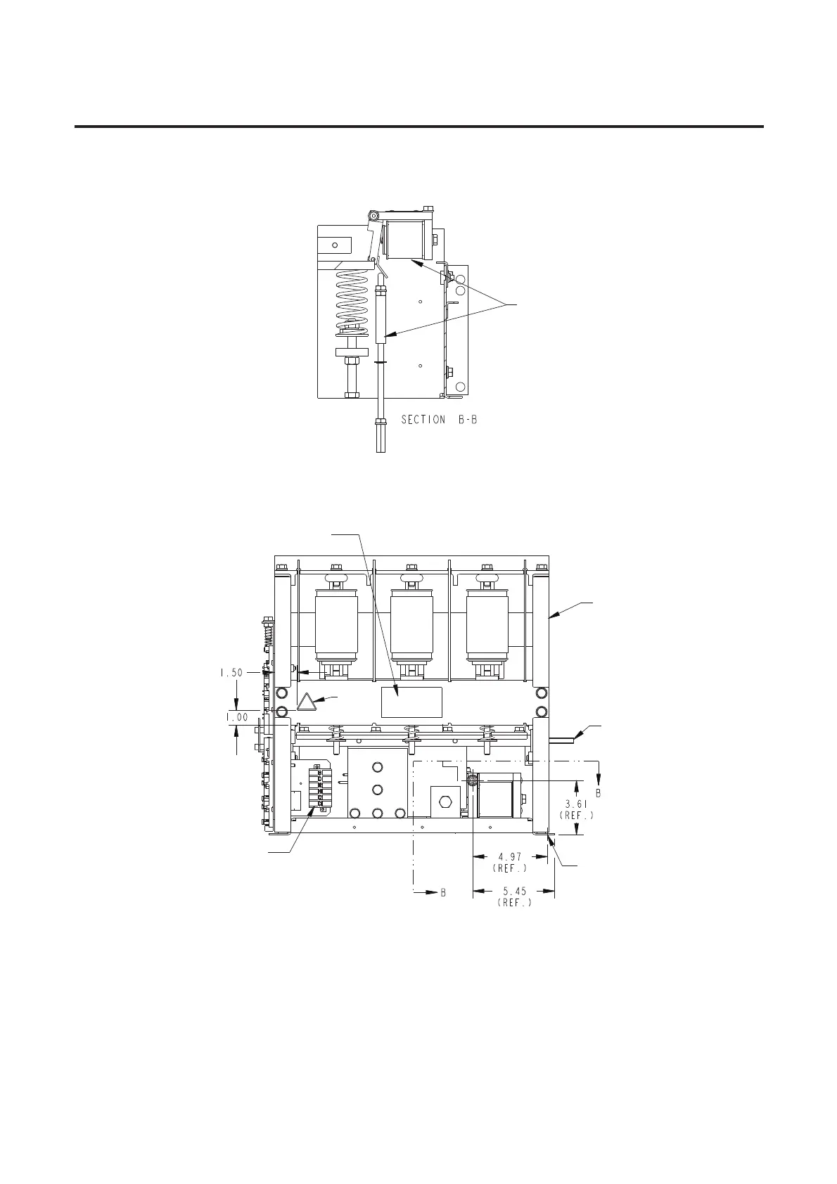
Mechanical Latch Assembly
Rating Label
Lifting
Hazard
Label
Housing Assembly
Shaft Assembly
Contactor
Mounting Hole
Terminal Block Assembly
Figure 3.3 – Electrical Connections

Related product manuals