EasyManua.ls Logo

Rockwell Automation PowerFlex 755TR - Page 330

Rockwell Automation PowerFlex 755TR
352 pages
Print Icon
To Next Page IconTo Next Page
To Next Page IconTo Next Page
To Previous Page IconTo Previous Page
To Previous Page IconTo Previous Page
Loading...
330 Rockwell Automation Publication 750-TG100B-EN-P - June 2019
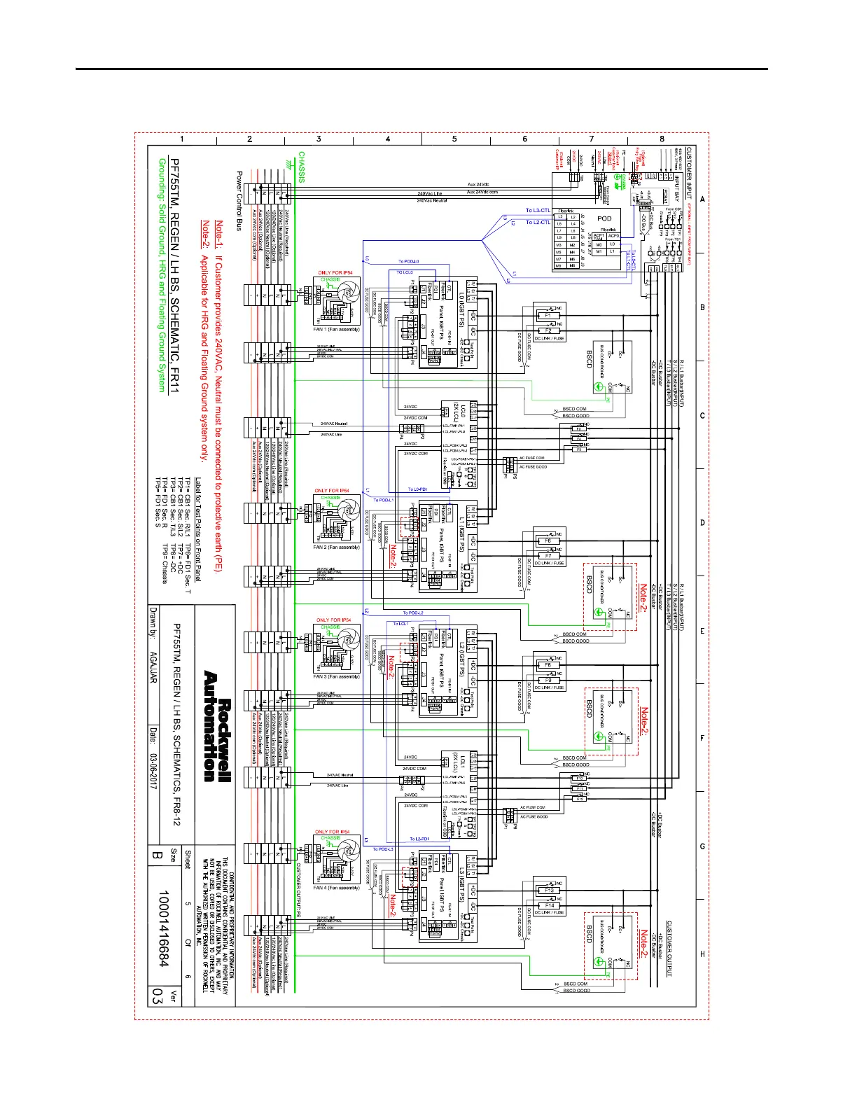
Appendix A System Schematics
Figure 53 - PowerFlex 755TM Frame 11 Regenerative Bus Supply

Table of Contents

Related product manuals