EasyManua.ls Logo

Rockwell Automation PowerFlex 755TR - Page 333

Rockwell Automation PowerFlex 755TR
352 pages
Print Icon
To Next Page IconTo Next Page
To Next Page IconTo Next Page
To Previous Page IconTo Previous Page
To Previous Page IconTo Previous Page
Loading...
Rockwell Automation Publication 750-TG100B-EN-P - June 2019 333
System Schematics Appendix A
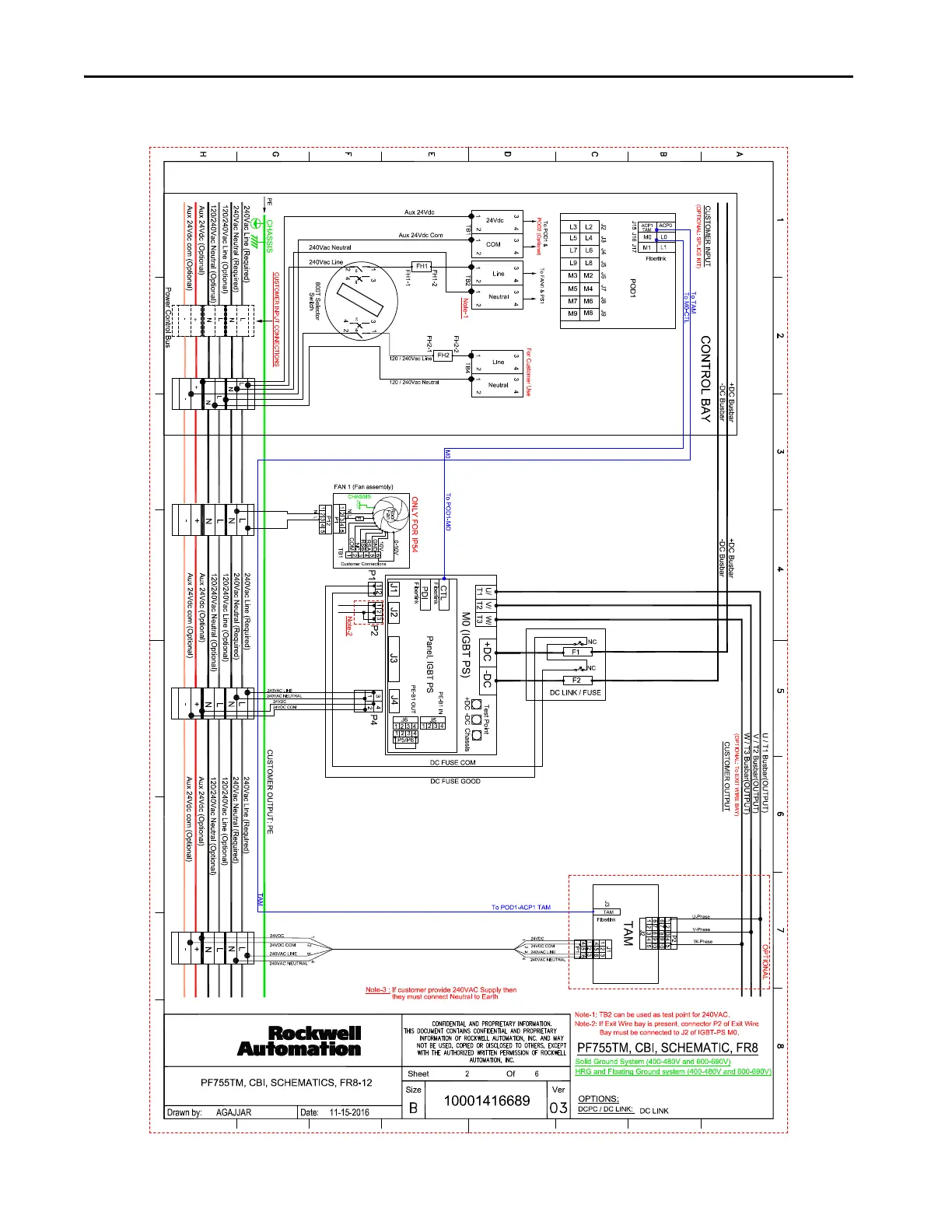
Figure 56 - PowerFlex 755TM Frame 8 Common Bus Inverter with DC Link Fuses

Table of Contents

Related product manuals