EasyManua.ls Logo

Saftronics CIMR-VG5 - Page 23

Default Icon
113 pages
Print Icon
To Next Page IconTo Next Page
To Next Page IconTo Next Page
To Previous Page IconTo Previous Page
To Previous Page IconTo Previous Page
Loading...
VG5 Installation & Quick-Start Manual 23
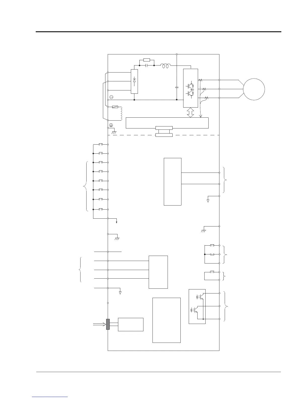
VG5 Standard Connection Diagram
Figure 11 VG5 Terminal Diagram - Model CIMR-VG5U5110
Digital
RS-232
Serial Port
Analog Inputs
(250)
Operator
(10-pin)
IM
1 - Forward Run when CLOSED
2 - Reverse Run when CLOSED
3
11 (Com)
4
5
6
15
13
14
17
PWM
Multi-Function
Inputs
12
(+15V, 20mA)
(20k)
(0V)
-10 to +10V
4 to 20mA
-10 to +10V 23
(Com) 22
12
18
19
20
9
10
Multi-Function
Analog Outputs
A/D
±11 bit
Gate Drive
T1
T2
T3
L1
L2
L3
7
8
16
(20k)
-10 to +10V
-10 to +10V 21
33
(-15V, 20mA)
26
27
Multi-Function
PHC Outputs
48V, 50mA or less
25
3
+
l
1
Fault Contact Outputs
250VAC, 1A or less
30VDC, 1A or less
Multi-Function
Contact Output
l
2
Chapter 1 - Receiving & Installation
Wiring

Related product manuals