EasyManua.ls Logo

SAM Electronics AIS 3410 - AIS 3410 in NACOS xx-3 Systems (Radar 9 xxx and CHARTPILOT)

Default Icon
84 pages
Print Icon
To Next Page IconTo Next Page
To Next Page IconTo Next Page
To Previous Page IconTo Previous Page
To Previous Page IconTo Previous Page
Loading...
AIS 3410, Electronics Unit
ED3047G842 / 01 (2009-08)
Technical Manual
2 Overview
2.5 AIS 3410 in NACOS xx-3 Systems (Radar 9xxx and CHARTPILOT)
t_ue_e02.fm / 27.08.09
15
2.5 AIS 3410 in NACOS xx-3 Systems (Radar 9xxx and CHARTPILOT)
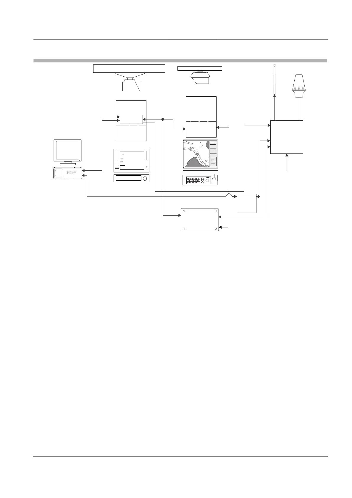
Fig. 2-4 AIS 3410 in NACOS xx-3 systems
The AIS 3410 is connected to the CHARTPILOT via Ethernet LAN.
The ship’s sensors are connected to the Ship’s Interface. The sensor data are transferred to the AIS, to
the CHARTPILOT and to other radars or MULTIPILOTs.
If two Ship’s Interfaces are existing because of redundancy purposes, the ship’s sensor output(s) of both
Ship’s Interfaces must be connected to the Electronics Unit.
Without the Radar 9xxx AIS Interface it is not possible to display the AIS data at the Radar 9xxx or at the
MULTIPILOT 91x0 in radar mode. One interface is sufficient for the complete system, regardless of the
number of Radars 9xxx/MULTIPILOTs.
NOTE:
If the AIS Electronics Unit receives the ship’s sensor data from Ship’s Interface, the output interfaces of
the Ship’s Interface must be configured as follows:
- Select "IEC 61162-1 edition 3, 04/2007 (NMEA0183 version 3.01)" as driver
- Set a repetition interval of 1 s for the following telegrams:
-GLL
-VTG
-HDT
-ROT
- VBW (if bottom-track log is available)
z_ue_009.pdf
VHF
Antenna
VHF
Antenna
CHARTPILOT 93xxCHARTPILOT 93xx
MULTIPILOT 910xMULTIPILOT 910x
Radar 9xxxRadar 9xxx
AIS
Electronics Unit
AIS
Electronics Unit
GPS
Antenna
GPS
Antenna
SAMSAM
SAMSAM
Ship's
sensor data
Ship's
sensor data
Ship's
sensor data
Ship's
sensor data
Ship's
sensor data
Ship's
sensor data
CAN 1
Ethernet LANEthernet LAN
RS422RS422
RS422RS422
Electronics
Unit
Electronics
Unit
Electronics
Unit
Electronics
Unit
TransceiverTransceiver
TransceiverTransceiver
Ship's
Interface
Gyro: HDT, ROT
Speedlog (bottom-track): VBW
Position Sensor: GLL, VTG
All data are transferred with a
repetition rate of 1 Hz (IEC 61162-1)
Gyro: HDT, ROT
Speedlog (bottom-track): VBW
Position Sensor: GLL, VTG
All data are transferred with a
repetition rate of 1 Hz (IEC 61162-1)
Sensor Input
Channels
Sensor Input
Channels
1
2
3
except for CHARTPILOT 9300
with Electronics Unit GE3022
except for CHARTPILOT 9300
with Electronics Unit GE3022
24 VDC
Radar 9xxx
AIS
Interface
Radar 9xxx
AIS
Interface
Ship's mainsShip's mains
Media
Converter
RJ-45
BNC
*
*
**
**

Table of Contents