EasyManua.ls Logo

Samson 4763 - Page 35

Samson 4763
56 pages
Print Icon
To Next Page IconTo Next Page
To Next Page IconTo Next Page
To Previous Page IconTo Previous Page
To Previous Page IconTo Previous Page
Loading...
EB 8359-2 EN 35
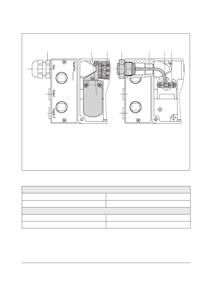
Converting the electropneumatic into a pneumatic positioner
1 Screw tting
2 Printed circuit board
3 i/p converter
4 Connecting nipple
5 Hose
6 Connecting plate
7 Sealing element
1324 576
38
Fig.14: Converting the positioner
Table 2: Conversion kits
Required conversion kit up to device index .02.
For connection with G thread Order no. 1400-6724
For connection with NPT thread Order no. 1400-6725
Required conversion kit for device index .03 and higher.
For connection with G thread Order no. 1400-6795
For connection with NPT thread Order no. 1400-6796

Other manuals for Samson 4763

Related product manuals