EasyManua.ls Logo

Sharp Aquos LC-40LE820M - Page 63

Sharp Aquos LC-40LE820M
68 pages
Print Icon
To Next Page IconTo Next Page
To Next Page IconTo Next Page
To Previous Page IconTo Previous Page
To Previous Page IconTo Previous Page
Loading...
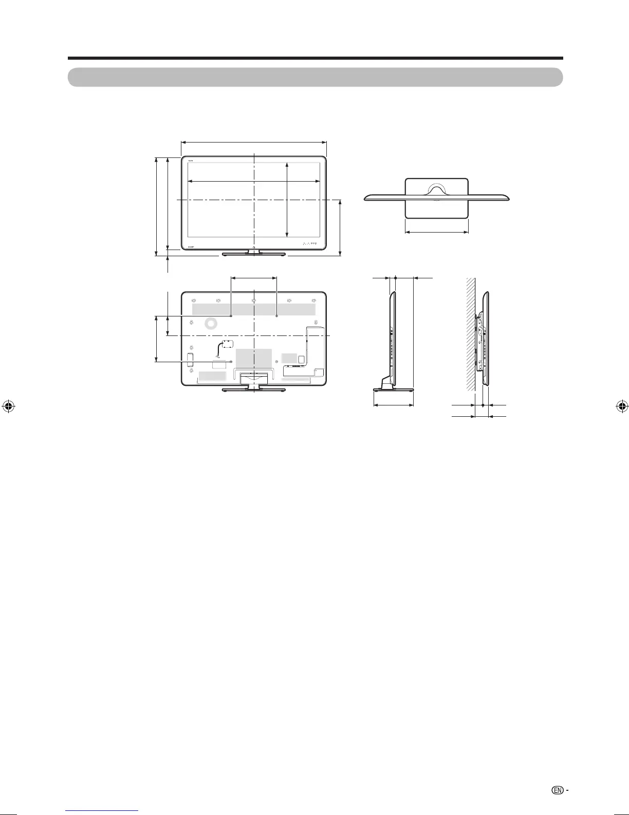
Dimensional drawings (Continued)
Unit: mm
Appendix
LC-52LE820M
1157
400
1260
540
340
39
39
106
158
67
653
484
861
81150
400
172
61
40LE820M_en_vn_id.indd 6140LE820M_en_vn_id.indd 61 2010/06/11 9:51:362010/06/11 9:51:36

Table of Contents

Related product manuals