EasyManua.ls Logo

SICK MICS3 - Support unit - customer object; Mechanical interface

SICK MICS3
30 pages
Print Icon
To Next Page IconTo Next Page
To Next Page IconTo Next Page
To Previous Page IconTo Previous Page
To Previous Page IconTo Previous Page
Loading...
17
8025999/V1-0/2021-02| SICK O P E R A T I N G I N S T R U C T I O N S | MICS3/OS3 electr. protection hood
Subject to change without notice
INSTALLATION 4
4.2.1 Support unit - customer object
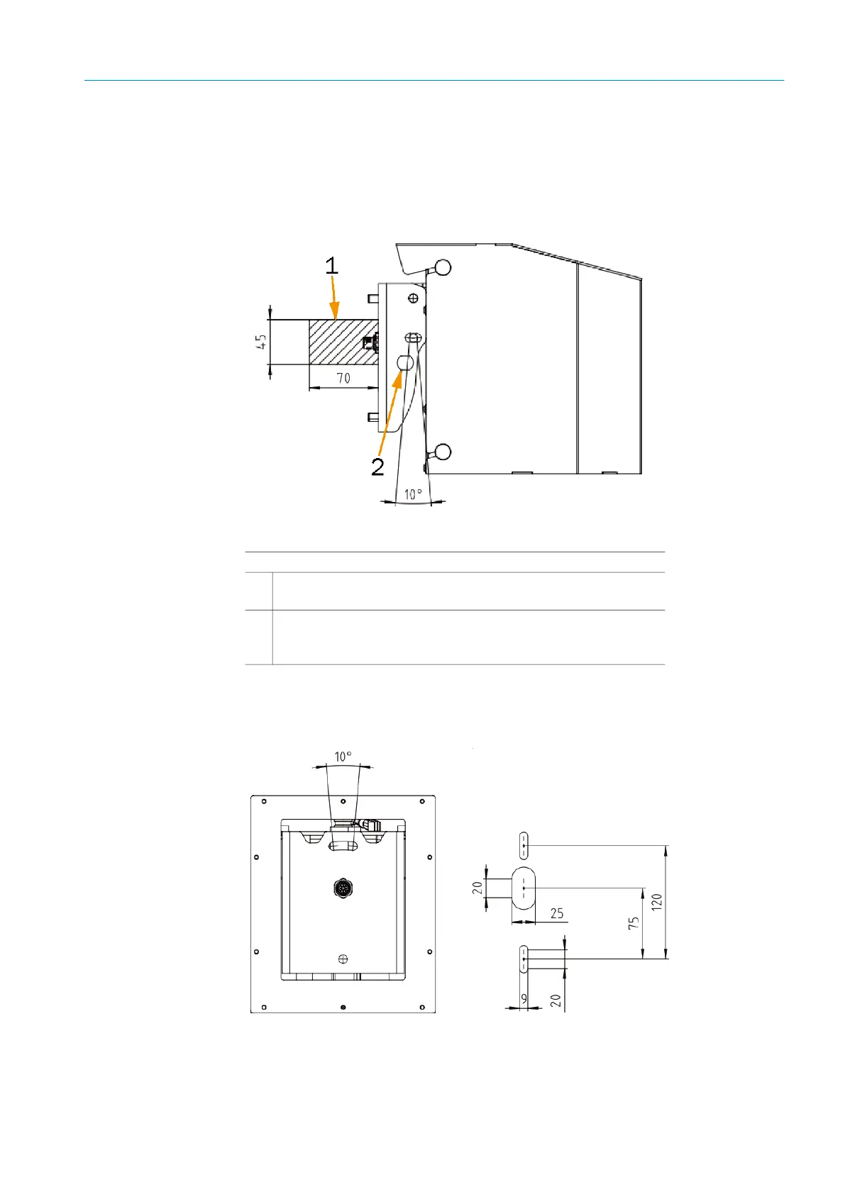
Fig. 9: Free space for M12 male connector
4.2.2 Mechanical interface
Function: Picking up and positioning the protection hood in relation to the scan plane.
Provided by the customer.
Fig. 10: Example of interface dimensional drawing
Important note
The carrier unit on the customer object must be stable enough so that the sensor neither
vibrates nor the scan field height (> 200 mm) is changed during the travel movements
Legend
1
Free space for M12 4-pin A-coded male connector, diameter
45 mm
2
Alternative position for side attachment of the M12 male connec-
tor
(both sides possible)