EasyManua.ls Logo

SICK MICS3 - Technical data; Mounting kit 1 a

SICK MICS3
30 pages
Print Icon
To Next Page IconTo Next Page
To Next Page IconTo Next Page
To Previous Page IconTo Previous Page
To Previous Page IconTo Previous Page
Loading...
13
8025999/V1-0/2021-02| SICK O P E R A T I N G I N S T R U C T I O N S | MICS3/OS3 electr. protection hood
Subject to change without notice
PRODUCT DESCRIPTION 3
3.3 Technical data
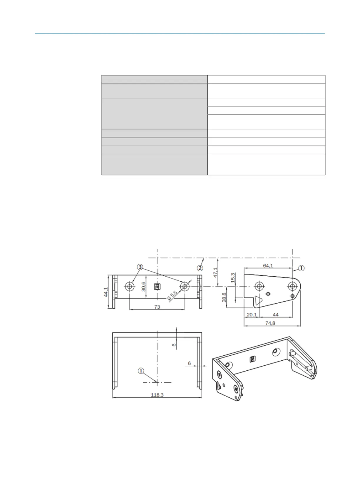
3.4 Mounting kit 1a
Features
Mounting kit 1a is pre-mounted to the mounting bracket
Fastening safety laser scanner under the hood
SICK part number 2073851
Fig. 4: Mounting kit 1a
Material Stainless steel, aluminum
Dimensions when in closed status width x
height x length 217 x 232 x 284 mm
Communication interface - actuator 24 V
Imax 1.9A
Connection - M12 4-pin A-coded male connec-
tor
Ambient operating temperature -25 ° ... +50 °C
Actuator protection class IP66
Actuator stroke 72 mm
Weight:
Protection hood without scanner
Protection hood with scanner
6.5 kg
7.9 kg