EasyManua.ls Logo

Siemens SIMATIC S7-1200 - Application 4: Wiring External Contactors: Separate P and M Output Channels for each Contactor; Application 5: Separate Circuits of a Relay Channel Controlling External Contactors

Siemens SIMATIC S7-1200
212 pages
To Next Page IconTo Next Page
To Next Page IconTo Next Page
To Previous Page IconTo Previous Page
To Previous Page IconTo Previous Page
Loading...
Fail-Safe signal module (SM) applications
3.2 Digital output applications
S7-1200 Functional Safety Manual
Manual, 02/2015, A5E03470344-AA
77
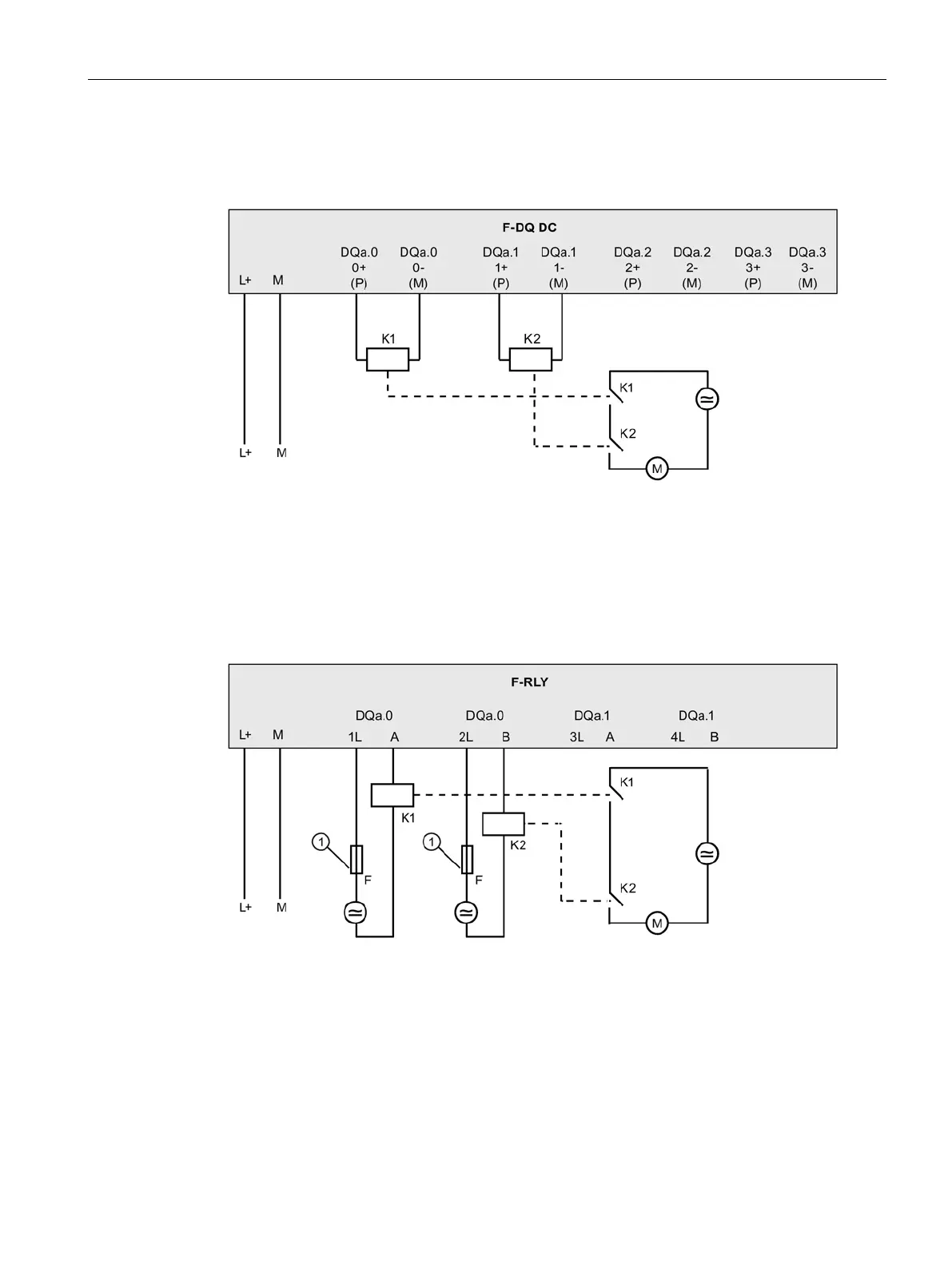
3.2.5
Application 4: Wiring external contactors: Separate P and M output channels for
each contactor
3.2.6
Application 5: Separate circuits of a relay channel controlling external
contactors
Redundant external relays or contactors are controlled by independent electrical circuits that
are switched as a single process variable channel.
External fuse

Table of Contents

Other manuals for Siemens SIMATIC S7-1200

Related product manuals