EasyManua.ls Logo

Siemens SIMOTICS 1FT2104-4AF - Page 44

Siemens SIMOTICS 1FT2104-4AF
140 pages
Print Icon
To Next Page IconTo Next Page
To Next Page IconTo Next Page
To Previous Page IconTo Previous Page
To Previous Page IconTo Previous Page
Loading...
Mechanical properties
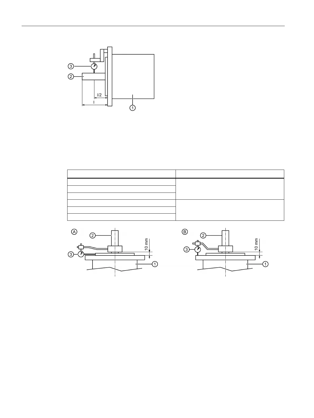
3.7 Radial eccentricity, concentricity and axial eccentricity
1FT2 synchronous motors for SINAMICS S120
42 Configuration Manual, 03/2021, A5E50645584B AA
Motor
Motor shaft
Dial gauge
Figure 3-9 Checking the radial eccentricity
Table 3- 4 Concentricity and axial eccentricity tolerance of the flange surface to the shaft axis (re-
ferred to the centering diameter of the mounting flange)
Motor
Standard (Normal class)
1FT203
0.08 mm
1FT204
1FT205
1FT206
0.1 mm
1FT208
1FT210
A
Check for concentricity
Motor
B
Check for axial eccentricity
Motor shaft
Dial gauge
Figure 3-10 Checking the concentricity and axial eccentricity

Table of Contents

Related product manuals