EasyManua.ls Logo

Siemens Simovert P 6SE21 Series - 6. USING CLOSED LOOP SPEED CONTROL; Introduction; Scaling and Operation

Siemens Simovert P 6SE21 Series
34 pages
Print Icon
To Next Page IconTo Next Page
To Next Page IconTo Next Page
To Previous Page IconTo Previous Page
To Previous Page IconTo Previous Page
Loading...
SIMOVERT P 6SE21 Series Inverters
English
Operating Instructions
Siemens plc 1995
G85139–A1615–U156–A
02.95
34
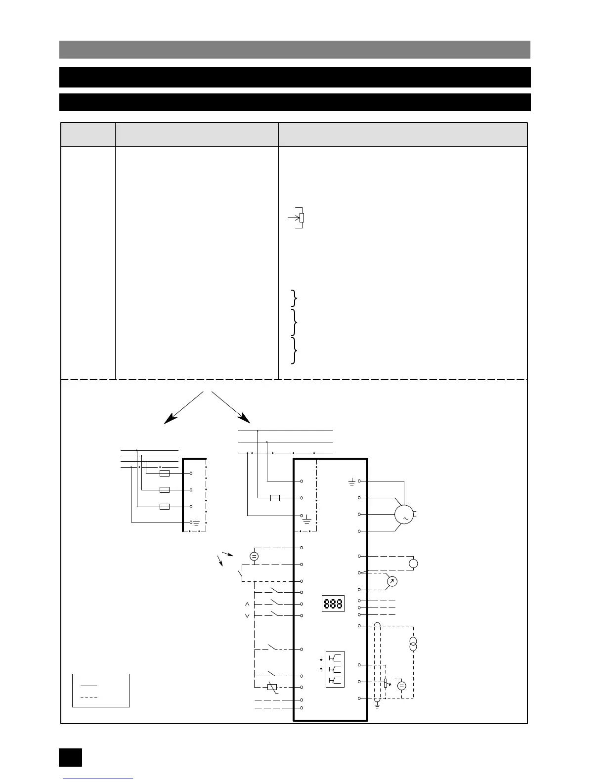
7. QUICK REFERENCE GUIDE
7.1 Connections
Function
0 V Connection
+15 V
Run Connection
Trip
Forward / Reverse
10 V
Frequency Adjust Voltage
0 V
Frequency Adjust Current
0 V
Frequency / Current Indication
Tachometer
Jog
A
B
P
Fault Indication NO
Fault Indication Common
Fault Indication NC
0 V
P
SIMOVERT P
N
L1
1
3
2
5
W
V
U
12
10
11
9
6
7
8
X1 X1
L1
N
PE
Mains
L3
L2
X1
L1
L1
L2
L3
PE
Mains
Motor
Tachometer
Frequency/Output Current Indicator
Essential
Optional
OR
X11
X11
0..10 V
0..20 mA
4..20 mA
Frequency setpoint
(analogue)
RUN
Forward/Reverse
+
+
13
Jog
20
21
19
Fault Indication to
External Alarm
17
18
16
P
14
15
Serial
Comms
RS485
4
Trip
PTC
+
RUN
OR
OR
0 V
R/S
+15 V
M
3
Terminal
1
2
3
4
5
6
7
8
9
10
11
12
13
14
15
16
17
18
19
20
21
22
Remarks
Apply voltage or connect to +15 V to run
Normally closed trip input when P05 = 4, etc.
Apply voltage or connect to +15 V to reverse
0 – 20 mA or 4 – 20 mA input
Output for frequency (F
max
) or current (I
max
) monitor
Analogue tachometer or sensor input
External jog button connection
RS485 serial connection
Push–button connections
Fault relay output
10k
Typical frequency
control arrangement
1AC 220 – 240 V, 50/60 Hz
3AC 380 – 500 V, 50/60 Hz

Related product manuals