EasyManua.ls Logo

Siemens SINAMICS G120 - Dimension Drawings

Siemens SINAMICS G120
34 pages
To Next Page IconTo Next Page
To Next Page IconTo Next Page
To Previous Page IconTo Previous Page
To Previous Page IconTo Previous Page
Loading...
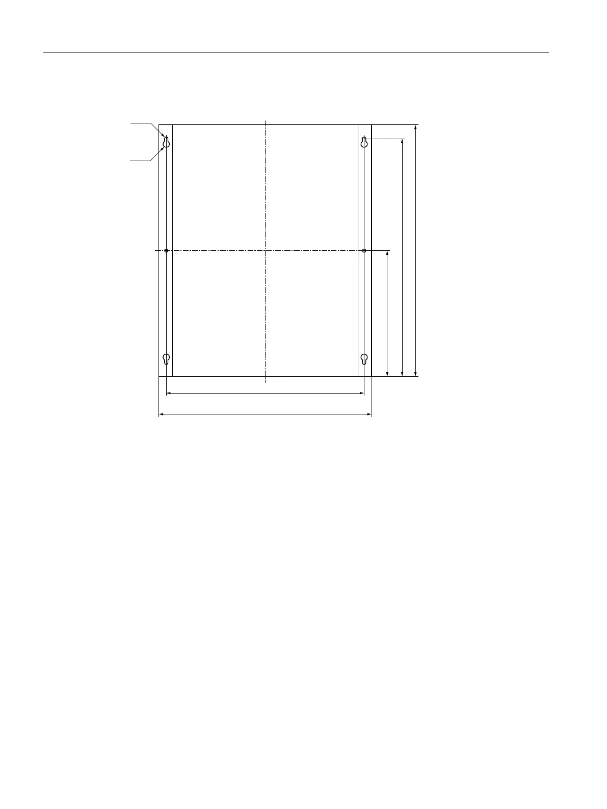
Mounting bracket
PP
PP
PP
PP
PP


Dimension drawings
Distributed inverter box
26 Manual, 06/2018, A5E43491109B AB

Other manuals for Siemens SINAMICS G120

Related product manuals