EasyManua.ls Logo

Siemens SIPROTEC 7UT633*-* N series - Panel Surface and Cabinet Mounting (Enclosure Size 1; 2 )

Siemens SIPROTEC 7UT633*-* N series
638 pages
Print Icon
To Next Page IconTo Next Page
To Next Page IconTo Next Page
To Previous Page IconTo Previous Page
To Previous Page IconTo Previous Page
Loading...
4 Technical Data
492
7UT613/63x Manual
C53000-G1176-C160-2
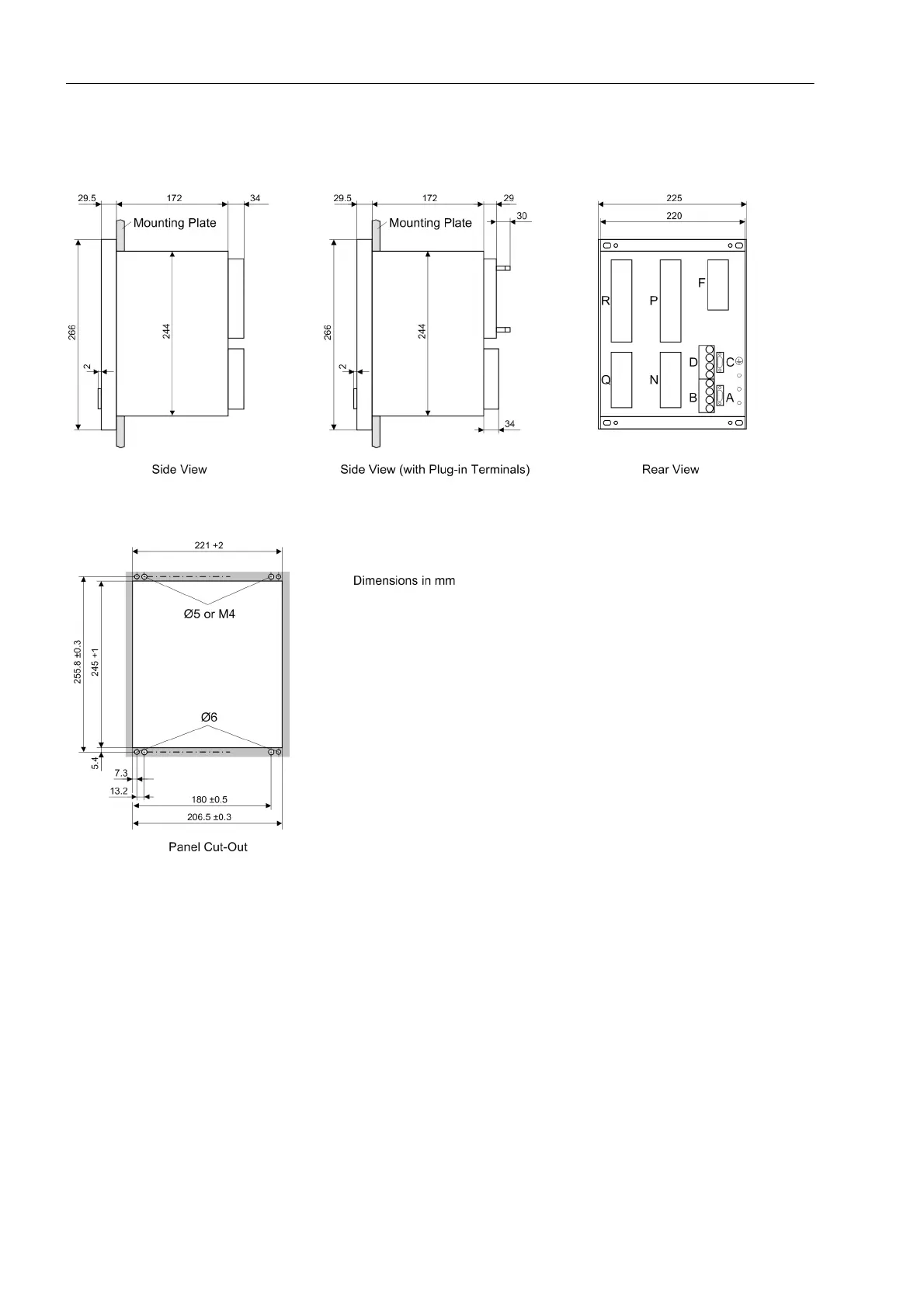
4.23.3 Panel Surface and Cabinet Mounting (Enclosure Size
1
/
2
)
Figure 4-22 Dimensions of a 7UT613 for panel flush mounting or cubicle mounting (housing size
1
/
2
)

Table of Contents

Related product manuals