EasyManua.ls Logo

Sime METRO - Page 60

Sime METRO
Print Icon
To Next Page IconTo Next Page
To Next Page IconTo Next Page
To Previous Page IconTo Previous Page
To Previous Page IconTo Previous Page
Loading...
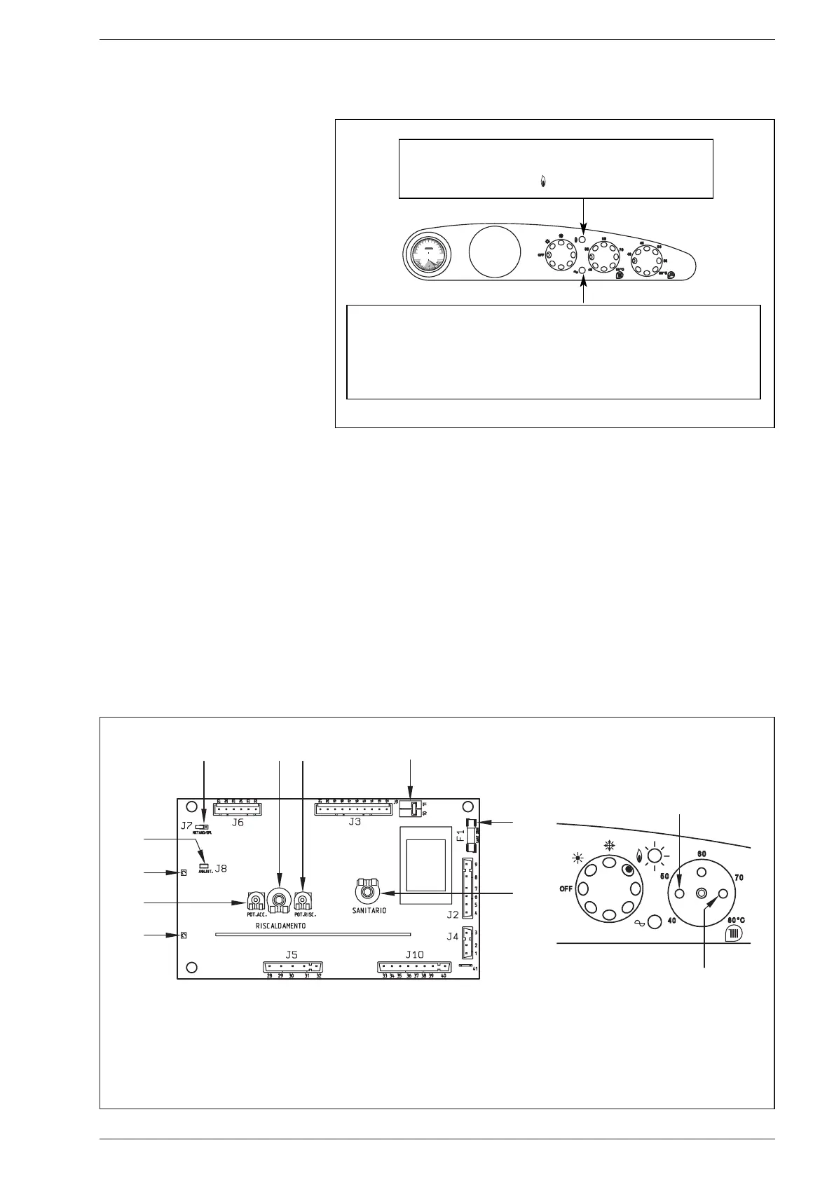
3.1 PLACA ELECTRÓNICA
As placas electrónicas são realizadas em
conformidade com a directiva Baixa
Tensão CEE 73/23. São alimentadas elec-
tricamente com uma tensão de 230V e
por meio de um transformador incorpora-
do alimentam a 24V os seguintes compo-
nentes: modulador, sonda sanitário/aque-
cimento, termóstato ambiente, fluxóstato
e relógio programador.
Um sistema de modulação automática e
contínua permite á caldeira adaptar a
potência ás várias exigências da instalação
o do utente. Os componentes electrónicos
são garantidos para funcionarem com tem-
peraturas entre –10 e +60°C.
3.1.1 Anomalias de funcionamento
Os led que assinalam um funcionamento
irregular ou incorrecto do aparelho, estão
indicados na
3.1.2 Dispositivos
A placa electrónica es equipada com os
seguintes dispositivos (fig. 19):
Trimmer “POT. RISC.” (1)
Regula o valor máximo de potência de
aquecimento. Para aumentar o valor
mover o trimmer em sentido horário,
para a diminuir mover o trimmer no sen-
tido anti-horário.
Trimmer “POT. ACC.(6)
Trimmer para variar o nível de pressão
do acendimento (STEP) da válvula gás.
É necessário regular o trimmer para
obter uma pressão ao queimador de
aproximadamente 3 mbar para gás
metano e 7 mbar para gás butano (G30)
e propano (G31).
Para aumentar a pressão é necessário
mover o trimmer em sentido horário e
para a diminuir no sentido anti-horário.
O nível de pressão de ignição lenta pode
ser seleccionado durante os primeiros
10 segundos da ignição do queimador.
Depois de se ter estabelecido o nível de
pressão ao acendimento (STEP) em
função do tipo de gás, verificar se a
pressão em fase de aquecimento corre-
sponde ainda ao valor seleccionado
anteriormente.
Ligador “METANO/GPL(4)
Com o ligador desligado a caldeira está
preparada para funcionar com METANO;
com o ligador ligado, com GPL.
Ligador “ANN. RIT.” (5)
A placa electrónica es programada,
em fase de aquecimento, com uma
pausa técnica do queimador de aprox.
90 segundos, que se verifica quer á par-
tida a frio da instalação quer nos suces-
sivos acendimentos.
Isto serve para evitar acendimentos e
apagamentos dentro de intervalos muito
concentrados que, em particular, pode-
riam verificar-se em instalações com ele-
vadas perdas de carga.
58
3 CARACTERÍSTICAS
Fig. 19
LEGENDA
1 Trimmer “Potência aquecimento”
2 Fusível (F 1,6A)
3 Potenciômetro sanitário
4 Ligador “METANO/GPL ”
5 Ligador Anulação atrasos”
6 Trimmer “Potência acendimento”
7 Led vermelho de bloqueio
8 Potenciõmetro aquecimento
9 Led bicolor verde/cor-de-laranja
10 Ligador “TA
NOTA:
Para ter acesso aos trimmer de regu-
lação (1) e (6) desenfiar o manípulo do
potenciômetro.
B
A
C
6
1
2
3
5
9
7
6
1
8
4
10
Fig. 18
Led bicolor verde apagado no caso de falta de corrente.
Led bicolor cor-de-laranja no caso de anomalía da sonda (SM).
Led bicolor verde intermitente em caso de intervenção do dispositivo de segurança de
fumos en la vers. “OF”: rearme o botão do termóstato para restablecer o funcionamento.
Led verde intermitente de avaria do ventilador/pressóstato fumos
(vers. “BF”).
Led vermelho aceso de bloqueio da acensão/intervenção do
termóstatos de segurança: rodar o selector OFF/VER/INV/
DESBLOQUEIO para a posição ( ) para restabelecer o funcionamento
0
30
60
90
120
bar
°C
0
3
4
1

Related product manuals